Lhoas & Lhoas
  • Architecture
    • Habitat
    • Usage Mixte
    • Bureau
    • Commercial
    • Culture
    • Scénographie
    • Chronologie
  • Design
    • Sur mesure
    • Meuble
    • Chronologie
  • Publications
    • Expositions
    • Presse
    • Conférences
    • Chronologie
  • A propos de nous
Lhoas & Lhoas

Sélectionnez votre langue

  • FR
  • EN
  1. Vous êtes ici :  
  2. Accueil

Rue de Belgrade

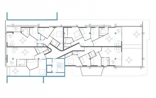
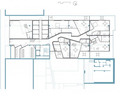
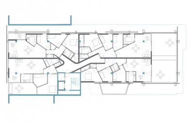
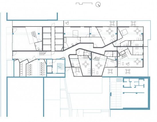
La reconversion du bâtiment de la rue de Belgrade convoque des questions importantes et emblématiques pour Bruxelles aujourd’hui ; reconversion d'immeubles de bureaux en logements, transformation du patrimoine des années 60/70, rapport entre une architecture brutaliste et un contexte assez hétérogène, articulation d’un immeuble sensiblement plus grand et haut que le voisinage constitué de petites maisons d’habitation traditionnelles bruxelloises, valorisation d'une architecture atypique malgré/avec un contexte traditionnel, performances énergétiques et plus globalement durabilité (cycle des matériaux, aspects sociaux …), rénovation dans le respect et la valorisation des qualités architecturales du bâti.

Nous avons abordé la question posée d'une manière très pragmatique sur toutes les dimensions évoquées ci-dessus, ce qui inclut aussi la question esthétique et plastique, en détaillant ce qui dans le bâtiment existant vaut selon nous la peine d'être conservé.

Notre proposition vise à actualiser et amplifier les caractéristiques architecturales si particulières de ce bâtiment. Cette architecture faite de déhanchements, de porte-à-faux, de grandes horizontales suspendues, d’abstraction, dégage une certaine rudesse. Notre proposition vise à accompagner des logiques intrinsèques du bâtiment et nous permet de développer un projet de transformation économe, véritablement durable,plastiquement riche et fort.

Le réaménagement de plateaux destinés à l'usage de bureau/showroom est un défi de taille dans ce genre d'immeuble. Nous avons pris le parti d'une organisation qui tire avantage de ces difficultés ; une organisation semi-organique, naturelle et fluide qui accompagne les circulations intérieures afin d’offrir une distribution à la fois très efficace, originale, plaisante et variée. La circulation verticale existante elle est conservée et améliorée, elle reste l’unique système de distribution des étages, les couloirs intérieurs de distribution sont minimisés mais en même temps scénographiés pour accompagner les déplacements dans une séquence cinématique et dynamique.

Le projet tire le meilleur parti de la constitution structurelle interne de l’immeuble (système poutre/colonne). Ce système de structure ponctuelle permet de libérer la définition des espaces afin de leur donner une douceur, une souplesse hyperergonomique.

Statut: Concours
Client: Commune de Forest
Budget : 2 500 000€
Equipe : Lhoas & Lhoas Architectes, MK enginering (HVAC, PEB), ASB buro (stabilité), Securisan (santé et sécurité), ATS (acoustique), Francesco Nicolai IMAG (IN) E (rendus)

    : 1800 m2

    : 74 rue Belgrade, 1190, Bruxelles

    : 2020

    • belgrade maquette 2x365
      belgrade maquette 2x365
    • bel 200805 r 1 planx346
      bel 200805 r 1 planx346
    • bel 200805 rdc planx427
      bel 200805 rdc planx427
    • bel blanc 4x315
      bel blanc 4x315
    • bel croquis 5x822
      bel croquis 5x822
    • bel image 3d 01x1512
      bel image 3d 01x1512
    • bel image 3d 02x777
      bel image 3d 02x777
    • bel image 3d 03x775
      bel image 3d 03x775
    • bel image 3d 04x387
      bel image 3d 04x387
    • bel image 3d 05x270
      bel image 3d 05x270
    • bel maquette 1x365
      bel maquette 1x365
    • bel model 3x365
      bel model 3x365
    • bel ref aldo rossi paulx387
      bel ref aldo rossi paulx387
    • bel ref paul neefs avant projet de la maison jx387
      bel ref paul neefs avant projet de la maison jx387
    • xbel blanc 4x315.jpg.pagespeed.ic.y6ERYq3r14
      xbel blanc 4x315.jpg.pagespeed.ic.y6ERYq3r14
    • xbel image 3d 01x1512.jpg.pagespeed.ic.5DBUoOsPeA
      xbel image 3d 01x1512.jpg.pagespeed.ic.5DBUoOsPeA
    • xbel image 3d 01x730.jpg.pagespeed.ic.lg7mjDb0kK
      xbel image 3d 01x730.jpg.pagespeed.ic.lg7mjDb0kK
    • xbel model 3x365.jpg.pagespeed.ic.JFLHag2Sw
      xbel model 3x365.jpg.pagespeed.ic.JFLHag2Sw
    belgrade maquette 2x365
    bel 200805 r 1 planx346
    bel 200805 rdc planx427
    bel blanc 4x315
    bel croquis 5x822
    bel image 3d 01x1512
    bel image 3d 02x777
    bel image 3d 03x775
    bel image 3d 04x387
    bel image 3d 05x270
    bel maquette 1x365
    bel model 3x365
    bel ref aldo rossi paulx387
    bel ref paul neefs avant projet de la maison jx387
    xbel blanc 4x315.jpg.pagespeed.ic.y6ERYq3r14
    xbel image 3d 01x1512.jpg.pagespeed.ic.5DBUoOsPeA
    xbel image 3d 01x730.jpg.pagespeed.ic.lg7mjDb0kK
    xbel model 3x365.jpg.pagespeed.ic.JFLHag2Sw
      • belgrade maquette 2x365
      • bel 200805 r 1 planx346
      • bel 200805 rdc planx427
      • bel blanc 4x315
      • bel croquis 5x822
      • bel image 3d 01x1512
      • bel image 3d 02x777
      • bel image 3d 03x775
      • bel image 3d 04x387
      • bel image 3d 05x270
      • bel maquette 1x365
      • bel model 3x365
      • bel ref aldo rossi paulx387
      • bel ref paul neefs avant projet de la maison jx387
      • xbel blanc 4x315.jpg.pagespeed.ic.y6ERYq3r14
      • xbel image 3d 01x1512.jpg.pagespeed.ic.5DBUoOsPeA
      • xbel image 3d 01x730.jpg.pagespeed.ic.lg7mjDb0kK
      • xbel model 3x365.jpg.pagespeed.ic.JFLHag2Sw

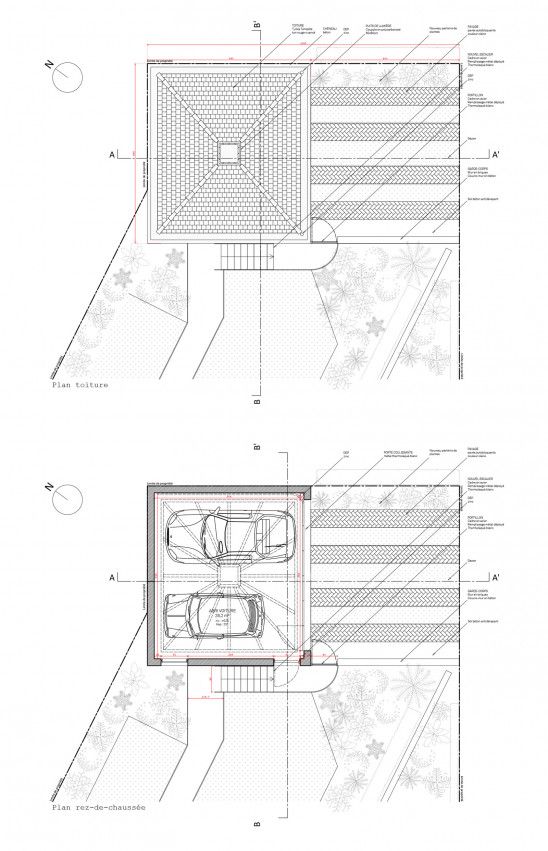
    Garage rue Molenvelt Uccle

    Garage construction in Uccle

      : 2019

      : Maxime Delvaux

      • lhoas lhoas architectes uccle 09 1600pxx758
        lhoas lhoas architectes uccle 09 1600pxx758
      • lhoas lhoas architectes uccle 09 1600pxx365
        lhoas lhoas architectes uccle 09 1600pxx365
      • lhoas lhoas architectes uccle 10 1600pxx365
        lhoas lhoas architectes uccle 10 1600pxx365
      • lhoas lhoas architectes uccle 12 1600pxx822
        lhoas lhoas architectes uccle 12 1600pxx822
      • lhoas lhoas architectes uccle 21 1600pxx365
        lhoas lhoas architectes uccle 21 1600pxx365
      • lhoas lhoas architectes uccle 23 1600pxx365
        lhoas lhoas architectes uccle 23 1600pxx365
      • lhoas lhoas architectes uccle plan 1600pxx851
        lhoas lhoas architectes uccle plan 1600pxx851
      • xlhoas lhoas architectes uccle 01 1600pxx365.jpg.pagespeed.ic.tnnpTCMUNx
        xlhoas lhoas architectes uccle 01 1600pxx365.jpg.pagespeed.ic.tnnpTCMUNx
      • xlhoas lhoas architectes uccle 09 1600pxx758.jpg.pagespeed.ic.r 9WVAPUi0
        xlhoas lhoas architectes uccle 09 1600pxx758.jpg.pagespeed.ic.r 9WVAPUi0
      • xlhoas lhoas architectes uccle 09 1600pxx365.jpg.pagespeed.ic.V0qjKI5jMs
        xlhoas lhoas architectes uccle 09 1600pxx365.jpg.pagespeed.ic.V0qjKI5jMs
      lhoas lhoas architectes uccle 09 1600pxx758
      lhoas lhoas architectes uccle 09 1600pxx365
      lhoas lhoas architectes uccle 10 1600pxx365
      lhoas lhoas architectes uccle 12 1600pxx822
      lhoas lhoas architectes uccle 21 1600pxx365
      lhoas lhoas architectes uccle 23 1600pxx365
      lhoas lhoas architectes uccle plan 1600pxx851
      xlhoas lhoas architectes uccle 01 1600pxx365.jpg.pagespeed.ic.tnnpTCMUNx
      xlhoas lhoas architectes uccle 09 1600pxx758.jpg.pagespeed.ic.r 9WVAPUi0
      xlhoas lhoas architectes uccle 09 1600pxx365.jpg.pagespeed.ic.V0qjKI5jMs
        • lhoas lhoas architectes uccle 09 1600pxx758
        • lhoas lhoas architectes uccle 09 1600pxx365
        • lhoas lhoas architectes uccle 10 1600pxx365
        • lhoas lhoas architectes uccle 12 1600pxx822
        • lhoas lhoas architectes uccle 21 1600pxx365
        • lhoas lhoas architectes uccle 23 1600pxx365
        • lhoas lhoas architectes uccle plan 1600pxx851
        • xlhoas lhoas architectes uccle 01 1600pxx365.jpg.pagespeed.ic.tnnpTCMUNx
        • xlhoas lhoas architectes uccle 09 1600pxx758.jpg.pagespeed.ic.r 9WVAPUi0
        • xlhoas lhoas architectes uccle 09 1600pxx365.jpg.pagespeed.ic.V0qjKI5jMs

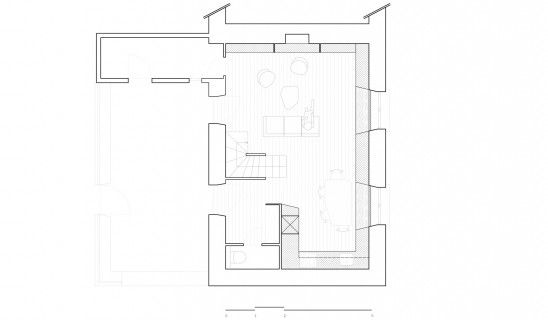
      Ile Tudy

      Rénovation d’une maison en bord de mer à l’île Tudy, en Bretagne.
      A l’origine du projet, une petite maison de pêcheur qui offre une vue imprenable sur le port de Tudy. L’espace restreint de 31m² du salon-séjour-cuisine accumulait de manière chaotique les éléments du quotidien: frigo, télé, bibliothèque, table etc. S’ajoute à cela le grand besoin de rangement de cette famille sur son lieu de vacances.
      Une structure métallique blanche au motif simple et léger a alors été imaginée pour rythmer l’espace et accueillir les différentes fonctions. Dans la continuité de la cuisine, les rangements s'alternent avec des bancs alcôves cadrant ainsi les vues sur le paysage.

        : Réalisé

        : 80 m2

        : île Tudy - France

        : 2018

        • lhoas lhoas architectes tudy 2 1600pxx757
          lhoas lhoas architectes tudy 2 1600pxx757
        • lhoas lhoas architectes tudy 2 1600pxx365
          lhoas lhoas architectes tudy 2 1600pxx365
        • lhoas lhoas architectes tudy 3 1600pxx808
          lhoas lhoas architectes tudy 3 1600pxx808
        • lhoas lhoas architectes tudy 4 1600pxx404
          lhoas lhoas architectes tudy 4 1600pxx404
        • lhoas lhoas architectes tudy 6 1600pxx411
          lhoas lhoas architectes tudy 6 1600pxx411
        • tud diffusion rdc 1600px v3x320
          tud diffusion rdc 1600px v3x320
        • xlhoas lhoas architectes tudy 1 1600pxx731.jpg.pagespeed.ic.JRbUN7tiKS
          xlhoas lhoas architectes tudy 1 1600pxx731.jpg.pagespeed.ic.JRbUN7tiKS
        • xlhoas lhoas architectes tudy 2 1600pxx757.jpg.pagespeed.ic.jPjLql1roj
          xlhoas lhoas architectes tudy 2 1600pxx757.jpg.pagespeed.ic.jPjLql1roj
        lhoas lhoas architectes tudy 2 1600pxx757
        lhoas lhoas architectes tudy 2 1600pxx365
        lhoas lhoas architectes tudy 3 1600pxx808
        lhoas lhoas architectes tudy 4 1600pxx404
        lhoas lhoas architectes tudy 6 1600pxx411
        tud diffusion rdc 1600px v3x320
        xlhoas lhoas architectes tudy 1 1600pxx731.jpg.pagespeed.ic.JRbUN7tiKS
        xlhoas lhoas architectes tudy 2 1600pxx757.jpg.pagespeed.ic.jPjLql1roj
          • lhoas lhoas architectes tudy 2 1600pxx757
          • lhoas lhoas architectes tudy 2 1600pxx365
          • lhoas lhoas architectes tudy 3 1600pxx808
          • lhoas lhoas architectes tudy 4 1600pxx404
          • lhoas lhoas architectes tudy 6 1600pxx411
          • tud diffusion rdc 1600px v3x320
          • xlhoas lhoas architectes tudy 1 1600pxx731.jpg.pagespeed.ic.JRbUN7tiKS
          • xlhoas lhoas architectes tudy 2 1600pxx757.jpg.pagespeed.ic.jPjLql1roj

        Rue des Bégonias

        Rue des Bégonias à Watermael-Boitsfort, rénovation complète d’une maison unifamiliale comprenant la création de deux lucarnes, deux salles de bain et une cuisine

        Cette petite maison mitoyenne bruxelloise très typique possède de par sa façade en briques, ses grandes ouvertures entourées d’encadrements marqués et la disposition des baies côté jardin, un caractère à la fois simple, banal que le projet, par petites touches tente de sublimer et de transformer en une esthétique un peu décalée, un brin grinçante et intéressante.
        L’idée est d’amener une touche contemporaine aussi bien dans la fluidité et l’enchainement des espaces que dans la volumétrie générale. Afin par exemple de décoincer les pièces du dernier étage. La toiture est comme éventrée de lucarnes disproportionnées, quasi monumentales. Elles permettent d’offrir une belle hauteur sous plafond, une grande luminosité, des vues inusitées dans de telles maisons et un caractère d’étrangeté à cette toiture générique.
        Cette volonté de tirer parti de l’existant, le sublimer, tout en le distordant se retrouve aussi dans les petites interventions : l’incongruité du petit escalier existant qui mène au jardin est mise en exergue par un garde-corps vert, la main courante de l’escalier est soulignée par cette même couleur que l’on retrouve aussi en petite touches sur les ouvrants des châssis , la porte d’entrée et même certains éléments du mobilier.
        Le mobilier agit de la même manière, la diversité des formes, des couleurs et des matériaux sont à la fois en décalage et continuité avec l’existant : un plan de travail rose mixé à de l’acier inox plus une banquette et une table en bois avec des pieds métalliques colorés.

          : Réalisé

          : 128 m2

          : Bruxelles, Watermael-Boitsfort

          : 122.000 €

          : 2018

          • blanc site webx731
            blanc site webx731
          • lhoas architectes rue des begonias 1x822
            lhoas architectes rue des begonias 1x822
          • lhoas architectes rue des begonias 11x822
            lhoas architectes rue des begonias 11x822
          • lhoas architectes rue des begonias 12x822
            lhoas architectes rue des begonias 12x822
          • lhoas architectes rue des begonias 13x815
            lhoas architectes rue des begonias 13x815
          • lhoas architectes rue des begonias 14x206
            lhoas architectes rue des begonias 14x206
          • lhoas architectes rue des begonias 15x206
            lhoas architectes rue des begonias 15x206
          • lhoas architectes rue des begonias 16x206
            lhoas architectes rue des begonias 16x206
          • lhoas architectes rue des begonias 17x365
            lhoas architectes rue des begonias 17x365
          • lhoas architectes rue des begonias 2x1600
            lhoas architectes rue des begonias 2x1600
          • lhoas architectes rue des begonias 2x822
            lhoas architectes rue des begonias 2x822
          • lhoas architectes rue des begonias 20x548
            lhoas architectes rue des begonias 20x548
          • lhoas architectes rue des begonias 22x379
            lhoas architectes rue des begonias 22x379
          • lhoas architectes rue des begonias 23x370
            lhoas architectes rue des begonias 23x370
          • lhoas architectes rue des begonias 3x814
            lhoas architectes rue des begonias 3x814
          • lhoas architectes rue des begonias 4x841
            lhoas architectes rue des begonias 4x841
          • lhoas architectes rue des begonias 6x365
            lhoas architectes rue des begonias 6x365
          • lhoas architectes rue des begonias 8x822
            lhoas architectes rue des begonias 8x822
          • xlhoas architectes rue des begonias 2x1600.jpg.pagespeed.ic.JudYWiJpeD
            xlhoas architectes rue des begonias 2x1600.jpg.pagespeed.ic.JudYWiJpeD
          • xlhoas architectes rue des begonias 2x822.jpg.pagespeed.ic.evzHu7owNK
            xlhoas architectes rue des begonias 2x822.jpg.pagespeed.ic.evzHu7owNK
          • xlhoas architectes rue des begonias 20x548.jpg.pagespeed.ic.zRqksbNNKq
            xlhoas architectes rue des begonias 20x548.jpg.pagespeed.ic.zRqksbNNKq
          • xlhoas architectes rue des begonias 21x548.jpg.pagespeed.ic.J55AVa0gQr
            xlhoas architectes rue des begonias 21x548.jpg.pagespeed.ic.J55AVa0gQr
          blanc site webx731
          lhoas architectes rue des begonias 1x822
          lhoas architectes rue des begonias 11x822
          lhoas architectes rue des begonias 12x822
          lhoas architectes rue des begonias 13x815
          lhoas architectes rue des begonias 14x206
          lhoas architectes rue des begonias 15x206
          lhoas architectes rue des begonias 16x206
          lhoas architectes rue des begonias 17x365
          lhoas architectes rue des begonias 2x1600
          lhoas architectes rue des begonias 2x822
          lhoas architectes rue des begonias 20x548
          lhoas architectes rue des begonias 22x379
          lhoas architectes rue des begonias 23x370
          lhoas architectes rue des begonias 3x814
          lhoas architectes rue des begonias 4x841
          lhoas architectes rue des begonias 6x365
          lhoas architectes rue des begonias 8x822
          xlhoas architectes rue des begonias 2x1600.jpg.pagespeed.ic.JudYWiJpeD
          xlhoas architectes rue des begonias 2x822.jpg.pagespeed.ic.evzHu7owNK
          xlhoas architectes rue des begonias 20x548.jpg.pagespeed.ic.zRqksbNNKq
          xlhoas architectes rue des begonias 21x548.jpg.pagespeed.ic.J55AVa0gQr
            • blanc site webx731
            • lhoas architectes rue des begonias 1x822
            • lhoas architectes rue des begonias 11x822
            • lhoas architectes rue des begonias 12x822
            • lhoas architectes rue des begonias 13x815
            • lhoas architectes rue des begonias 14x206
            • lhoas architectes rue des begonias 15x206
            • lhoas architectes rue des begonias 16x206
            • lhoas architectes rue des begonias 17x365
            • lhoas architectes rue des begonias 2x1600
            • lhoas architectes rue des begonias 2x822
            • lhoas architectes rue des begonias 20x548
            • lhoas architectes rue des begonias 22x379
            • lhoas architectes rue des begonias 23x370
            • lhoas architectes rue des begonias 3x814
            • lhoas architectes rue des begonias 4x841
            • lhoas architectes rue des begonias 6x365
            • lhoas architectes rue des begonias 8x822
            • xlhoas architectes rue des begonias 2x1600.jpg.pagespeed.ic.JudYWiJpeD
            • xlhoas architectes rue des begonias 2x822.jpg.pagespeed.ic.evzHu7owNK
            • xlhoas architectes rue des begonias 20x548.jpg.pagespeed.ic.zRqksbNNKq
            • xlhoas architectes rue des begonias 21x548.jpg.pagespeed.ic.J55AVa0gQr

          Avenue de Fré

          Rénovation d'une maison unifamiliale à Uccle.
          Réalisation de meubles sur mesure dans la cuisine et la salle de bain.

            : 190 m2

            : Bruxelles, Uccle

            : 2017

            • lhoas lhoas architectes geraldine nicolas cuisine 1 1600pxx365
              lhoas lhoas architectes geraldine nicolas cuisine 1 1600pxx365
            • lhoas lhoas architectes geraldine nicolas cuisine 2 1600pxx365
              lhoas lhoas architectes geraldine nicolas cuisine 2 1600pxx365
            • lhoas lhoas architectes geraldine nicolas cuisine 3 1600pxx758
              lhoas lhoas architectes geraldine nicolas cuisine 3 1600pxx758
            • lhoas lhoas architectes geraldine nicolas cuisine 3 1600pxx365
              lhoas lhoas architectes geraldine nicolas cuisine 3 1600pxx365
            • lhoas lhoas architectes geraldine nicolas cuisine 4 1600pxx829
              lhoas lhoas architectes geraldine nicolas cuisine 4 1600pxx829
            • lhoas lhoas architectes geraldine nicolas cuisine 5 1600pxx365
              lhoas lhoas architectes geraldine nicolas cuisine 5 1600pxx365
            • lhoas lhoas architectes geraldine nicolas cuisine 6 1600pxx822
              lhoas lhoas architectes geraldine nicolas cuisine 6 1600pxx822
            • lhoas lhoas architectes geraldine nicolas cuisine 8 1600pxx822
              lhoas lhoas architectes geraldine nicolas cuisine 8 1600pxx822
            • lhoas lhoas architectes geraldine nicolas cuisine axonometrie 1600pxx648
              lhoas lhoas architectes geraldine nicolas cuisine axonometrie 1600pxx648
            • xlhoas lhoas architectes geraldine nicolas cuisine 1 1600pxx365.jpg.pagespeed.ic.KZ0EvOJzl2
              xlhoas lhoas architectes geraldine nicolas cuisine 1 1600pxx365.jpg.pagespeed.ic.KZ0EvOJzl2
            • xlhoas lhoas architectes geraldine nicolas cuisine 3 1600px 1136x758.jpg.pagespeed.ic.kyveJ9Nd
              xlhoas lhoas architectes geraldine nicolas cuisine 3 1600px 1136x758.jpg.pagespeed.ic.kyveJ9Nd
            • xlhoas lhoas architectes geraldine nicolas cuisine 7 1600px 548x365.jpg.pagespeed.ic.ODRdX2P4
              xlhoas lhoas architectes geraldine nicolas cuisine 7 1600px 548x365.jpg.pagespeed.ic.ODRdX2P4
            lhoas lhoas architectes geraldine nicolas cuisine 1 1600pxx365
            lhoas lhoas architectes geraldine nicolas cuisine 2 1600pxx365
            lhoas lhoas architectes geraldine nicolas cuisine 3 1600pxx758
            lhoas lhoas architectes geraldine nicolas cuisine 3 1600pxx365
            lhoas lhoas architectes geraldine nicolas cuisine 4 1600pxx829
            lhoas lhoas architectes geraldine nicolas cuisine 5 1600pxx365
            lhoas lhoas architectes geraldine nicolas cuisine 6 1600pxx822
            lhoas lhoas architectes geraldine nicolas cuisine 8 1600pxx822
            lhoas lhoas architectes geraldine nicolas cuisine axonometrie 1600pxx648
            xlhoas lhoas architectes geraldine nicolas cuisine 1 1600pxx365.jpg.pagespeed.ic.KZ0EvOJzl2
            xlhoas lhoas architectes geraldine nicolas cuisine 3 1600px 1136x758.jpg.pagespeed.ic.kyveJ9Nd
            xlhoas lhoas architectes geraldine nicolas cuisine 7 1600px 548x365.jpg.pagespeed.ic.ODRdX2P4
              • lhoas lhoas architectes geraldine nicolas cuisine 1 1600pxx365
              • lhoas lhoas architectes geraldine nicolas cuisine 2 1600pxx365
              • lhoas lhoas architectes geraldine nicolas cuisine 3 1600pxx758
              • lhoas lhoas architectes geraldine nicolas cuisine 3 1600pxx365
              • lhoas lhoas architectes geraldine nicolas cuisine 4 1600pxx829
              • lhoas lhoas architectes geraldine nicolas cuisine 5 1600pxx365
              • lhoas lhoas architectes geraldine nicolas cuisine 6 1600pxx822
              • lhoas lhoas architectes geraldine nicolas cuisine 8 1600pxx822
              • lhoas lhoas architectes geraldine nicolas cuisine axonometrie 1600pxx648
              • xlhoas lhoas architectes geraldine nicolas cuisine 1 1600pxx365.jpg.pagespeed.ic.KZ0EvOJzl2
              • xlhoas lhoas architectes geraldine nicolas cuisine 3 1600px 1136x758.jpg.pagespeed.ic.kyveJ9Nd
              • xlhoas lhoas architectes geraldine nicolas cuisine 7 1600px 548x365.jpg.pagespeed.ic.ODRdX2P4

            Plus d'articles...

            1. Rue des Vétérinaires
            2. Rue Vergote
            3. Velissaratos
            4. Anne-Sophie & Lucas

            Page 2 sur 6

            • 1
            • 2
            • 3
            • 4
            • 5
            • 6

            Lhoas & Lhoas architects

            info@lhoas-lhoas.com
            62/11, Chaussée de Forest 1060, Bruxelles, Belgique
            +32 (0)2 372.08.75
            Facebook
            Instagram
            © 2006 - 2025 Designed and developped by La Missive
            • Architecture
              • Habitat
              • Usage Mixte
              • Bureau
              • Commercial
              • Culture
              • Scénographie
              • Chronologie
            • Design
              • Sur mesure
              • Meuble
              • Chronologie
            • Publications
              • Expositions
              • Presse
              • Conférences
              • Chronologie
            • A propos de nous