Lhoas & Lhoas
  • Architecture
    • Habitat
    • Usage Mixte
    • Bureau
    • Commercial
    • Culture
    • Scénographie
    • Chronologie
  • Design
    • Sur mesure
    • Meuble
    • Chronologie
  • Publications
    • Expositions
    • Presse
    • Conférences
    • Chronologie
  • A propos de nous
Lhoas & Lhoas

Sélectionnez votre langue

  • FR
  • EN
  1. Vous êtes ici :  
  2. Accueil

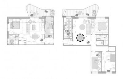
Avenue Louise

Rénovation d'un appartement dans un bâtiment des années 60 sur l'Avenue Louise.

    : 175 m2

    : Brussels

    : 2013

    : Pictures by Charlotte Delval from Visuelles

    • appartlouise lhoas lhoas 01x366
      appartlouise lhoas lhoas 01x366
    • appartlouise lhoas lhoas 02x758
      appartlouise lhoas lhoas 02x758
    • appartlouise lhoas lhoas 02x366
      appartlouise lhoas lhoas 02x366
    • appartlouise lhoas lhoas 03x821
      appartlouise lhoas lhoas 03x821
    • appartlouise lhoas lhoas 09x821
      appartlouise lhoas lhoas 09x821
    • appartlouise lhoas lhoas 14x821
      appartlouise lhoas lhoas 14x821
    • appartlouise lhoas lhoas 16x366
      appartlouise lhoas lhoas 16x366
    • appartlouise lhoas lhoas 18x366
      appartlouise lhoas lhoas 18x366
    • appartlouise lhoas lhoas 20x366
      appartlouise lhoas lhoas 20x366
    • appartlouise lhoas lhoas 21x366
      appartlouise lhoas lhoas 21x366
    • appartlouise lhoas lhoas 22x821
      appartlouise lhoas lhoas 22x821
    • appartlouise lhoas lhoas 32x366
      appartlouise lhoas lhoas 32x366
    • appartlouise lhoas lhoas 33x366
      appartlouise lhoas lhoas 33x366
    • appartlouise lhoas lhoas 34x366
      appartlouise lhoas lhoas 34x366
    • lhoas architectes architects avenue louise dimitri interior 1x186
      lhoas architectes architects avenue louise dimitri interior 1x186
    • lhoas architectes architects avenue louise dimitri interior 2x183
      lhoas architectes architects avenue louise dimitri interior 2x183
    • lhoas architectes architects avenue louise dimitri interior 8 01x202
      lhoas architectes architects avenue louise dimitri interior 8 01x202
    • lhoas architectes architects avenue louise dimitri interior 8 02x202
      lhoas architectes architects avenue louise dimitri interior 8 02x202
    • xappartlouise lhoas lhoas 01x366.jpg.pagespeed.ic.TzqrrwtTkl
      xappartlouise lhoas lhoas 01x366.jpg.pagespeed.ic.TzqrrwtTkl
    • xappartlouise lhoas lhoas 02x758.jpg.pagespeed.ic.Vpp7eXRYdP
      xappartlouise lhoas lhoas 02x758.jpg.pagespeed.ic.Vpp7eXRYdP
    • xappartlouise lhoas lhoas 02x366.jpg.pagespeed.ic.tNuST8YLhk
      xappartlouise lhoas lhoas 02x366.jpg.pagespeed.ic.tNuST8YLhk
    • xlhoas architectes architects avenue louise dimitri interior 1x186.jpg.pagespeed.ic.2QHKJ84lXf
      xlhoas architectes architects avenue louise dimitri interior 1x186.jpg.pagespeed.ic.2QHKJ84lXf
    • xlhoas architectes architects avenue louise dimitri interior 3x551.jpg.pagespeed.ic.xfk75DQ2G5
      xlhoas architectes architects avenue louise dimitri interior 3x551.jpg.pagespeed.ic.xfk75DQ2G5
    • xlhoas architectes architects avenue louise dimitri interior 8 01x202.jpg.pagespeed.ic.1UKCZeTeNG
      xlhoas architectes architects avenue louise dimitri interior 8 01x202.jpg.pagespeed.ic.1UKCZeTeNG
    • xlhoas architectes architects avenue louise dimitri interior 8 02x202.jpg.pagespeed.ic.ZjZpkN6YAi
      xlhoas architectes architects avenue louise dimitri interior 8 02x202.jpg.pagespeed.ic.ZjZpkN6YAi
    appartlouise lhoas lhoas 01x366
    appartlouise lhoas lhoas 02x758
    appartlouise lhoas lhoas 02x366
    appartlouise lhoas lhoas 03x821
    appartlouise lhoas lhoas 09x821
    appartlouise lhoas lhoas 14x821
    appartlouise lhoas lhoas 16x366
    appartlouise lhoas lhoas 18x366
    appartlouise lhoas lhoas 20x366
    appartlouise lhoas lhoas 21x366
    appartlouise lhoas lhoas 22x821
    appartlouise lhoas lhoas 32x366
    appartlouise lhoas lhoas 33x366
    appartlouise lhoas lhoas 34x366
    lhoas architectes architects avenue louise dimitri interior 1x186
    lhoas architectes architects avenue louise dimitri interior 2x183
    lhoas architectes architects avenue louise dimitri interior 8 01x202
    lhoas architectes architects avenue louise dimitri interior 8 02x202
    xappartlouise lhoas lhoas 01x366.jpg.pagespeed.ic.TzqrrwtTkl
    xappartlouise lhoas lhoas 02x758.jpg.pagespeed.ic.Vpp7eXRYdP
    xappartlouise lhoas lhoas 02x366.jpg.pagespeed.ic.tNuST8YLhk
    xlhoas architectes architects avenue louise dimitri interior 1x186.jpg.pagespeed.ic.2QHKJ84lXf
    xlhoas architectes architects avenue louise dimitri interior 3x551.jpg.pagespeed.ic.xfk75DQ2G5
    xlhoas architectes architects avenue louise dimitri interior 8 01x202.jpg.pagespeed.ic.1UKCZeTeNG
    xlhoas architectes architects avenue louise dimitri interior 8 02x202.jpg.pagespeed.ic.ZjZpkN6YAi
      • appartlouise lhoas lhoas 01x366
      • appartlouise lhoas lhoas 02x758
      • appartlouise lhoas lhoas 02x366
      • appartlouise lhoas lhoas 03x821
      • appartlouise lhoas lhoas 09x821
      • appartlouise lhoas lhoas 14x821
      • appartlouise lhoas lhoas 16x366
      • appartlouise lhoas lhoas 18x366
      • appartlouise lhoas lhoas 20x366
      • appartlouise lhoas lhoas 21x366
      • appartlouise lhoas lhoas 22x821
      • appartlouise lhoas lhoas 32x366
      • appartlouise lhoas lhoas 33x366
      • appartlouise lhoas lhoas 34x366
      • lhoas architectes architects avenue louise dimitri interior 1x186
      • lhoas architectes architects avenue louise dimitri interior 2x183
      • lhoas architectes architects avenue louise dimitri interior 8 01x202
      • lhoas architectes architects avenue louise dimitri interior 8 02x202
      • xappartlouise lhoas lhoas 01x366.jpg.pagespeed.ic.TzqrrwtTkl
      • xappartlouise lhoas lhoas 02x758.jpg.pagespeed.ic.Vpp7eXRYdP
      • xappartlouise lhoas lhoas 02x366.jpg.pagespeed.ic.tNuST8YLhk
      • xlhoas architectes architects avenue louise dimitri interior 1x186.jpg.pagespeed.ic.2QHKJ84lXf
      • xlhoas architectes architects avenue louise dimitri interior 3x551.jpg.pagespeed.ic.xfk75DQ2G5
      • xlhoas architectes architects avenue louise dimitri interior 8 01x202.jpg.pagespeed.ic.1UKCZeTeNG
      • xlhoas architectes architects avenue louise dimitri interior 8 02x202.jpg.pagespeed.ic.ZjZpkN6YAi

    Ciney

    Rénovation d'une maison-atelier.

      : Réalisé

      : 355 m2

      : Ciney, Belgium

      : 2013

      • lhoas architectes architect housing ciney 1x411
        lhoas architectes architect housing ciney 1x411
      • lhoas architectes architect housing ciney 10x731
        lhoas architectes architect housing ciney 10x731
      • lhoas architectes architect housing ciney 11x731
        lhoas architectes architect housing ciney 11x731
      • lhoas architectes architect housing ciney 12x731
        lhoas architectes architect housing ciney 12x731
      • lhoas architectes architect housing ciney 13x731
        lhoas architectes architect housing ciney 13x731
      • lhoas architectes architect housing ciney 14x731
        lhoas architectes architect housing ciney 14x731
      • lhoas architectes architect housing ciney 2x731
        lhoas architectes architect housing ciney 2x731
      • lhoas architectes architect housing ciney 4x921
        lhoas architectes architect housing ciney 4x921
      • lhoas architectes architect housing ciney 5x296
        lhoas architectes architect housing ciney 5x296
      • lhoas architectes architect housing ciney 6x557
        lhoas architectes architect housing ciney 6x557
      • lhoas architectes architect housing ciney 8x731
        lhoas architectes architect housing ciney 8x731
      • lhoas architectes architect housing ciney 9x731
        lhoas architectes architect housing ciney 9x731
      • xlhoas architectes architect housing ciney 4x921.jpg.pagespeed.ic.Z7Nm8gUz0L
        xlhoas architectes architect housing ciney 4x921.jpg.pagespeed.ic.Z7Nm8gUz0L
      • xlhoas architectes architect housing ciney 4x444.jpg.pagespeed.ic. 7 Q9gu2h4
        xlhoas architectes architect housing ciney 4x444.jpg.pagespeed.ic. 7 Q9gu2h4
      • xlhoas architectes architect housing ciney 5x296.jpg.pagespeed.ic.mBltNM un
        xlhoas architectes architect housing ciney 5x296.jpg.pagespeed.ic.mBltNM un
      lhoas architectes architect housing ciney 1x411
      lhoas architectes architect housing ciney 10x731
      lhoas architectes architect housing ciney 11x731
      lhoas architectes architect housing ciney 12x731
      lhoas architectes architect housing ciney 13x731
      lhoas architectes architect housing ciney 14x731
      lhoas architectes architect housing ciney 2x731
      lhoas architectes architect housing ciney 4x921
      lhoas architectes architect housing ciney 5x296
      lhoas architectes architect housing ciney 6x557
      lhoas architectes architect housing ciney 8x731
      lhoas architectes architect housing ciney 9x731
      xlhoas architectes architect housing ciney 4x921.jpg.pagespeed.ic.Z7Nm8gUz0L
      xlhoas architectes architect housing ciney 4x444.jpg.pagespeed.ic. 7 Q9gu2h4
      xlhoas architectes architect housing ciney 5x296.jpg.pagespeed.ic.mBltNM un
        • lhoas architectes architect housing ciney 1x411
        • lhoas architectes architect housing ciney 10x731
        • lhoas architectes architect housing ciney 11x731
        • lhoas architectes architect housing ciney 12x731
        • lhoas architectes architect housing ciney 13x731
        • lhoas architectes architect housing ciney 14x731
        • lhoas architectes architect housing ciney 2x731
        • lhoas architectes architect housing ciney 4x921
        • lhoas architectes architect housing ciney 5x296
        • lhoas architectes architect housing ciney 6x557
        • lhoas architectes architect housing ciney 8x731
        • lhoas architectes architect housing ciney 9x731
        • xlhoas architectes architect housing ciney 4x921.jpg.pagespeed.ic.Z7Nm8gUz0L
        • xlhoas architectes architect housing ciney 4x444.jpg.pagespeed.ic. 7 Q9gu2h4
        • xlhoas architectes architect housing ciney 5x296.jpg.pagespeed.ic.mBltNM un

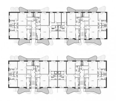
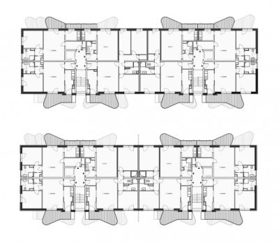
      Ommegang Marais

      Ce concours public a pour objectif de trouver une solution pour la rénovation de deux immeubles de logements sociaux situés à Bruxelles.

      - Rénovation et isolation de toute l’enveloppe (façades et toitures)
      - Installation d’un système de ventilation (cuisines, salles de bain, WC)

      Client : Le Foyer Bruxellois
      Surfaces : façades : 3042 m² + 2475 m² / toitures : 447 m² + 447 m²

        : Concours

        : 6000 m2

        : 3-5-7, Rue de l'Ommegang + 67-69, Rue du Marais, 1000, Brussels.

        : 4.129.772 €

        : 2013

        • lhoas architectes architects ommegang marais housing foyer 1x476
          lhoas architectes architects ommegang marais housing foyer 1x476
        • lhoas architectes architects ommegang marais housing foyer 10x250
          lhoas architectes architects ommegang marais housing foyer 10x250
        • lhoas architectes architects ommegang marais housing foyer 11x221
          lhoas architectes architects ommegang marais housing foyer 11x221
        • lhoas architectes architects ommegang marais housing foyer 12x215
          lhoas architectes architects ommegang marais housing foyer 12x215
        • lhoas architectes architects ommegang marais housing foyer 13x1950
          lhoas architectes architects ommegang marais housing foyer 13x1950
        • lhoas architectes architects ommegang marais housing foyer 13x941
          lhoas architectes architects ommegang marais housing foyer 13x941
        • lhoas architectes architects ommegang marais housing foyer 2x353
          lhoas architectes architects ommegang marais housing foyer 2x353
        • lhoas architectes architects ommegang marais housing foyer 3x252
          lhoas architectes architects ommegang marais housing foyer 3x252
        • lhoas architectes architects ommegang marais housing foyer 6x360
          lhoas architectes architects ommegang marais housing foyer 6x360
        • lhoas architectes architects ommegang marais housing foyer 7x360
          lhoas architectes architects ommegang marais housing foyer 7x360
        • lhoas architectes architects ommegang marais housing foyer 8x360
          lhoas architectes architects ommegang marais housing foyer 8x360
        • lhoas architectes architects ommegang marais housing foyer 9x225
          lhoas architectes architects ommegang marais housing foyer 9x225
        • xlhoas architectes architects ommegang marais housing foyer 1x476.jpg.pagespeed.ic.r2VnhFJnZH
          xlhoas architectes architects ommegang marais housing foyer 1x476.jpg.pagespeed.ic.r2VnhFJnZH
        • xlhoas architectes architects ommegang marais housing foyer 10x250.jpg.pagespeed.ic.MGzz3wKVNF
          xlhoas architectes architects ommegang marais housing foyer 10x250.jpg.pagespeed.ic.MGzz3wKVNF
        • xlhoas architectes architects ommegang marais housing foyer 11x221.jpg.pagespeed.ic.8 OW1nxqm3
          xlhoas architectes architects ommegang marais housing foyer 11x221.jpg.pagespeed.ic.8 OW1nxqm3
        • xlhoas architectes architects ommegang marais housing foyer 12x215.jpg.pagespeed.ic.ubNtPu5stT
          xlhoas architectes architects ommegang marais housing foyer 12x215.jpg.pagespeed.ic.ubNtPu5stT
        • xlhoas architectes architects ommegang marais housing foyer 13x1950.jpg.pagespeed.ic.lZnUFm995L
          xlhoas architectes architects ommegang marais housing foyer 13x1950.jpg.pagespeed.ic.lZnUFm995L
        • xlhoas architectes architects ommegang marais housing foyer 13x941.jpg.pagespeed.ic.OEa fGx6Lm
          xlhoas architectes architects ommegang marais housing foyer 13x941.jpg.pagespeed.ic.OEa fGx6Lm
        • xlhoas architectes architects ommegang marais housing foyer 5x449.jpg.pagespeed.ic.ehvhsxI9F3
          xlhoas architectes architects ommegang marais housing foyer 5x449.jpg.pagespeed.ic.ehvhsxI9F3
        • xlhoas architectes architects ommegang marais housing foyer 9x225.jpg.pagespeed.ic.1Wx D6CFgT
          xlhoas architectes architects ommegang marais housing foyer 9x225.jpg.pagespeed.ic.1Wx D6CFgT
        lhoas architectes architects ommegang marais housing foyer 1x476
        lhoas architectes architects ommegang marais housing foyer 10x250
        lhoas architectes architects ommegang marais housing foyer 11x221
        lhoas architectes architects ommegang marais housing foyer 12x215
        lhoas architectes architects ommegang marais housing foyer 13x1950
        lhoas architectes architects ommegang marais housing foyer 13x941
        lhoas architectes architects ommegang marais housing foyer 2x353
        lhoas architectes architects ommegang marais housing foyer 3x252
        lhoas architectes architects ommegang marais housing foyer 6x360
        lhoas architectes architects ommegang marais housing foyer 7x360
        lhoas architectes architects ommegang marais housing foyer 8x360
        lhoas architectes architects ommegang marais housing foyer 9x225
        xlhoas architectes architects ommegang marais housing foyer 1x476.jpg.pagespeed.ic.r2VnhFJnZH
        xlhoas architectes architects ommegang marais housing foyer 10x250.jpg.pagespeed.ic.MGzz3wKVNF
        xlhoas architectes architects ommegang marais housing foyer 11x221.jpg.pagespeed.ic.8 OW1nxqm3
        xlhoas architectes architects ommegang marais housing foyer 12x215.jpg.pagespeed.ic.ubNtPu5stT
        xlhoas architectes architects ommegang marais housing foyer 13x1950.jpg.pagespeed.ic.lZnUFm995L
        xlhoas architectes architects ommegang marais housing foyer 13x941.jpg.pagespeed.ic.OEa fGx6Lm
        xlhoas architectes architects ommegang marais housing foyer 5x449.jpg.pagespeed.ic.ehvhsxI9F3
        xlhoas architectes architects ommegang marais housing foyer 9x225.jpg.pagespeed.ic.1Wx D6CFgT
          • lhoas architectes architects ommegang marais housing foyer 1x476
          • lhoas architectes architects ommegang marais housing foyer 10x250
          • lhoas architectes architects ommegang marais housing foyer 11x221
          • lhoas architectes architects ommegang marais housing foyer 12x215
          • lhoas architectes architects ommegang marais housing foyer 13x1950
          • lhoas architectes architects ommegang marais housing foyer 13x941
          • lhoas architectes architects ommegang marais housing foyer 2x353
          • lhoas architectes architects ommegang marais housing foyer 3x252
          • lhoas architectes architects ommegang marais housing foyer 6x360
          • lhoas architectes architects ommegang marais housing foyer 7x360
          • lhoas architectes architects ommegang marais housing foyer 8x360
          • lhoas architectes architects ommegang marais housing foyer 9x225
          • xlhoas architectes architects ommegang marais housing foyer 1x476.jpg.pagespeed.ic.r2VnhFJnZH
          • xlhoas architectes architects ommegang marais housing foyer 10x250.jpg.pagespeed.ic.MGzz3wKVNF
          • xlhoas architectes architects ommegang marais housing foyer 11x221.jpg.pagespeed.ic.8 OW1nxqm3
          • xlhoas architectes architects ommegang marais housing foyer 12x215.jpg.pagespeed.ic.ubNtPu5stT
          • xlhoas architectes architects ommegang marais housing foyer 13x1950.jpg.pagespeed.ic.lZnUFm995L
          • xlhoas architectes architects ommegang marais housing foyer 13x941.jpg.pagespeed.ic.OEa fGx6Lm
          • xlhoas architectes architects ommegang marais housing foyer 5x449.jpg.pagespeed.ic.ehvhsxI9F3
          • xlhoas architectes architects ommegang marais housing foyer 9x225.jpg.pagespeed.ic.1Wx D6CFgT

        La Hulpe

        Projet d'une maison familiale avec extensions (garage et cuisine) ainsi qu'un espace pour des chevaux.

         

         

          : 256 m2

          : La Hulpe, Belgium

          : 2012

          • la hulpe coverx1646
            la hulpe coverx1646
          • la hulpe photo maquettex132
            la hulpe photo maquettex132
          • plans page 2 2x474
            plans page 2 2x474
          • xcover 8x244.jpg.pagespeed.ic.z0PhhCNkOO
            xcover 8x244.jpg.pagespeed.ic.z0PhhCNkOO
          • xla hulpe coverx1646.jpg.pagespeed.ic.lk RGxVbJb
            xla hulpe coverx1646.jpg.pagespeed.ic.lk RGxVbJb
          • xla hulpe photo maquettex132.jpg.pagespeed.ic.W8yJZJ5syg
            xla hulpe photo maquettex132.jpg.pagespeed.ic.W8yJZJ5syg
          la hulpe coverx1646
          la hulpe photo maquettex132
          plans page 2 2x474
          xcover 8x244.jpg.pagespeed.ic.z0PhhCNkOO
          xla hulpe coverx1646.jpg.pagespeed.ic.lk RGxVbJb
          xla hulpe photo maquettex132.jpg.pagespeed.ic.W8yJZJ5syg
            • la hulpe coverx1646
            • la hulpe photo maquettex132
            • plans page 2 2x474
            • xcover 8x244.jpg.pagespeed.ic.z0PhhCNkOO
            • xla hulpe coverx1646.jpg.pagespeed.ic.lk RGxVbJb
            • xla hulpe photo maquettex132.jpg.pagespeed.ic.W8yJZJ5syg

          Tivoli

          Construction d’un quartier durable de +/- 40.000 m² plancher de logements conventionnés et sociaux sur base d'un partenariat public-privé.

          Nous avons été sélectionnés par le promoteur Thomas & Piron, dans une équipe avec 5 autres bureaux d’architectes et urbanistes, pour participer à un appel d’offre restreint pour le projet - mené par la S.D.R.B. - Tivioli, quartier Durable, qui consiste à réaliser un quartier durable exemplaire comprenant l’aménagement du site Tivoli, Rue Claesens à Laeken.

          Programme global :

          • développement de près de 450 logements passifs
          • aménagement des voiries et d'un parc
          • mise en en place de deux crèches
          • intégration d'équipements complémentaires

            : 2012

            • lhoas architectes architects housing tivoli 1x132
              lhoas architectes architects housing tivoli 1x132
            • lhoas architectes architects housing tivoli 2x194
              lhoas architectes architects housing tivoli 2x194
            • lhoas architectes architects housing tivoli 3x797
              lhoas architectes architects housing tivoli 3x797
            • lhoas architectes architects housing tivoli 4x387
              lhoas architectes architects housing tivoli 4x387
            • lhoas architectes architects housing tivoli 6x2357
              lhoas architectes architects housing tivoli 6x2357
            • lhoas architectes architects housing tivoli 6x1137
              lhoas architectes architects housing tivoli 6x1137
            • lhoas architectes architects housing tivoli 7x194
              lhoas architectes architects housing tivoli 7x194
            • lhoas architectes architects housing tivoli masterplanx397
              lhoas architectes architects housing tivoli masterplanx397
            • lhoas architectes architects housing tivoli plans 1x387
              lhoas architectes architects housing tivoli plans 1x387
            • lhoas architectes architects housing tivoli plans 4x387
              lhoas architectes architects housing tivoli plans 4x387
            • lhoas architectes architects housing tivoli plans 5x387
              lhoas architectes architects housing tivoli plans 5x387
            • xlhoas architectes architects housing tivoli 1x132.jpg.pagespeed.ic.mg8GhPdH43
              xlhoas architectes architects housing tivoli 1x132.jpg.pagespeed.ic.mg8GhPdH43
            • xlhoas architectes architects housing tivoli 2x194.jpg.pagespeed.ic.kwzaaop sY
              xlhoas architectes architects housing tivoli 2x194.jpg.pagespeed.ic.kwzaaop sY
            • xlhoas architectes architects housing tivoli 3x797.jpg.pagespeed.ic.Ugkj78kiEj
              xlhoas architectes architects housing tivoli 3x797.jpg.pagespeed.ic.Ugkj78kiEj
            • xlhoas architectes architects housing tivoli 5x548.jpg.pagespeed.ic.PTlAalB206
              xlhoas architectes architects housing tivoli 5x548.jpg.pagespeed.ic.PTlAalB206
            • xlhoas architectes architects housing tivoli 6x2357.jpg.pagespeed.ic.yYrnT i 7L
              xlhoas architectes architects housing tivoli 6x2357.jpg.pagespeed.ic.yYrnT i 7L
            • xlhoas architectes architects housing tivoli masterplanx397.jpg.pagespeed.ic.C8bNNFTHwn
              xlhoas architectes architects housing tivoli masterplanx397.jpg.pagespeed.ic.C8bNNFTHwn
            lhoas architectes architects housing tivoli 1x132
            lhoas architectes architects housing tivoli 2x194
            lhoas architectes architects housing tivoli 3x797
            lhoas architectes architects housing tivoli 4x387
            lhoas architectes architects housing tivoli 6x2357
            lhoas architectes architects housing tivoli 6x1137
            lhoas architectes architects housing tivoli 7x194
            lhoas architectes architects housing tivoli masterplanx397
            lhoas architectes architects housing tivoli plans 1x387
            lhoas architectes architects housing tivoli plans 4x387
            lhoas architectes architects housing tivoli plans 5x387
            xlhoas architectes architects housing tivoli 1x132.jpg.pagespeed.ic.mg8GhPdH43
            xlhoas architectes architects housing tivoli 2x194.jpg.pagespeed.ic.kwzaaop sY
            xlhoas architectes architects housing tivoli 3x797.jpg.pagespeed.ic.Ugkj78kiEj
            xlhoas architectes architects housing tivoli 5x548.jpg.pagespeed.ic.PTlAalB206
            xlhoas architectes architects housing tivoli 6x2357.jpg.pagespeed.ic.yYrnT i 7L
            xlhoas architectes architects housing tivoli masterplanx397.jpg.pagespeed.ic.C8bNNFTHwn
              • lhoas architectes architects housing tivoli 1x132
              • lhoas architectes architects housing tivoli 2x194
              • lhoas architectes architects housing tivoli 3x797
              • lhoas architectes architects housing tivoli 4x387
              • lhoas architectes architects housing tivoli 6x2357
              • lhoas architectes architects housing tivoli 6x1137
              • lhoas architectes architects housing tivoli 7x194
              • lhoas architectes architects housing tivoli masterplanx397
              • lhoas architectes architects housing tivoli plans 1x387
              • lhoas architectes architects housing tivoli plans 4x387
              • lhoas architectes architects housing tivoli plans 5x387
              • xlhoas architectes architects housing tivoli 1x132.jpg.pagespeed.ic.mg8GhPdH43
              • xlhoas architectes architects housing tivoli 2x194.jpg.pagespeed.ic.kwzaaop sY
              • xlhoas architectes architects housing tivoli 3x797.jpg.pagespeed.ic.Ugkj78kiEj
              • xlhoas architectes architects housing tivoli 5x548.jpg.pagespeed.ic.PTlAalB206
              • xlhoas architectes architects housing tivoli 6x2357.jpg.pagespeed.ic.yYrnT i 7L
              • xlhoas architectes architects housing tivoli masterplanx397.jpg.pagespeed.ic.C8bNNFTHwn

            Plus d'articles...

            1. Boris
            2. Carole & Christophe
            3. Cuisine de Thierry & Lydie
            4. Thierry & Lydie

            Page 4 sur 6

            • 1
            • 2
            • 3
            • 4
            • 5
            • 6

            Lhoas & Lhoas architects

            info@lhoas-lhoas.com
            62/11, Chaussée de Forest 1060, Bruxelles, Belgique
            +32 (0)2 372.08.75
            Facebook
            Instagram
            © 2006 - 2025 Designed and developped by La Missive
            • Architecture
              • Habitat
              • Usage Mixte
              • Bureau
              • Commercial
              • Culture
              • Scénographie
              • Chronologie
            • Design
              • Sur mesure
              • Meuble
              • Chronologie
            • Publications
              • Expositions
              • Presse
              • Conférences
              • Chronologie
            • A propos de nous