Lhoas & Lhoas
  • Architecture
    • Habitat
    • Usage Mixte
    • Bureau
    • Commercial
    • Culture
    • Scénographie
    • Chronologie
  • Design
    • Sur mesure
    • Meuble
    • Chronologie
  • Publications
    • Expositions
    • Presse
    • Conférences
    • Chronologie
  • A propos de nous
Lhoas & Lhoas

Sélectionnez votre langue

  • FR
  • EN
  1. Vous êtes ici :  
  2. Accueil

Boris

Cet appartement remplace plusieurs petites chambres de bonnes situées sous les toits. En ouvrant l’espace, les vues intérieures et extérieures deviennent plus intéressantes, le lieu devient plus lumineux et fonctionnel.
Le mobilier a aussi été dessiné pour jouer avec les lignes architecturales.

    : Réalisé

    : 170 m2

    : 2010

    : 354photographers

    • boris05x365
      boris05x365
    • boris06x365
      boris06x365
    • boris07x365
      boris07x365
    • boris08x758
      boris08x758
    • boris08x365
      boris08x365
    • boris09x822
      boris09x822
    • boris10x822
      boris10x822
    • boris11x365
      boris11x365
    • boris12x822
      boris12x822
    • xboris02x365.jpg.pagespeed.ic.75Xo0A6GvV
      xboris02x365.jpg.pagespeed.ic.75Xo0A6GvV
    • xboris05x365.jpg.pagespeed.ic.9lcuV9p8uL
      xboris05x365.jpg.pagespeed.ic.9lcuV9p8uL
    • xboris08x758.jpg.pagespeed.ic.JkQDSTwAvy
      xboris08x758.jpg.pagespeed.ic.JkQDSTwAvy
    boris05x365
    boris06x365
    boris07x365
    boris08x758
    boris08x365
    boris09x822
    boris10x822
    boris11x365
    boris12x822
    xboris02x365.jpg.pagespeed.ic.75Xo0A6GvV
    xboris05x365.jpg.pagespeed.ic.9lcuV9p8uL
    xboris08x758.jpg.pagespeed.ic.JkQDSTwAvy
      • boris05x365
      • boris06x365
      • boris07x365
      • boris08x758
      • boris08x365
      • boris09x822
      • boris10x822
      • boris11x365
      • boris12x822
      • xboris02x365.jpg.pagespeed.ic.75Xo0A6GvV
      • xboris05x365.jpg.pagespeed.ic.9lcuV9p8uL
      • xboris08x758.jpg.pagespeed.ic.JkQDSTwAvy

    Carole & Christophe

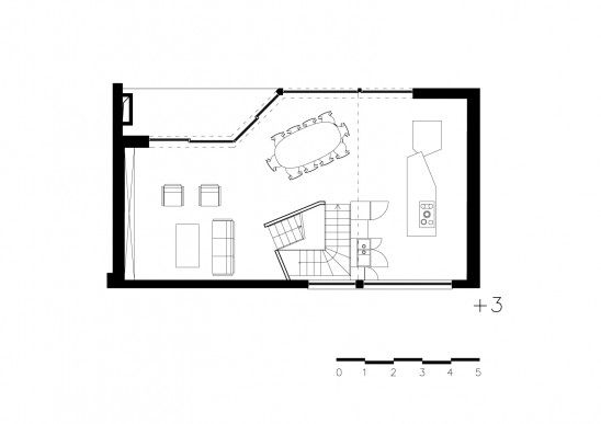
    Ce projet s'inscrit dans un plus vaste projet de rénovation d'un ancien entrepôt au centre de Bruxelles. Cette famille a choisi de s'installer dans un bâtiment à front de rue de 3 niveaux qui a été réhaussé d'un niveau et demi. Le rez-de-chaussée permet l'accès aux autres propriétés du bâtiment. L'aménagement est rationnel. Le séjour a été placé dans le nouveau volume au dernier étage afin de bénéficier du panorama sur la ville. Un escalier central distribue vers les autres pièces de l'habitation, élément sculpté qui se perçoit comme une masse sombre. Son dessin est volontairement sinueux ce qui induit une certaine complexité, en brouillant les repères il donne une nouvelle dimension au parcours. Les chambres sont aménagées de manière très simple autour de cet escalier en fonction des vues et de l'orientation. Enfin certains éléments comme la cuisine ont été dessinés sur mesure. Elle se présente comme un assemblage d'objets distincts qui peuvent être utilisés séparément ou ensemble. Une structure en métal semblable à celle d'un cadre de vélo tisse le lien entre chaque élément, chaque fonction.

     

      : Réalisé

      : 210 m2

      : Bruxelles

      : 2010

      • lhoas17x1704
        lhoas17x1704
      • lhoas architectes architects carole christophe house appartement apartment 1x365
        lhoas architectes architects carole christophe house appartement apartment 1x365
      • lhoas architectes architects carole christophe house appartement apartment 10x822
        lhoas architectes architects carole christophe house appartement apartment 10x822
      • lhoas architectes architects carole christophe house appartement apartment 11x365
        lhoas architectes architects carole christophe house appartement apartment 11x365
      • lhoas architectes architects carole christophe house appartement apartment 12x365
        lhoas architectes architects carole christophe house appartement apartment 12x365
      • lhoas architectes architects carole christophe house appartement apartment 13x365
        lhoas architectes architects carole christophe house appartement apartment 13x365
      • lhoas architectes architects carole christophe house appartement apartment 14x374
        lhoas architectes architects carole christophe house appartement apartment 14x374
      • lhoas architectes architects carole christophe house appartement apartment 16x822
        lhoas architectes architects carole christophe house appartement apartment 16x822
      • lhoas architectes architects carole christophe house appartement apartment 17x822
        lhoas architectes architects carole christophe house appartement apartment 17x822
      • lhoas architectes architects carole christophe house appartement apartment 18x365
        lhoas architectes architects carole christophe house appartement apartment 18x365
      • lhoas architectes architects carole christophe house appartement apartment 3x822
        lhoas architectes architects carole christophe house appartement apartment 3x822
      • lhoas architectes architects carole christophe house appartement apartment 4x365
        lhoas architectes architects carole christophe house appartement apartment 4x365
      • lhoas architectes architects carole christophe house appartement apartment 5x822
        lhoas architectes architects carole christophe house appartement apartment 5x822
      • lhoas architectes architects carole christophe house appartement apartment 6x365
        lhoas architectes architects carole christophe house appartement apartment 6x365
      • lhoas architectes architects carole christophe house appartement apartment 7x822
        lhoas architectes architects carole christophe house appartement apartment 7x822
      • lhoas architectes architects carole christophe house appartement apartment 8x822
        lhoas architectes architects carole christophe house appartement apartment 8x822
      • lhoas architectes architects carole christophe house appartement apartment 9x822
        lhoas architectes architects carole christophe house appartement apartment 9x822
      • niveau 1x387
        niveau 1x387
      • niveau 2x387
        niveau 2x387
      • niveau 3x387
        niveau 3x387
      • xlhoas17x1704.jpg.pagespeed.ic.leW6UAg QR
        xlhoas17x1704.jpg.pagespeed.ic.leW6UAg QR
      • xlhoas17x822.jpg.pagespeed.ic.PxQpKDBn1l
        xlhoas17x822.jpg.pagespeed.ic.PxQpKDBn1l
      • xlhoas architectes architects carole christophe house appartement apartment 1x365.jpg.pagespeed.ic.gtHB6Tj3CZ
        xlhoas architectes architects carole christophe house appartement apartment 1x365.jpg.pagespeed.ic.gtHB6Tj3CZ
      • xlhoas architectes architects carole christophe house appartement apartment 10x822.jpg.pagespeed.ic.fMPcKS1Nao
        xlhoas architectes architects carole christophe house appartement apartment 10x822.jpg.pagespeed.ic.fMPcKS1Nao
      • xlhoas architectes architects carole christophe house appartement apartment 11x365.jpg.pagespeed.ic.wXVVuZswg1
        xlhoas architectes architects carole christophe house appartement apartment 11x365.jpg.pagespeed.ic.wXVVuZswg1
      • xlhoas architectes architects carole christophe house appartement apartment 12x365.jpg.pagespeed.ic.01As 4Hl4q
        xlhoas architectes architects carole christophe house appartement apartment 12x365.jpg.pagespeed.ic.01As 4Hl4q
      • xlhoas architectes architects carole christophe house appartement apartment 13x365.jpg.pagespeed.ic.246pOMjSbk
        xlhoas architectes architects carole christophe house appartement apartment 13x365.jpg.pagespeed.ic.246pOMjSbk
      • xlhoas architectes architects carole christophe house appartement apartment 14x374.jpg.pagespeed.ic.9QE 9gu HX
        xlhoas architectes architects carole christophe house appartement apartment 14x374.jpg.pagespeed.ic.9QE 9gu HX
      • xlhoas architectes architects carole christophe house appartement apartment 16x822.jpg.pagespeed.ic.DsuVyi1Eod
        xlhoas architectes architects carole christophe house appartement apartment 16x822.jpg.pagespeed.ic.DsuVyi1Eod
      • xlhoas architectes architects carole christophe house appartement apartment 17x822.jpg.pagespeed.ic.meQQJiBIIw
        xlhoas architectes architects carole christophe house appartement apartment 17x822.jpg.pagespeed.ic.meQQJiBIIw
      • xlhoas architectes architects carole christophe house appartement apartment 18x365.jpg.pagespeed.ic.CT4OxxmnS9
        xlhoas architectes architects carole christophe house appartement apartment 18x365.jpg.pagespeed.ic.CT4OxxmnS9
      • xlhoas architectes architects carole christophe house appartement apartment 3x822.jpg.pagespeed.ic.fDD0BYkXzM
        xlhoas architectes architects carole christophe house appartement apartment 3x822.jpg.pagespeed.ic.fDD0BYkXzM
      • xlhoas architectes architects carole christophe house appartement apartment 4x365.jpg.pagespeed.ic.wQOmAm FAz
        xlhoas architectes architects carole christophe house appartement apartment 4x365.jpg.pagespeed.ic.wQOmAm FAz
      • xlhoas architectes architects carole christophe house appartement apartment 5x822.jpg.pagespeed.ic.5cwzFSg33D
        xlhoas architectes architects carole christophe house appartement apartment 5x822.jpg.pagespeed.ic.5cwzFSg33D
      • xlhoas architectes architects carole christophe house appartement apartment 6x365.jpg.pagespeed.ic.Ghsr47aq3P
        xlhoas architectes architects carole christophe house appartement apartment 6x365.jpg.pagespeed.ic.Ghsr47aq3P
      • xlhoas architectes architects carole christophe house appartement apartment 7x822.jpg.pagespeed.ic.mePKnfjgJg
        xlhoas architectes architects carole christophe house appartement apartment 7x822.jpg.pagespeed.ic.mePKnfjgJg
      • xlhoas architectes architects carole christophe house appartement apartment 8x822.jpg.pagespeed.ic.PxQpKDBn1l
        xlhoas architectes architects carole christophe house appartement apartment 8x822.jpg.pagespeed.ic.PxQpKDBn1l
      • xlhoas architectes architects carole christophe house appartement apartment 9x822.jpg.pagespeed.ic.9oLD19 wHB
        xlhoas architectes architects carole christophe house appartement apartment 9x822.jpg.pagespeed.ic.9oLD19 wHB
      • xniveau 1x387.jpg.pagespeed.ic.mscYOKMFWx
        xniveau 1x387.jpg.pagespeed.ic.mscYOKMFWx
      • xniveau 2x387.jpg.pagespeed.ic.BO9RSlpSMI
        xniveau 2x387.jpg.pagespeed.ic.BO9RSlpSMI
      • xniveau 3x387.jpg.pagespeed.ic.H2yx0OR2CM
        xniveau 3x387.jpg.pagespeed.ic.H2yx0OR2CM
      lhoas17x1704
      lhoas architectes architects carole christophe house appartement apartment 1x365
      lhoas architectes architects carole christophe house appartement apartment 10x822
      lhoas architectes architects carole christophe house appartement apartment 11x365
      lhoas architectes architects carole christophe house appartement apartment 12x365
      lhoas architectes architects carole christophe house appartement apartment 13x365
      lhoas architectes architects carole christophe house appartement apartment 14x374
      lhoas architectes architects carole christophe house appartement apartment 16x822
      lhoas architectes architects carole christophe house appartement apartment 17x822
      lhoas architectes architects carole christophe house appartement apartment 18x365
      lhoas architectes architects carole christophe house appartement apartment 3x822
      lhoas architectes architects carole christophe house appartement apartment 4x365
      lhoas architectes architects carole christophe house appartement apartment 5x822
      lhoas architectes architects carole christophe house appartement apartment 6x365
      lhoas architectes architects carole christophe house appartement apartment 7x822
      lhoas architectes architects carole christophe house appartement apartment 8x822
      lhoas architectes architects carole christophe house appartement apartment 9x822
      niveau 1x387
      niveau 2x387
      niveau 3x387
      xlhoas17x1704.jpg.pagespeed.ic.leW6UAg QR
      xlhoas17x822.jpg.pagespeed.ic.PxQpKDBn1l
      xlhoas architectes architects carole christophe house appartement apartment 1x365.jpg.pagespeed.ic.gtHB6Tj3CZ
      xlhoas architectes architects carole christophe house appartement apartment 10x822.jpg.pagespeed.ic.fMPcKS1Nao
      xlhoas architectes architects carole christophe house appartement apartment 11x365.jpg.pagespeed.ic.wXVVuZswg1
      xlhoas architectes architects carole christophe house appartement apartment 12x365.jpg.pagespeed.ic.01As 4Hl4q
      xlhoas architectes architects carole christophe house appartement apartment 13x365.jpg.pagespeed.ic.246pOMjSbk
      xlhoas architectes architects carole christophe house appartement apartment 14x374.jpg.pagespeed.ic.9QE 9gu HX
      xlhoas architectes architects carole christophe house appartement apartment 16x822.jpg.pagespeed.ic.DsuVyi1Eod
      xlhoas architectes architects carole christophe house appartement apartment 17x822.jpg.pagespeed.ic.meQQJiBIIw
      xlhoas architectes architects carole christophe house appartement apartment 18x365.jpg.pagespeed.ic.CT4OxxmnS9
      xlhoas architectes architects carole christophe house appartement apartment 3x822.jpg.pagespeed.ic.fDD0BYkXzM
      xlhoas architectes architects carole christophe house appartement apartment 4x365.jpg.pagespeed.ic.wQOmAm FAz
      xlhoas architectes architects carole christophe house appartement apartment 5x822.jpg.pagespeed.ic.5cwzFSg33D
      xlhoas architectes architects carole christophe house appartement apartment 6x365.jpg.pagespeed.ic.Ghsr47aq3P
      xlhoas architectes architects carole christophe house appartement apartment 7x822.jpg.pagespeed.ic.mePKnfjgJg
      xlhoas architectes architects carole christophe house appartement apartment 8x822.jpg.pagespeed.ic.PxQpKDBn1l
      xlhoas architectes architects carole christophe house appartement apartment 9x822.jpg.pagespeed.ic.9oLD19 wHB
      xniveau 1x387.jpg.pagespeed.ic.mscYOKMFWx
      xniveau 2x387.jpg.pagespeed.ic.BO9RSlpSMI
      xniveau 3x387.jpg.pagespeed.ic.H2yx0OR2CM
        • lhoas17x1704
        • lhoas architectes architects carole christophe house appartement apartment 1x365
        • lhoas architectes architects carole christophe house appartement apartment 10x822
        • lhoas architectes architects carole christophe house appartement apartment 11x365
        • lhoas architectes architects carole christophe house appartement apartment 12x365
        • lhoas architectes architects carole christophe house appartement apartment 13x365
        • lhoas architectes architects carole christophe house appartement apartment 14x374
        • lhoas architectes architects carole christophe house appartement apartment 16x822
        • lhoas architectes architects carole christophe house appartement apartment 17x822
        • lhoas architectes architects carole christophe house appartement apartment 18x365
        • lhoas architectes architects carole christophe house appartement apartment 3x822
        • lhoas architectes architects carole christophe house appartement apartment 4x365
        • lhoas architectes architects carole christophe house appartement apartment 5x822
        • lhoas architectes architects carole christophe house appartement apartment 6x365
        • lhoas architectes architects carole christophe house appartement apartment 7x822
        • lhoas architectes architects carole christophe house appartement apartment 8x822
        • lhoas architectes architects carole christophe house appartement apartment 9x822
        • niveau 1x387
        • niveau 2x387
        • niveau 3x387
        • xlhoas17x1704.jpg.pagespeed.ic.leW6UAg QR
        • xlhoas17x822.jpg.pagespeed.ic.PxQpKDBn1l
        • xlhoas architectes architects carole christophe house appartement apartment 1x365.jpg.pagespeed.ic.gtHB6Tj3CZ
        • xlhoas architectes architects carole christophe house appartement apartment 10x822.jpg.pagespeed.ic.fMPcKS1Nao
        • xlhoas architectes architects carole christophe house appartement apartment 11x365.jpg.pagespeed.ic.wXVVuZswg1
        • xlhoas architectes architects carole christophe house appartement apartment 12x365.jpg.pagespeed.ic.01As 4Hl4q
        • xlhoas architectes architects carole christophe house appartement apartment 13x365.jpg.pagespeed.ic.246pOMjSbk
        • xlhoas architectes architects carole christophe house appartement apartment 14x374.jpg.pagespeed.ic.9QE 9gu HX
        • xlhoas architectes architects carole christophe house appartement apartment 16x822.jpg.pagespeed.ic.DsuVyi1Eod
        • xlhoas architectes architects carole christophe house appartement apartment 17x822.jpg.pagespeed.ic.meQQJiBIIw
        • xlhoas architectes architects carole christophe house appartement apartment 18x365.jpg.pagespeed.ic.CT4OxxmnS9
        • xlhoas architectes architects carole christophe house appartement apartment 3x822.jpg.pagespeed.ic.fDD0BYkXzM
        • xlhoas architectes architects carole christophe house appartement apartment 4x365.jpg.pagespeed.ic.wQOmAm FAz
        • xlhoas architectes architects carole christophe house appartement apartment 5x822.jpg.pagespeed.ic.5cwzFSg33D
        • xlhoas architectes architects carole christophe house appartement apartment 6x365.jpg.pagespeed.ic.Ghsr47aq3P
        • xlhoas architectes architects carole christophe house appartement apartment 7x822.jpg.pagespeed.ic.mePKnfjgJg
        • xlhoas architectes architects carole christophe house appartement apartment 8x822.jpg.pagespeed.ic.PxQpKDBn1l
        • xlhoas architectes architects carole christophe house appartement apartment 9x822.jpg.pagespeed.ic.9oLD19 wHB
        • xniveau 1x387.jpg.pagespeed.ic.mscYOKMFWx
        • xniveau 2x387.jpg.pagespeed.ic.BO9RSlpSMI
        • xniveau 3x387.jpg.pagespeed.ic.H2yx0OR2CM

      Cuisine de Thierry & Lydie

        : Réalisé

        : 2010

        • lhoas architects architectes kitchen photos credits lydie nevsadba 1x1704
          lhoas architects architectes kitchen photos credits lydie nevsadba 1x1704
        • lhoas architects architectes kitchen photos credits lydie nevsadba 11x758
          lhoas architects architectes kitchen photos credits lydie nevsadba 11x758
        • lhoas architects architectes kitchen photos credits lydie nevsadba 12x1704
          lhoas architects architectes kitchen photos credits lydie nevsadba 12x1704
        • lhoas architects architectes kitchen photos credits lydie nevsadba 14x758
          lhoas architects architectes kitchen photos credits lydie nevsadba 14x758
        • lhoas architects architectes kitchen photos credits lydie nevsadba 15x742
          lhoas architects architectes kitchen photos credits lydie nevsadba 15x742
        • lhoas architects architectes kitchen photos credits lydie nevsadba 3x1704
          lhoas architects architectes kitchen photos credits lydie nevsadba 3x1704
        • lhoas architects architectes kitchen photos credits lydie nevsadba 4x1664
          lhoas architects architectes kitchen photos credits lydie nevsadba 4x1664
        • lhoas architects architectes kitchen photos credits lydie nevsadba 5x1704
          lhoas architects architectes kitchen photos credits lydie nevsadba 5x1704
        • lhoas architects architectes kitchen photos credits lydie nevsadba 6x1704
          lhoas architects architectes kitchen photos credits lydie nevsadba 6x1704
        • lhoas architects architectes kitchen photos credits lydie nevsadba 9x1704
          lhoas architects architectes kitchen photos credits lydie nevsadba 9x1704
        • xlhoas architects architectes kitchen photos credits lydie nevsadba 1x1704.jpg.pagespeed.ic.BqUFsXVqdJ
          xlhoas architects architectes kitchen photos credits lydie nevsadba 1x1704.jpg.pagespeed.ic.BqUFsXVqdJ
        • xlhoas architects architectes kitchen photos credits lydie nevsadba 11x758.jpg.pagespeed.ic.jDkeGHgdIJ
          xlhoas architects architectes kitchen photos credits lydie nevsadba 11x758.jpg.pagespeed.ic.jDkeGHgdIJ
        • xlhoas architects architectes kitchen photos credits lydie nevsadba 12x1704.jpg.pagespeed.ic.2GGvbwdMSB
          xlhoas architects architectes kitchen photos credits lydie nevsadba 12x1704.jpg.pagespeed.ic.2GGvbwdMSB
        • xlhoas architects architectes kitchen photos credits lydie nevsadba 14x758.jpg.pagespeed.ic.QPrL1DOS7W
          xlhoas architects architectes kitchen photos credits lydie nevsadba 14x758.jpg.pagespeed.ic.QPrL1DOS7W
        • xlhoas architects architectes kitchen photos credits lydie nevsadba 15x742.jpg.pagespeed.ic. K1CasXnWo
          xlhoas architects architectes kitchen photos credits lydie nevsadba 15x742.jpg.pagespeed.ic. K1CasXnWo
        • xlhoas architects architectes kitchen photos credits lydie nevsadba 3x1704.jpg.pagespeed.ic.AxV myP1oJ
          xlhoas architects architectes kitchen photos credits lydie nevsadba 3x1704.jpg.pagespeed.ic.AxV myP1oJ
        • xlhoas architects architectes kitchen photos credits lydie nevsadba 4x1664.jpg.pagespeed.ic.HSix8cUEu5
          xlhoas architects architectes kitchen photos credits lydie nevsadba 4x1664.jpg.pagespeed.ic.HSix8cUEu5
        lhoas architects architectes kitchen photos credits lydie nevsadba 1x1704
        lhoas architects architectes kitchen photos credits lydie nevsadba 11x758
        lhoas architects architectes kitchen photos credits lydie nevsadba 12x1704
        lhoas architects architectes kitchen photos credits lydie nevsadba 14x758
        lhoas architects architectes kitchen photos credits lydie nevsadba 15x742
        lhoas architects architectes kitchen photos credits lydie nevsadba 3x1704
        lhoas architects architectes kitchen photos credits lydie nevsadba 4x1664
        lhoas architects architectes kitchen photos credits lydie nevsadba 5x1704
        lhoas architects architectes kitchen photos credits lydie nevsadba 6x1704
        lhoas architects architectes kitchen photos credits lydie nevsadba 9x1704
        xlhoas architects architectes kitchen photos credits lydie nevsadba 1x1704.jpg.pagespeed.ic.BqUFsXVqdJ
        xlhoas architects architectes kitchen photos credits lydie nevsadba 11x758.jpg.pagespeed.ic.jDkeGHgdIJ
        xlhoas architects architectes kitchen photos credits lydie nevsadba 12x1704.jpg.pagespeed.ic.2GGvbwdMSB
        xlhoas architects architectes kitchen photos credits lydie nevsadba 14x758.jpg.pagespeed.ic.QPrL1DOS7W
        xlhoas architects architectes kitchen photos credits lydie nevsadba 15x742.jpg.pagespeed.ic. K1CasXnWo
        xlhoas architects architectes kitchen photos credits lydie nevsadba 3x1704.jpg.pagespeed.ic.AxV myP1oJ
        xlhoas architects architectes kitchen photos credits lydie nevsadba 4x1664.jpg.pagespeed.ic.HSix8cUEu5
          • lhoas architects architectes kitchen photos credits lydie nevsadba 1x1704
          • lhoas architects architectes kitchen photos credits lydie nevsadba 11x758
          • lhoas architects architectes kitchen photos credits lydie nevsadba 12x1704
          • lhoas architects architectes kitchen photos credits lydie nevsadba 14x758
          • lhoas architects architectes kitchen photos credits lydie nevsadba 15x742
          • lhoas architects architectes kitchen photos credits lydie nevsadba 3x1704
          • lhoas architects architectes kitchen photos credits lydie nevsadba 4x1664
          • lhoas architects architectes kitchen photos credits lydie nevsadba 5x1704
          • lhoas architects architectes kitchen photos credits lydie nevsadba 6x1704
          • lhoas architects architectes kitchen photos credits lydie nevsadba 9x1704
          • xlhoas architects architectes kitchen photos credits lydie nevsadba 1x1704.jpg.pagespeed.ic.BqUFsXVqdJ
          • xlhoas architects architectes kitchen photos credits lydie nevsadba 11x758.jpg.pagespeed.ic.jDkeGHgdIJ
          • xlhoas architects architectes kitchen photos credits lydie nevsadba 12x1704.jpg.pagespeed.ic.2GGvbwdMSB
          • xlhoas architects architectes kitchen photos credits lydie nevsadba 14x758.jpg.pagespeed.ic.QPrL1DOS7W
          • xlhoas architects architectes kitchen photos credits lydie nevsadba 15x742.jpg.pagespeed.ic. K1CasXnWo
          • xlhoas architects architectes kitchen photos credits lydie nevsadba 3x1704.jpg.pagespeed.ic.AxV myP1oJ
          • xlhoas architects architectes kitchen photos credits lydie nevsadba 4x1664.jpg.pagespeed.ic.HSix8cUEu5

        Thierry & Lydie

        Duplex apartment for Thierry & Lydie.

        An old industrial building transformed in this luminous and quite abstract apartment.

        Surface : 250 m²

        Pictures by Maxime Delvaux
        ©11h59

          : Réalisé

          : 250 m2

          : 2010

          : Maxime Delvaux

          • cover 10x758
            cover 10x758
          • lhoas architectes architect housing thierry lydie shelves 10x365
            lhoas architectes architect housing thierry lydie shelves 10x365
          • lhoas architectes architect housing thierry lydie shelves 11x365
            lhoas architectes architect housing thierry lydie shelves 11x365
          • lhoas architectes architect housing thierry lydie shelves 12x822
            lhoas architectes architect housing thierry lydie shelves 12x822
          • lhoas architectes architect housing thierry lydie shelves 15x822
            lhoas architectes architect housing thierry lydie shelves 15x822
          • lhoas architectes architect housing thierry lydie shelves 16x822
            lhoas architectes architect housing thierry lydie shelves 16x822
          • lhoas architectes architect housing thierry lydie shelves 17x822
            lhoas architectes architect housing thierry lydie shelves 17x822
          • lhoas architectes architect housing thierry lydie shelves 18x822
            lhoas architectes architect housing thierry lydie shelves 18x822
          • lhoas architectes architect housing thierry lydie shelves 19x822
            lhoas architectes architect housing thierry lydie shelves 19x822
          • lhoas architectes architect housing thierry lydie shelves 20x822
            lhoas architectes architect housing thierry lydie shelves 20x822
          • lhoas architectes architect housing thierry lydie shelves 21x365
            lhoas architectes architect housing thierry lydie shelves 21x365
          • lhoas architectes architect housing thierry lydie shelves 22x822
            lhoas architectes architect housing thierry lydie shelves 22x822
          • lhoas architectes architect housing thierry lydie shelves 23x822
            lhoas architectes architect housing thierry lydie shelves 23x822
          • lhoas architectes architect housing thierry lydie shelves 24x822
            lhoas architectes architect housing thierry lydie shelves 24x822
          • lhoas architectes architect housing thierry lydie shelves 25x365
            lhoas architectes architect housing thierry lydie shelves 25x365
          • lhoas architectes architect housing thierry lydie shelves 26x391
            lhoas architectes architect housing thierry lydie shelves 26x391
          • lhoas architectes architect housing thierry lydie shelves 9x822
            lhoas architectes architect housing thierry lydie shelves 9x822
          • xcover 10x758.jpg.pagespeed.ic.ZfDoRbbCL9
            xcover 10x758.jpg.pagespeed.ic.ZfDoRbbCL9
          • xlhoas architectes architect housing thierry lydie shelves 10x365.jpg.pagespeed.ic.6vuG6HMA5T
            xlhoas architectes architect housing thierry lydie shelves 10x365.jpg.pagespeed.ic.6vuG6HMA5T
          • xlhoas architectes architect housing thierry lydie shelves 11x365.jpg.pagespeed.ic.W0JP8lBIED
            xlhoas architectes architect housing thierry lydie shelves 11x365.jpg.pagespeed.ic.W0JP8lBIED
          • xlhoas architectes architect housing thierry lydie shelves 12x822.jpg.pagespeed.ic.sYJKkroscY
            xlhoas architectes architect housing thierry lydie shelves 12x822.jpg.pagespeed.ic.sYJKkroscY
          • xlhoas architectes architect housing thierry lydie shelves 15x822.jpg.pagespeed.ic.71LQgd4Zo
            xlhoas architectes architect housing thierry lydie shelves 15x822.jpg.pagespeed.ic.71LQgd4Zo
          • xlhoas architectes architect housing thierry lydie shelves 2x365.jpg.pagespeed.ic.lum8fgOnqc
            xlhoas architectes architect housing thierry lydie shelves 2x365.jpg.pagespeed.ic.lum8fgOnqc
          • xlhoas architectes architect housing thierry lydie shelves 3x365.jpg.pagespeed.ic. rp0maW6mA
            xlhoas architectes architect housing thierry lydie shelves 3x365.jpg.pagespeed.ic. rp0maW6mA
          • xlhoas architectes architect housing thierry lydie shelves 4x365.jpg.pagespeed.ic.NJnX dlR6p
            xlhoas architectes architect housing thierry lydie shelves 4x365.jpg.pagespeed.ic.NJnX dlR6p
          • xlhoas architectes architect housing thierry lydie shelves 7x365.jpg.pagespeed.ic.CkL6g0vKkq
            xlhoas architectes architect housing thierry lydie shelves 7x365.jpg.pagespeed.ic.CkL6g0vKkq
          • xlhoas architectes architect housing thierry lydie shelves 8x365.jpg.pagespeed.ic.NXxQlnFDUd
            xlhoas architectes architect housing thierry lydie shelves 8x365.jpg.pagespeed.ic.NXxQlnFDUd
          • xlhoas architectes architect housing thierry lydie shelves 9x822.jpg.pagespeed.ic.SOxHHBlPic
            xlhoas architectes architect housing thierry lydie shelves 9x822.jpg.pagespeed.ic.SOxHHBlPic
          cover 10x758
          lhoas architectes architect housing thierry lydie shelves 10x365
          lhoas architectes architect housing thierry lydie shelves 11x365
          lhoas architectes architect housing thierry lydie shelves 12x822
          lhoas architectes architect housing thierry lydie shelves 15x822
          lhoas architectes architect housing thierry lydie shelves 16x822
          lhoas architectes architect housing thierry lydie shelves 17x822
          lhoas architectes architect housing thierry lydie shelves 18x822
          lhoas architectes architect housing thierry lydie shelves 19x822
          lhoas architectes architect housing thierry lydie shelves 20x822
          lhoas architectes architect housing thierry lydie shelves 21x365
          lhoas architectes architect housing thierry lydie shelves 22x822
          lhoas architectes architect housing thierry lydie shelves 23x822
          lhoas architectes architect housing thierry lydie shelves 24x822
          lhoas architectes architect housing thierry lydie shelves 25x365
          lhoas architectes architect housing thierry lydie shelves 26x391
          lhoas architectes architect housing thierry lydie shelves 9x822
          xcover 10x758.jpg.pagespeed.ic.ZfDoRbbCL9
          xlhoas architectes architect housing thierry lydie shelves 10x365.jpg.pagespeed.ic.6vuG6HMA5T
          xlhoas architectes architect housing thierry lydie shelves 11x365.jpg.pagespeed.ic.W0JP8lBIED
          xlhoas architectes architect housing thierry lydie shelves 12x822.jpg.pagespeed.ic.sYJKkroscY
          xlhoas architectes architect housing thierry lydie shelves 15x822.jpg.pagespeed.ic.71LQgd4Zo
          xlhoas architectes architect housing thierry lydie shelves 2x365.jpg.pagespeed.ic.lum8fgOnqc
          xlhoas architectes architect housing thierry lydie shelves 3x365.jpg.pagespeed.ic. rp0maW6mA
          xlhoas architectes architect housing thierry lydie shelves 4x365.jpg.pagespeed.ic.NJnX dlR6p
          xlhoas architectes architect housing thierry lydie shelves 7x365.jpg.pagespeed.ic.CkL6g0vKkq
          xlhoas architectes architect housing thierry lydie shelves 8x365.jpg.pagespeed.ic.NXxQlnFDUd
          xlhoas architectes architect housing thierry lydie shelves 9x822.jpg.pagespeed.ic.SOxHHBlPic
            • cover 10x758
            • lhoas architectes architect housing thierry lydie shelves 10x365
            • lhoas architectes architect housing thierry lydie shelves 11x365
            • lhoas architectes architect housing thierry lydie shelves 12x822
            • lhoas architectes architect housing thierry lydie shelves 15x822
            • lhoas architectes architect housing thierry lydie shelves 16x822
            • lhoas architectes architect housing thierry lydie shelves 17x822
            • lhoas architectes architect housing thierry lydie shelves 18x822
            • lhoas architectes architect housing thierry lydie shelves 19x822
            • lhoas architectes architect housing thierry lydie shelves 20x822
            • lhoas architectes architect housing thierry lydie shelves 21x365
            • lhoas architectes architect housing thierry lydie shelves 22x822
            • lhoas architectes architect housing thierry lydie shelves 23x822
            • lhoas architectes architect housing thierry lydie shelves 24x822
            • lhoas architectes architect housing thierry lydie shelves 25x365
            • lhoas architectes architect housing thierry lydie shelves 26x391
            • lhoas architectes architect housing thierry lydie shelves 9x822
            • xcover 10x758.jpg.pagespeed.ic.ZfDoRbbCL9
            • xlhoas architectes architect housing thierry lydie shelves 10x365.jpg.pagespeed.ic.6vuG6HMA5T
            • xlhoas architectes architect housing thierry lydie shelves 11x365.jpg.pagespeed.ic.W0JP8lBIED
            • xlhoas architectes architect housing thierry lydie shelves 12x822.jpg.pagespeed.ic.sYJKkroscY
            • xlhoas architectes architect housing thierry lydie shelves 15x822.jpg.pagespeed.ic.71LQgd4Zo
            • xlhoas architectes architect housing thierry lydie shelves 2x365.jpg.pagespeed.ic.lum8fgOnqc
            • xlhoas architectes architect housing thierry lydie shelves 3x365.jpg.pagespeed.ic. rp0maW6mA
            • xlhoas architectes architect housing thierry lydie shelves 4x365.jpg.pagespeed.ic.NJnX dlR6p
            • xlhoas architectes architect housing thierry lydie shelves 7x365.jpg.pagespeed.ic.CkL6g0vKkq
            • xlhoas architectes architect housing thierry lydie shelves 8x365.jpg.pagespeed.ic.NXxQlnFDUd
            • xlhoas architectes architect housing thierry lydie shelves 9x822.jpg.pagespeed.ic.SOxHHBlPic

          Villa Claude Laurens

          En 2007, nous avons transformé un bureau bruxellois en appartement selon les plans de l’architecte moderniste Claude Laurens.
          Avant sa mort, Claude Laurens avait donné à sa femme le croquis de la transformation qu’il imaginait pour le bâtiment en question dans le cas où elle souhaiterait revenir vivre un jour à Bruxelles.
          Chose qu’elle fit en confiant la rénovation aux frères Lhoas.

          Des années plus tard, nous travaillons sur un bâtiment du même auteur : la rénovation complète d’une villa à Saint-Tropez.
          Une attention particulière sur le patrimoine moderniste a guidé le projet avec une étude préalable importante sur la situation existante, les matériaux d’origine et les éléments architecturaux.

            : Saint-Tropez, France

            : 2007

            : Maxime Delvaux

            • lhoas architectes anse foraine 01 1600pxx909
              lhoas architectes anse foraine 01 1600pxx909
            • lhoas architectes anse foraine 07 1600pxx685
              lhoas architectes anse foraine 07 1600pxx685
            • lhoas architectes anse foraine 13 1600pxx438
              lhoas architectes anse foraine 13 1600pxx438
            • lhoas architectes anse foraine 14 1600pxx686
              lhoas architectes anse foraine 14 1600pxx686
            • lhoas architectes anse foraine 16 1600pxx686
              lhoas architectes anse foraine 16 1600pxx686
            • lhoas lhoas architectes laurens 01 1600pxx443
              lhoas lhoas architectes laurens 01 1600pxx443
            • lhoas lhoas architectes laurens 02 1600pxx443
              lhoas lhoas architectes laurens 02 1600pxx443
            • lhoas lhoas architectes laurens 03 1600pxx443
              lhoas lhoas architectes laurens 03 1600pxx443
            • lhoas lhoas architectes laurens 04 1600pxx443
              lhoas lhoas architectes laurens 04 1600pxx443
            • lhoas lhoas architectes laurens 05 1600pxx443
              lhoas lhoas architectes laurens 05 1600pxx443
            • lhoas lhoas architectes laurens 07 1600pxx443
              lhoas lhoas architectes laurens 07 1600pxx443
            • lhoas lhoas architectes laurens 08 1600pxx443
              lhoas lhoas architectes laurens 08 1600pxx443
            • lhoas lhoas architectes laurens 09 1600pxx443
              lhoas lhoas architectes laurens 09 1600pxx443
            • lhoas lhoas architectes laurens 10 1600pxx443
              lhoas lhoas architectes laurens 10 1600pxx443
            • lhoas lhoas architectes laurens 19 1600pxx757
              lhoas lhoas architectes laurens 19 1600pxx757
            • lhoas lhoas architectes laurens 32 1600pxx757
              lhoas lhoas architectes laurens 32 1600pxx757
            • lhoas lhoas architectes laurens 37 1600pxx757
              lhoas lhoas architectes laurens 37 1600pxx757
            • lhoas lhoas architectes laurens 41 1600pxx757
              lhoas lhoas architectes laurens 41 1600pxx757
            • lhoas lhoas architectes laurens 50 1600pxx757
              lhoas lhoas architectes laurens 50 1600pxx757
            • lhoas lhoas architectes laurens plan01 1600pxx449
              lhoas lhoas architectes laurens plan01 1600pxx449
            • lhoas lhoas architectes laurens plan02 1600pxx452
              lhoas lhoas architectes laurens plan02 1600pxx452
            • lhoas lhoas architectes laurens plan03 1600pxx241
              lhoas lhoas architectes laurens plan03 1600pxx241
            • xlhoas architectes anse foraine 00 1600pxx438.jpg.pagespeed.ic.HTufyD5jXa
              xlhoas architectes anse foraine 00 1600pxx438.jpg.pagespeed.ic.HTufyD5jXa
            • xlhoas architectes anse foraine 01 1600pxx909.jpg.pagespeed.ic.PDWgNtpcb2
              xlhoas architectes anse foraine 01 1600pxx909.jpg.pagespeed.ic.PDWgNtpcb2
            • xlhoas architectes anse foraine 01 1600pxx438.jpg.pagespeed.ic.yO0od4jciH
              xlhoas architectes anse foraine 01 1600pxx438.jpg.pagespeed.ic.yO0od4jciH
            • xlhoas architectes anse foraine 02 1600pxx686.jpg.pagespeed.ic.ex1khRZ1oX
              xlhoas architectes anse foraine 02 1600pxx686.jpg.pagespeed.ic.ex1khRZ1oX
            • xlhoas architectes anse foraine 03 1600pxx438.jpg.pagespeed.ic.Bk5gbciHAo
              xlhoas architectes anse foraine 03 1600pxx438.jpg.pagespeed.ic.Bk5gbciHAo
            • xlhoas architectes anse foraine 04 1600pxx438.jpg.pagespeed.ic.bws PGTN9y
              xlhoas architectes anse foraine 04 1600pxx438.jpg.pagespeed.ic.bws PGTN9y
            • xlhoas architectes anse foraine 05 1600pxx438.jpg.pagespeed.ic.aOWi8hkJyU
              xlhoas architectes anse foraine 05 1600pxx438.jpg.pagespeed.ic.aOWi8hkJyU
            • xlhoas architectes anse foraine 06 1600pxx438.jpg.pagespeed.ic.rDKlEdiA13
              xlhoas architectes anse foraine 06 1600pxx438.jpg.pagespeed.ic.rDKlEdiA13
            • xlhoas architectes anse foraine 07 1600pxx685.jpg.pagespeed.ic.x9bXD25ZYp
              xlhoas architectes anse foraine 07 1600pxx685.jpg.pagespeed.ic.x9bXD25ZYp
            • xlhoas architectes anse foraine 10 1600pxx438.jpg.pagespeed.ic.sIQzpjZXAs
              xlhoas architectes anse foraine 10 1600pxx438.jpg.pagespeed.ic.sIQzpjZXAs
            • xlhoas architectes anse foraine 12 1600pxx438.jpg.pagespeed.ic. B YnbIRAn
              xlhoas architectes anse foraine 12 1600pxx438.jpg.pagespeed.ic. B YnbIRAn
            • xlhoas architectes anse foraine 13 1600pxx438.jpg.pagespeed.ic.y7xoF7hK07
              xlhoas architectes anse foraine 13 1600pxx438.jpg.pagespeed.ic.y7xoF7hK07
            • xlhoas architectes anse foraine 14 1600pxx686.jpg.pagespeed.ic.W hG RiT4b
              xlhoas architectes anse foraine 14 1600pxx686.jpg.pagespeed.ic.W hG RiT4b
            • xlhoas architectes anse foraine 16 1600pxx686.jpg.pagespeed.ic.F0PRVfwXCT
              xlhoas architectes anse foraine 16 1600pxx686.jpg.pagespeed.ic.F0PRVfwXCT
            lhoas architectes anse foraine 01 1600pxx909
            lhoas architectes anse foraine 07 1600pxx685
            lhoas architectes anse foraine 13 1600pxx438
            lhoas architectes anse foraine 14 1600pxx686
            lhoas architectes anse foraine 16 1600pxx686
            lhoas lhoas architectes laurens 01 1600pxx443
            lhoas lhoas architectes laurens 02 1600pxx443
            lhoas lhoas architectes laurens 03 1600pxx443
            lhoas lhoas architectes laurens 04 1600pxx443
            lhoas lhoas architectes laurens 05 1600pxx443
            lhoas lhoas architectes laurens 07 1600pxx443
            lhoas lhoas architectes laurens 08 1600pxx443
            lhoas lhoas architectes laurens 09 1600pxx443
            lhoas lhoas architectes laurens 10 1600pxx443
            lhoas lhoas architectes laurens 19 1600pxx757
            lhoas lhoas architectes laurens 32 1600pxx757
            lhoas lhoas architectes laurens 37 1600pxx757
            lhoas lhoas architectes laurens 41 1600pxx757
            lhoas lhoas architectes laurens 50 1600pxx757
            lhoas lhoas architectes laurens plan01 1600pxx449
            lhoas lhoas architectes laurens plan02 1600pxx452
            lhoas lhoas architectes laurens plan03 1600pxx241
            xlhoas architectes anse foraine 00 1600pxx438.jpg.pagespeed.ic.HTufyD5jXa
            xlhoas architectes anse foraine 01 1600pxx909.jpg.pagespeed.ic.PDWgNtpcb2
            xlhoas architectes anse foraine 01 1600pxx438.jpg.pagespeed.ic.yO0od4jciH
            xlhoas architectes anse foraine 02 1600pxx686.jpg.pagespeed.ic.ex1khRZ1oX
            xlhoas architectes anse foraine 03 1600pxx438.jpg.pagespeed.ic.Bk5gbciHAo
            xlhoas architectes anse foraine 04 1600pxx438.jpg.pagespeed.ic.bws PGTN9y
            xlhoas architectes anse foraine 05 1600pxx438.jpg.pagespeed.ic.aOWi8hkJyU
            xlhoas architectes anse foraine 06 1600pxx438.jpg.pagespeed.ic.rDKlEdiA13
            xlhoas architectes anse foraine 07 1600pxx685.jpg.pagespeed.ic.x9bXD25ZYp
            xlhoas architectes anse foraine 10 1600pxx438.jpg.pagespeed.ic.sIQzpjZXAs
            xlhoas architectes anse foraine 12 1600pxx438.jpg.pagespeed.ic. B YnbIRAn
            xlhoas architectes anse foraine 13 1600pxx438.jpg.pagespeed.ic.y7xoF7hK07
            xlhoas architectes anse foraine 14 1600pxx686.jpg.pagespeed.ic.W hG RiT4b
            xlhoas architectes anse foraine 16 1600pxx686.jpg.pagespeed.ic.F0PRVfwXCT
              • lhoas architectes anse foraine 01 1600pxx909
              • lhoas architectes anse foraine 07 1600pxx685
              • lhoas architectes anse foraine 13 1600pxx438
              • lhoas architectes anse foraine 14 1600pxx686
              • lhoas architectes anse foraine 16 1600pxx686
              • lhoas lhoas architectes laurens 01 1600pxx443
              • lhoas lhoas architectes laurens 02 1600pxx443
              • lhoas lhoas architectes laurens 03 1600pxx443
              • lhoas lhoas architectes laurens 04 1600pxx443
              • lhoas lhoas architectes laurens 05 1600pxx443
              • lhoas lhoas architectes laurens 07 1600pxx443
              • lhoas lhoas architectes laurens 08 1600pxx443
              • lhoas lhoas architectes laurens 09 1600pxx443
              • lhoas lhoas architectes laurens 10 1600pxx443
              • lhoas lhoas architectes laurens 19 1600pxx757
              • lhoas lhoas architectes laurens 32 1600pxx757
              • lhoas lhoas architectes laurens 37 1600pxx757
              • lhoas lhoas architectes laurens 41 1600pxx757
              • lhoas lhoas architectes laurens 50 1600pxx757
              • lhoas lhoas architectes laurens plan01 1600pxx449
              • lhoas lhoas architectes laurens plan02 1600pxx452
              • lhoas lhoas architectes laurens plan03 1600pxx241
              • xlhoas architectes anse foraine 00 1600pxx438.jpg.pagespeed.ic.HTufyD5jXa
              • xlhoas architectes anse foraine 01 1600pxx909.jpg.pagespeed.ic.PDWgNtpcb2
              • xlhoas architectes anse foraine 01 1600pxx438.jpg.pagespeed.ic.yO0od4jciH
              • xlhoas architectes anse foraine 02 1600pxx686.jpg.pagespeed.ic.ex1khRZ1oX
              • xlhoas architectes anse foraine 03 1600pxx438.jpg.pagespeed.ic.Bk5gbciHAo
              • xlhoas architectes anse foraine 04 1600pxx438.jpg.pagespeed.ic.bws PGTN9y
              • xlhoas architectes anse foraine 05 1600pxx438.jpg.pagespeed.ic.aOWi8hkJyU
              • xlhoas architectes anse foraine 06 1600pxx438.jpg.pagespeed.ic.rDKlEdiA13
              • xlhoas architectes anse foraine 07 1600pxx685.jpg.pagespeed.ic.x9bXD25ZYp
              • xlhoas architectes anse foraine 10 1600pxx438.jpg.pagespeed.ic.sIQzpjZXAs
              • xlhoas architectes anse foraine 12 1600pxx438.jpg.pagespeed.ic. B YnbIRAn
              • xlhoas architectes anse foraine 13 1600pxx438.jpg.pagespeed.ic.y7xoF7hK07
              • xlhoas architectes anse foraine 14 1600pxx686.jpg.pagespeed.ic.W hG RiT4b
              • xlhoas architectes anse foraine 16 1600pxx686.jpg.pagespeed.ic.F0PRVfwXCT

            Plus d'articles...

            1. Maison Vrankenne
            2. Chapeau 62
            3. Elena

            Page 5 sur 6

            • 1
            • 2
            • 3
            • 4
            • 5
            • 6

            Lhoas & Lhoas architects

            info@lhoas-lhoas.com
            62/11, Chaussée de Forest 1060, Bruxelles, Belgique
            +32 (0)2 372.08.75
            Facebook
            Instagram
            © 2006 - 2025 Designed and developped by La Missive
            • Architecture
              • Habitat
              • Usage Mixte
              • Bureau
              • Commercial
              • Culture
              • Scénographie
              • Chronologie
            • Design
              • Sur mesure
              • Meuble
              • Chronologie
            • Publications
              • Expositions
              • Presse
              • Conférences
              • Chronologie
            • A propos de nous