Lhoas & Lhoas
  • Architecture
    • Habitat
    • Usage Mixte
    • Bureau
    • Commercial
    • Culture
    • Scénographie
    • Chronologie
  • Design
    • Sur mesure
    • Meuble
    • Chronologie
  • Publications
    • Expositions
    • Presse
    • Conférences
    • Chronologie
  • A propos de nous
Lhoas & Lhoas

Sélectionnez votre langue

  • FR
  • EN
  1. Vous êtes ici :  
  2. Accueil

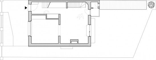
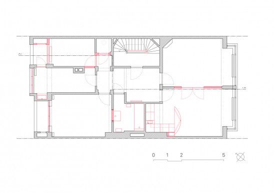
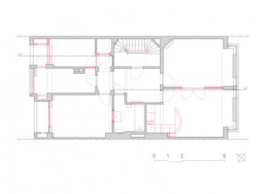
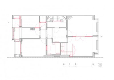
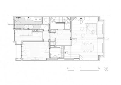
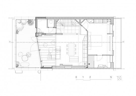
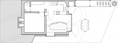
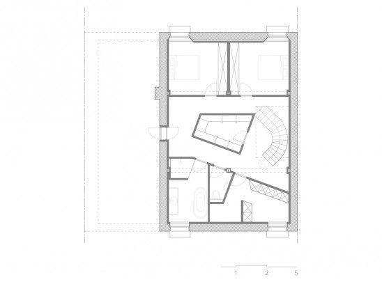
Rue des Vétérinaires

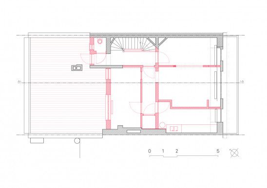
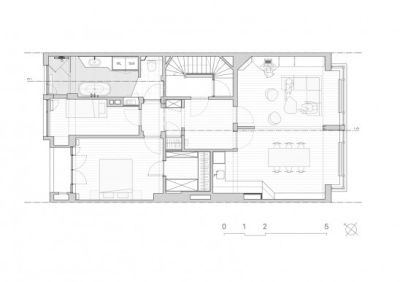
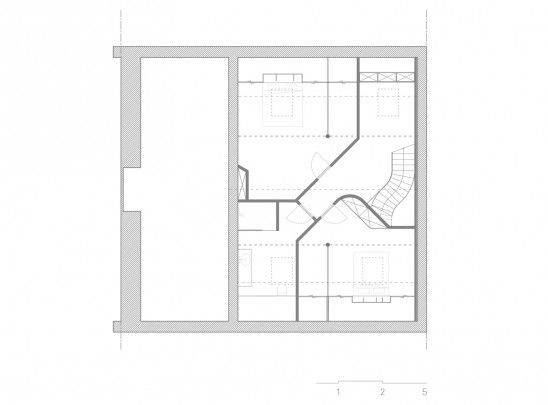
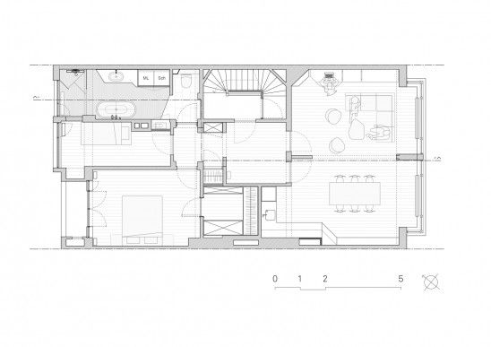
Tout d’abord, un site, celui de l’ancienne école des vétérinaires à Anderlecht. Ilôt à l’architecture néo-renaissance flamande achevée en 1910 pour accueillir les différentes antennes nécessaire au fonctionnement de l’école (administrations, salles d’enseignement, bâtiment de bactériologie, d’anatomie, de chirurgie des animaux, laboratoires etc). L’ensemble a été classé en 1990 et l’année suivante, l’enseignement rattaché à la faculté de Liège quitte définitivement les lieux. Laissant les bâtiments à l’abandon pendant plusieurs années, c’est en 2005 seulement que la réaffectation commence. Les différents bâtiments sont principalement transformés en logements et l’aménagement de l’un d’entre eux est confié à Lhoas et Lhoas.

Livré casco et au vue des contraintes urbanistiques, l’intervention est essentiellement intérieure. Le rez-de-chaussée est resté simple pour laisser les larges plateaux libres d’usage. Seul un imposant escalier d’acier est suspendu au fond de la pièce. Vocabulaire acéré et angles vifs à ce niveau, il se déroule, se glisse dans les autres étages développant courbes et sinuosités.
Les autres des étages adoptent le même langage, au sous-sol, les espaces sont coupés, taillés autour d’un ilôt aveugle et offrant le reste de lumière aux espaces qui le nécessitent le plus.
Le premier étage quand à lui suit les virages de la circulation et joue avec les structures d’acier existantes.

    : 317 m2

    : Bruxelles Anderlecht

    : 2017

    • lhoas architectes catherine 0bisx775
      lhoas architectes catherine 0bisx775
    • lhoas architectes catherine 2x1600
      lhoas architectes catherine 2x1600
    • lhoas architectes catherine 2x844
      lhoas architectes catherine 2x844
    • lhoas architectes catherine 3x822
      lhoas architectes catherine 3x822
    • lhoas architectes catherine 7x822
      lhoas architectes catherine 7x822
    • lhoas architectes catherine 8x822
      lhoas architectes catherine 8x822
    • lhoas lhoas architectes catherine axo escalierx405
      lhoas lhoas architectes catherine axo escalierx405
    • lhoas lhoas architectes catherine coupex405
      lhoas lhoas architectes catherine coupex405
    • lhoas lhoas architectes plan 01x405
      lhoas lhoas architectes plan 01x405
    • lhoas lhoas architectes plan rezx405
      lhoas lhoas architectes plan rezx405
    • lhoas lhoas architectes plan ssx405
      lhoas lhoas architectes plan ssx405
    • xlhoas architectes catherine 0bisx775.jpg.pagespeed.ic.ap1VzHG9m2
      xlhoas architectes catherine 0bisx775.jpg.pagespeed.ic.ap1VzHG9m2
    • xlhoas architectes catherine 2x1600.jpg.pagespeed.ic.R0qsUXYY1B
      xlhoas architectes catherine 2x1600.jpg.pagespeed.ic.R0qsUXYY1B
    • xlhoas architectes catherine escalier atelierx685.jpg.pagespeed.ic.xLFOJw vbh
      xlhoas architectes catherine escalier atelierx685.jpg.pagespeed.ic.xLFOJw vbh
    • xlhoas lhoas architectes catherine axo escalierx405.jpg.pagespeed.ic.DEoXvMnH3o
      xlhoas lhoas architectes catherine axo escalierx405.jpg.pagespeed.ic.DEoXvMnH3o
    lhoas architectes catherine 0bisx775
    lhoas architectes catherine 2x1600
    lhoas architectes catherine 2x844
    lhoas architectes catherine 3x822
    lhoas architectes catherine 7x822
    lhoas architectes catherine 8x822
    lhoas lhoas architectes catherine axo escalierx405
    lhoas lhoas architectes catherine coupex405
    lhoas lhoas architectes plan 01x405
    lhoas lhoas architectes plan rezx405
    lhoas lhoas architectes plan ssx405
    xlhoas architectes catherine 0bisx775.jpg.pagespeed.ic.ap1VzHG9m2
    xlhoas architectes catherine 2x1600.jpg.pagespeed.ic.R0qsUXYY1B
    xlhoas architectes catherine escalier atelierx685.jpg.pagespeed.ic.xLFOJw vbh
    xlhoas lhoas architectes catherine axo escalierx405.jpg.pagespeed.ic.DEoXvMnH3o
      • lhoas architectes catherine 0bisx775
      • lhoas architectes catherine 2x1600
      • lhoas architectes catherine 2x844
      • lhoas architectes catherine 3x822
      • lhoas architectes catherine 7x822
      • lhoas architectes catherine 8x822
      • lhoas lhoas architectes catherine axo escalierx405
      • lhoas lhoas architectes catherine coupex405
      • lhoas lhoas architectes plan 01x405
      • lhoas lhoas architectes plan rezx405
      • lhoas lhoas architectes plan ssx405
      • xlhoas architectes catherine 0bisx775.jpg.pagespeed.ic.ap1VzHG9m2
      • xlhoas architectes catherine 2x1600.jpg.pagespeed.ic.R0qsUXYY1B
      • xlhoas architectes catherine escalier atelierx685.jpg.pagespeed.ic.xLFOJw vbh
      • xlhoas lhoas architectes catherine axo escalierx405.jpg.pagespeed.ic.DEoXvMnH3o

    Rue Vergote

    Rénovation de deux appartements et extension du volume existant.

    Surface : Appartement +2: 98m² / Appartement +3: 77m² / Terrasse +3: 21m² / Total: 196m²

      : Réalisé

      : 196 m2

      : Bruxelles

      : 2017

      • lhoas architectes architects vergote housing 1x411
        lhoas architectes architects vergote housing  1x411
      • lhoas architectes architects vergote housing 10x731
        lhoas architectes architects vergote housing  10x731
      • lhoas architectes architects vergote housing 12x1514
        lhoas architectes architects vergote housing  12x1514
      • lhoas architectes architects vergote housing 12x731
        lhoas architectes architects vergote housing  12x731
      • lhoas architectes architects vergote housing 14x401
        lhoas architectes architects vergote housing  14x401
      • lhoas architectes architects vergote housing 15x731
        lhoas architectes architects vergote housing  15x731
      • lhoas architectes architects vergote housing 16x731
        lhoas architectes architects vergote housing  16x731
      • lhoas architectes architects vergote housing 17x731
        lhoas architectes architects vergote housing  17x731
      • lhoas architectes architects vergote housing 18x736
        lhoas architectes architects vergote housing  18x736
      • lhoas architectes architects vergote housing 19x731
        lhoas architectes architects vergote housing  19x731
      • lhoas architectes architects vergote housing 20x387
        lhoas architectes architects vergote housing  20x387
      • lhoas architectes architects vergote housing 21x387
        lhoas architectes architects vergote housing  21x387
      • lhoas architectes architects vergote housing 22x387
        lhoas architectes architects vergote housing  22x387
      • lhoas architectes architects vergote housing 23x387
        lhoas architectes architects vergote housing  23x387
      • lhoas architectes architects vergote housing 24x387
        lhoas architectes architects vergote housing  24x387
      • lhoas architectes architects vergote housing 3x423
        lhoas architectes architects vergote housing  3x423
      • lhoas architectes architects vergote housing 4x731
        lhoas architectes architects vergote housing  4x731
      • lhoas architectes architects vergote housing 6x731
        lhoas architectes architects vergote housing  6x731
      • lhoas architectes architects vergote housing 7x731
        lhoas architectes architects vergote housing  7x731
      • lhoas architectes architects vergote housing 8x411
        lhoas architectes architects vergote housing  8x411
      • lhoas architectes architects vergote housing 9x757
        lhoas architectes architects vergote housing  9x757
      • xlhoas architectes architects vergote housing 12x1514.jpg.pagespeed.ic.PlTKJwX9ru
        xlhoas architectes architects vergote housing  12x1514.jpg.pagespeed.ic.PlTKJwX9ru
      • xlhoas architectes architects vergote housing 12x731.jpg.pagespeed.ic.r5F6JkQt4h
        xlhoas architectes architects vergote housing  12x731.jpg.pagespeed.ic.r5F6JkQt4h
      • xlhoas architectes architects vergote housing 13x806.jpg.pagespeed.ic.cD NXIYTDZ
        xlhoas architectes architects vergote housing  13x806.jpg.pagespeed.ic.cD NXIYTDZ
      • xlhoas architectes architects vergote housing 21x387.jpg.pagespeed.ic.gJkSUiyxkX
        xlhoas architectes architects vergote housing  21x387.jpg.pagespeed.ic.gJkSUiyxkX
      • xlhoas architectes architects vergote housing 22x387.jpg.pagespeed.ic.Q0K2pnfLjx
        xlhoas architectes architects vergote housing  22x387.jpg.pagespeed.ic.Q0K2pnfLjx
      lhoas architectes architects vergote housing  1x411
      lhoas architectes architects vergote housing  10x731
      lhoas architectes architects vergote housing  12x1514
      lhoas architectes architects vergote housing  12x731
      lhoas architectes architects vergote housing  14x401
      lhoas architectes architects vergote housing  15x731
      lhoas architectes architects vergote housing  16x731
      lhoas architectes architects vergote housing  17x731
      lhoas architectes architects vergote housing  18x736
      lhoas architectes architects vergote housing  19x731
      lhoas architectes architects vergote housing  20x387
      lhoas architectes architects vergote housing  21x387
      lhoas architectes architects vergote housing  22x387
      lhoas architectes architects vergote housing  23x387
      lhoas architectes architects vergote housing  24x387
      lhoas architectes architects vergote housing  3x423
      lhoas architectes architects vergote housing  4x731
      lhoas architectes architects vergote housing  6x731
      lhoas architectes architects vergote housing  7x731
      lhoas architectes architects vergote housing  8x411
      lhoas architectes architects vergote housing  9x757
      xlhoas architectes architects vergote housing  12x1514.jpg.pagespeed.ic.PlTKJwX9ru
      xlhoas architectes architects vergote housing  12x731.jpg.pagespeed.ic.r5F6JkQt4h
      xlhoas architectes architects vergote housing  13x806.jpg.pagespeed.ic.cD NXIYTDZ
      xlhoas architectes architects vergote housing  21x387.jpg.pagespeed.ic.gJkSUiyxkX
      xlhoas architectes architects vergote housing  22x387.jpg.pagespeed.ic.Q0K2pnfLjx
        • lhoas architectes architects vergote housing  1x411
        • lhoas architectes architects vergote housing  10x731
        • lhoas architectes architects vergote housing  12x1514
        • lhoas architectes architects vergote housing  12x731
        • lhoas architectes architects vergote housing  14x401
        • lhoas architectes architects vergote housing  15x731
        • lhoas architectes architects vergote housing  16x731
        • lhoas architectes architects vergote housing  17x731
        • lhoas architectes architects vergote housing  18x736
        • lhoas architectes architects vergote housing  19x731
        • lhoas architectes architects vergote housing  20x387
        • lhoas architectes architects vergote housing  21x387
        • lhoas architectes architects vergote housing  22x387
        • lhoas architectes architects vergote housing  23x387
        • lhoas architectes architects vergote housing  24x387
        • lhoas architectes architects vergote housing  3x423
        • lhoas architectes architects vergote housing  4x731
        • lhoas architectes architects vergote housing  6x731
        • lhoas architectes architects vergote housing  7x731
        • lhoas architectes architects vergote housing  8x411
        • lhoas architectes architects vergote housing  9x757
        • xlhoas architectes architects vergote housing  12x1514.jpg.pagespeed.ic.PlTKJwX9ru
        • xlhoas architectes architects vergote housing  12x731.jpg.pagespeed.ic.r5F6JkQt4h
        • xlhoas architectes architects vergote housing  13x806.jpg.pagespeed.ic.cD NXIYTDZ
        • xlhoas architectes architects vergote housing  21x387.jpg.pagespeed.ic.gJkSUiyxkX
        • xlhoas architectes architects vergote housing  22x387.jpg.pagespeed.ic.Q0K2pnfLjx

      Velissaratos

      Transformation d'une maison familiale

        : 2016

        • lhoas architectes architects veliseratos 01x221
          lhoas architectes architects veliseratos 01x221
        • lhoas architectes architects veliseratos 02x221
          lhoas architectes architects veliseratos 02x221
        • lhoas architectes architects veliseratos 03x852
          lhoas architectes architects veliseratos 03x852
        • lhoas architectes architects veliseratos 04x728
          lhoas architectes architects veliseratos 04x728
        • xlhoas architectes architects veliseratos 03x852.jpg.pagespeed.ic.HCcm5qJKa7
          xlhoas architectes architects veliseratos 03x852.jpg.pagespeed.ic.HCcm5qJKa7
        • xlhoas architectes architects veliseratos 03x411.jpg.pagespeed.ic.ozWP uhJwz
          xlhoas architectes architects veliseratos 03x411.jpg.pagespeed.ic.ozWP uhJwz
        lhoas architectes architects veliseratos 01x221
        lhoas architectes architects veliseratos 02x221
        lhoas architectes architects veliseratos 03x852
        lhoas architectes architects veliseratos 04x728
        xlhoas architectes architects veliseratos 03x852.jpg.pagespeed.ic.HCcm5qJKa7
        xlhoas architectes architects veliseratos 03x411.jpg.pagespeed.ic.ozWP uhJwz
          • lhoas architectes architects veliseratos 01x221
          • lhoas architectes architects veliseratos 02x221
          • lhoas architectes architects veliseratos 03x852
          • lhoas architectes architects veliseratos 04x728
          • xlhoas architectes architects veliseratos 03x852.jpg.pagespeed.ic.HCcm5qJKa7
          • xlhoas architectes architects veliseratos 03x411.jpg.pagespeed.ic.ozWP uhJwz

        Anne-Sophie & Lucas

          : 2015

          • lhoas architectes architects anne sophie lucas 1x1514
            lhoas architectes architects anne sophie lucas 1x1514
          • lhoas architectes architects anne sophie lucas 12x1514
            lhoas architectes architects anne sophie lucas 12x1514
          • lhoas architectes architects anne sophie lucas 2x1497
            lhoas architectes architects anne sophie lucas 2x1497
          • lhoas architectes architects anne sophie lucas 3x1515
            lhoas architectes architects anne sophie lucas 3x1515
          • lhoas architectes architects anne sophie lucas 6x1503
            lhoas architectes architects anne sophie lucas 6x1503
          • lhoas architectes architects anne sophie lucas 7x853
            lhoas architectes architects anne sophie lucas 7x853
          • lhoas architectes architects anne sophie lucas 8x852
            lhoas architectes architects anne sophie lucas 8x852
          • lhoas architectes architects anne sophie lucas 9x1512
            lhoas architectes architects anne sophie lucas 9x1512
          • xlhoas architectes architects anne sophie lucas 1x1514.jpg.pagespeed.ic.mS31whApfo
            xlhoas architectes architects anne sophie lucas 1x1514.jpg.pagespeed.ic.mS31whApfo
          • xlhoas architectes architects anne sophie lucas 10x1515.jpg.pagespeed.ic.ZC2Jm9CF8R
            xlhoas architectes architects anne sophie lucas 10x1515.jpg.pagespeed.ic.ZC2Jm9CF8R
          • xlhoas architectes architects anne sophie lucas 12x1514.jpg.pagespeed.ic.lK1GMoJIXB
            xlhoas architectes architects anne sophie lucas 12x1514.jpg.pagespeed.ic.lK1GMoJIXB
          • xlhoas architectes architects anne sophie lucas 13x1514
            xlhoas architectes architects anne sophie lucas 13x1514
          • xlhoas architectes architects anne sophie lucas 4x852.jpg.pagespeed.ic.pQgZeJ sVl
            xlhoas architectes architects anne sophie lucas 4x852.jpg.pagespeed.ic.pQgZeJ sVl
          • xlhoas architectes architects anne sophie lucas 5x852.jpg.pagespeed.ic.AiVJ16oa9t
            xlhoas architectes architects anne sophie lucas 5x852.jpg.pagespeed.ic.AiVJ16oa9t
          lhoas architectes architects anne sophie lucas 1x1514
          lhoas architectes architects anne sophie lucas 12x1514
          lhoas architectes architects anne sophie lucas 2x1497
          lhoas architectes architects anne sophie lucas 3x1515
          lhoas architectes architects anne sophie lucas 6x1503
          lhoas architectes architects anne sophie lucas 7x853
          lhoas architectes architects anne sophie lucas 8x852
          lhoas architectes architects anne sophie lucas 9x1512
          xlhoas architectes architects anne sophie lucas 1x1514.jpg.pagespeed.ic.mS31whApfo
          xlhoas architectes architects anne sophie lucas 10x1515.jpg.pagespeed.ic.ZC2Jm9CF8R
          xlhoas architectes architects anne sophie lucas 12x1514.jpg.pagespeed.ic.lK1GMoJIXB
          xlhoas architectes architects anne sophie lucas 13x1514
          xlhoas architectes architects anne sophie lucas 4x852.jpg.pagespeed.ic.pQgZeJ sVl
          xlhoas architectes architects anne sophie lucas 5x852.jpg.pagespeed.ic.AiVJ16oa9t
            • lhoas architectes architects anne sophie lucas 1x1514
            • lhoas architectes architects anne sophie lucas 12x1514
            • lhoas architectes architects anne sophie lucas 2x1497
            • lhoas architectes architects anne sophie lucas 3x1515
            • lhoas architectes architects anne sophie lucas 6x1503
            • lhoas architectes architects anne sophie lucas 7x853
            • lhoas architectes architects anne sophie lucas 8x852
            • lhoas architectes architects anne sophie lucas 9x1512
            • xlhoas architectes architects anne sophie lucas 1x1514.jpg.pagespeed.ic.mS31whApfo
            • xlhoas architectes architects anne sophie lucas 10x1515.jpg.pagespeed.ic.ZC2Jm9CF8R
            • xlhoas architectes architects anne sophie lucas 12x1514.jpg.pagespeed.ic.lK1GMoJIXB
            • xlhoas architectes architects anne sophie lucas 13x1514
            • xlhoas architectes architects anne sophie lucas 4x852.jpg.pagespeed.ic.pQgZeJ sVl
            • xlhoas architectes architects anne sophie lucas 5x852.jpg.pagespeed.ic.AiVJ16oa9t

          Eigenhuis

          Rénovation d'une maison familiale.

            : Réalisé

            : Watermael Boitsfort, Belgium

            : 2014

            • lhoas architectes architects eigenhuis housing 1x731
              lhoas architectes architects eigenhuis housing 1x731
            • lhoas architectes architects eigenhuis housing 18x411
              lhoas architectes architects eigenhuis housing 18x411
            • lhoas architectes architects eigenhuis housing 2x548
              lhoas architectes architects eigenhuis housing 2x548
            • lhoas architectes architects eigenhuis housing 21x731
              lhoas architectes architects eigenhuis housing 21x731
            • lhoas architectes architects eigenhuis housing 22x411
              lhoas architectes architects eigenhuis housing 22x411
            • lhoas architectes architects eigenhuis housing 3x633
              lhoas architectes architects eigenhuis housing 3x633
            • lhoas architectes architects eigenhuis housing 3x305
              lhoas architectes architects eigenhuis housing 3x305
            • lhoas architectes architects eigenhuis housing 5x974
              lhoas architectes architects eigenhuis housing 5x974
            • lhoas architectes architects eigenhuis housing plan 1x451
              lhoas architectes architects eigenhuis housing plan 1x451
            • lhoas architectes architects eigenhuis housing plan 2x330
              lhoas architectes architects eigenhuis housing plan 2x330
            • lhoas architectes architects eigenhuis housing plan 3x203
              lhoas architectes architects eigenhuis housing plan 3x203
            • lhoas architectes architects eigenhuis housing plan 4x211
              lhoas architectes architects eigenhuis housing plan 4x211
            • lhoas architectes architects eigenhuis housing plan 5x203
              lhoas architectes architects eigenhuis housing plan 5x203
            • xlhoas architectes architects eigenhuis housing 3x633.jpg.pagespeed.ic.j0wTy177Rh
              xlhoas architectes architects eigenhuis housing 3x633.jpg.pagespeed.ic.j0wTy177Rh
            • xlhoas architectes architects eigenhuis housing 3x305.jpg.pagespeed.ic.jISSMRvcxD
              xlhoas architectes architects eigenhuis housing 3x305.jpg.pagespeed.ic.jISSMRvcxD
            lhoas architectes architects eigenhuis housing 1x731
            lhoas architectes architects eigenhuis housing 18x411
            lhoas architectes architects eigenhuis housing 2x548
            lhoas architectes architects eigenhuis housing 21x731
            lhoas architectes architects eigenhuis housing 22x411
            lhoas architectes architects eigenhuis housing 3x633
            lhoas architectes architects eigenhuis housing 3x305
            lhoas architectes architects eigenhuis housing 5x974
            lhoas architectes architects eigenhuis housing plan 1x451
            lhoas architectes architects eigenhuis housing plan 2x330
            lhoas architectes architects eigenhuis housing plan 3x203
            lhoas architectes architects eigenhuis housing plan 4x211
            lhoas architectes architects eigenhuis housing plan 5x203
            xlhoas architectes architects eigenhuis housing 3x633.jpg.pagespeed.ic.j0wTy177Rh
            xlhoas architectes architects eigenhuis housing 3x305.jpg.pagespeed.ic.jISSMRvcxD
              • lhoas architectes architects eigenhuis housing 1x731
              • lhoas architectes architects eigenhuis housing 18x411
              • lhoas architectes architects eigenhuis housing 2x548
              • lhoas architectes architects eigenhuis housing 21x731
              • lhoas architectes architects eigenhuis housing 22x411
              • lhoas architectes architects eigenhuis housing 3x633
              • lhoas architectes architects eigenhuis housing 3x305
              • lhoas architectes architects eigenhuis housing 5x974
              • lhoas architectes architects eigenhuis housing plan 1x451
              • lhoas architectes architects eigenhuis housing plan 2x330
              • lhoas architectes architects eigenhuis housing plan 3x203
              • lhoas architectes architects eigenhuis housing plan 4x211
              • lhoas architectes architects eigenhuis housing plan 5x203
              • xlhoas architectes architects eigenhuis housing 3x633.jpg.pagespeed.ic.j0wTy177Rh
              • xlhoas architectes architects eigenhuis housing 3x305.jpg.pagespeed.ic.jISSMRvcxD

            Plus d'articles...

            1. Avenue Louise
            2. Ciney
            3. Ommegang Marais
            4. La Hulpe

            Page 3 sur 6

            • 1
            • 2
            • 3
            • 4
            • 5
            • 6

            Lhoas & Lhoas architects

            info@lhoas-lhoas.com
            62/11, Chaussée de Forest 1060, Bruxelles, Belgique
            +32 (0)2 372.08.75
            Facebook
            Instagram
            © 2006 - 2025 Designed and developped by La Missive
            • Architecture
              • Habitat
              • Usage Mixte
              • Bureau
              • Commercial
              • Culture
              • Scénographie
              • Chronologie
            • Design
              • Sur mesure
              • Meuble
              • Chronologie
            • Publications
              • Expositions
              • Presse
              • Conférences
              • Chronologie
            • A propos de nous