Lhoas & Lhoas
  • Architecture
    • Habitat
    • Usage Mixte
    • Bureau
    • Commercial
    • Culture
    • Scénographie
    • Chronologie
  • Design
    • Sur mesure
    • Meuble
    • Chronologie
  • Publications
    • Expositions
    • Presse
    • Conférences
    • Chronologie
  • A propos de nous
Lhoas & Lhoas

Sélectionnez votre langue

  • FR
  • EN
  1. Vous êtes ici :  
  2. Accueil
  3. Architecture
  4. Scénographie

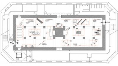
Ommegang "Behind the scene"

La première édition de l’exposition Ommegang « Behind the Scene » s’est déroulée au sous-sol des Halles Saint Géry en été 2020 puis au Palais du Coudenberg en 2021 pour sa deuxième édition.

L'Ommegang est un défilé folklorique bruxellois retraçant l’arrivée de Charles Quint et de son fils Phillippe en 1549 dans la capitale belge. A l'occasion de son classement au patrimoine culturel immatériel de l'humanité en fin 2019, UrbanBrussel, commanditaire de l'exposition, souhaitait dévoiler l'envers du décor et resortir les costumes des années 1930 (façonnés à l'époque par les couturières de la Monnaie).

Dans sa version actuelle, le défilé débute à la place du Sablon autour de l'église, puis file vers la Grand-Place pour le spectacle. On compte 1400 figurants tous costumés, rejouant les différentes strates de la cité, les hommes d'armes, les ducs de Brabant, les représentants des corporations, les chefs des Nations, les représentants des institutions de la ville, les lignages de Bruxelles, les Serments etc.
Autant de costumes donc, dans leur version actuelle, mais aussi des costumes d'époque conservés dans la réserve de l'Ommegang rue des Tanneurs. Et nombre d'artefacts pour agrémenter la procession.

L'exposition dévoile une sélection des pièces du cortège et propose de redécouvrir ce patrimoine quelque peu délaissé des bruxellois.es.

La scénographie se veut elle, élémentaire, presque brutale. A la fois pour trancher avec les fioritures, couleurs, matières, des costumes et autres artefacts, et à la fois dans un souci de rapidité (fabrication, montage), de modularité et de réemploi. Car l'exposition est destinée à être remontée à plusieurs reprises dans des lieux et contextes différents.

Scénographie d’exposition : Ommegang "Behind the Scene"
Commanditaire : Urban Brussels
Commissariat : Urban Brussels / Lhoas & Lhoas

    : 335 m2

    : Halles Saint Géry, Brussels

    : 2021

    : Philippe Braquenier (photos d'exposition + photos exposées des réserves de l'Ommegang)

    • xommegang exh views 01 1600pxx823.jpg.pagespeed.ic.MnbwBxlz1c
      xommegang exh views 01 1600pxx823.jpg.pagespeed.ic.MnbwBxlz1c
    • xommegang exh views 04 1600pxx823.jpg.pagespeed.ic.460S17NWW6
      xommegang exh views 04 1600pxx823.jpg.pagespeed.ic.460S17NWW6
    • xommegang exh views 05 1600pxx365.jpg.pagespeed.ic.npLunuOtI
      xommegang exh views 05 1600pxx365.jpg.pagespeed.ic.npLunuOtI
    • xommegang exh views 06 1600pxx365.jpg.pagespeed.ic.WnCfjyVoUF
      xommegang exh views 06 1600pxx365.jpg.pagespeed.ic.WnCfjyVoUF
    • xommegang exh views 08 1600pxx365.jpg.pagespeed.ic.PmFbPXdzto
      xommegang exh views 08 1600pxx365.jpg.pagespeed.ic.PmFbPXdzto
    • xommegang exh views 09 1600pxx823.jpg.pagespeed.ic.G0p111 W6
      xommegang exh views 09 1600pxx823.jpg.pagespeed.ic.G0p111 W6
    • xommegang exh views 10 1600pxx365.jpg.pagespeed.ic.I7x2O9Wlzu
      xommegang exh views 10 1600pxx365.jpg.pagespeed.ic.I7x2O9Wlzu
    • xommegang exh views 11 1600pxx365.jpg.pagespeed.ic.NhJZGU7ItW
      xommegang exh views 11 1600pxx365.jpg.pagespeed.ic.NhJZGU7ItW
    • xommegang exh views 14 1600pxx757.jpg.pagespeed.ic.YI NFeubeX
      xommegang exh views 14 1600pxx757.jpg.pagespeed.ic.YI NFeubeX
    • xommegang exh views 16 1600pxx329.jpg.pagespeed.ic.tvA3gyFwxR
      xommegang exh views 16 1600pxx329.jpg.pagespeed.ic.tvA3gyFwxR
    • xommegang exh views 17 1600pxx823.jpg.pagespeed.ic.Q1FmhOXiJN
      xommegang exh views 17 1600pxx823.jpg.pagespeed.ic.Q1FmhOXiJN
    • xommegang exh views 23 1600pxx306.jpg.pagespeed.ic.9u74Qw0Zce
      xommegang exh views 23 1600pxx306.jpg.pagespeed.ic.9u74Qw0Zce
    • xommegang exh views 24 1600pxx365.jpg.pagespeed.ic.a1iJXGks7m
      xommegang exh views 24 1600pxx365.jpg.pagespeed.ic.a1iJXGks7m
    • ommegang exh views 01 1600pxx823
      ommegang exh views 01 1600pxx823
    • ommegang exh views 03 1600pxx823
      ommegang exh views 03 1600pxx823
    • ommegang exh views 04 1600pxx823
      ommegang exh views 04 1600pxx823
    • ommegang exh views 07 1600pxx365
      ommegang exh views 07 1600pxx365
    • ommegang exh views 10 1600pxx365
      ommegang exh views 10 1600pxx365
    • ommegang exh views 11 1600pxx365
      ommegang exh views 11 1600pxx365
    • ommegang exh views 14 1600pxx757
      ommegang exh views 14 1600pxx757
    • ommegang exh views 14 1600pxx365
      ommegang exh views 14 1600pxx365
    • ommegang exh views 15 1600pxx329
      ommegang exh views 15 1600pxx329
    • ommegang exh views 16 1600pxx329
      ommegang exh views 16 1600pxx329
    • ommegang exh views 17 1600pxx823
      ommegang exh views 17 1600pxx823
    • ommegang exh views 19 1600pxx685
      ommegang exh views 19 1600pxx685
    • ommegang exh views 20 1600pxx685
      ommegang exh views 20 1600pxx685
    • ommegang exh views 21 1600pxx438
      ommegang exh views 21 1600pxx438
    • ommegang exh views 22 1600pxx438
      ommegang exh views 22 1600pxx438
    xommegang exh views 01 1600pxx823.jpg.pagespeed.ic.MnbwBxlz1c
    xommegang exh views 04 1600pxx823.jpg.pagespeed.ic.460S17NWW6
    xommegang exh views 05 1600pxx365.jpg.pagespeed.ic.npLunuOtI
    xommegang exh views 06 1600pxx365.jpg.pagespeed.ic.WnCfjyVoUF
    xommegang exh views 08 1600pxx365.jpg.pagespeed.ic.PmFbPXdzto
    xommegang exh views 09 1600pxx823.jpg.pagespeed.ic.G0p111 W6
    xommegang exh views 10 1600pxx365.jpg.pagespeed.ic.I7x2O9Wlzu
    xommegang exh views 11 1600pxx365.jpg.pagespeed.ic.NhJZGU7ItW
    xommegang exh views 14 1600pxx757.jpg.pagespeed.ic.YI NFeubeX
    xommegang exh views 16 1600pxx329.jpg.pagespeed.ic.tvA3gyFwxR
    xommegang exh views 17 1600pxx823.jpg.pagespeed.ic.Q1FmhOXiJN
    xommegang exh views 23 1600pxx306.jpg.pagespeed.ic.9u74Qw0Zce
    xommegang exh views 24 1600pxx365.jpg.pagespeed.ic.a1iJXGks7m
    ommegang exh views 01 1600pxx823
    ommegang exh views 03 1600pxx823
    ommegang exh views 04 1600pxx823
    ommegang exh views 07 1600pxx365
    ommegang exh views 10 1600pxx365
    ommegang exh views 11 1600pxx365
    ommegang exh views 14 1600pxx757
    ommegang exh views 14 1600pxx365
    ommegang exh views 15 1600pxx329
    ommegang exh views 16 1600pxx329
    ommegang exh views 17 1600pxx823
    ommegang exh views 19 1600pxx685
    ommegang exh views 20 1600pxx685
    ommegang exh views 21 1600pxx438
    ommegang exh views 22 1600pxx438
      • xommegang exh views 01 1600pxx823.jpg.pagespeed.ic.MnbwBxlz1c
      • xommegang exh views 04 1600pxx823.jpg.pagespeed.ic.460S17NWW6
      • xommegang exh views 05 1600pxx365.jpg.pagespeed.ic.npLunuOtI
      • xommegang exh views 06 1600pxx365.jpg.pagespeed.ic.WnCfjyVoUF
      • xommegang exh views 08 1600pxx365.jpg.pagespeed.ic.PmFbPXdzto
      • xommegang exh views 09 1600pxx823.jpg.pagespeed.ic.G0p111 W6
      • xommegang exh views 10 1600pxx365.jpg.pagespeed.ic.I7x2O9Wlzu
      • xommegang exh views 11 1600pxx365.jpg.pagespeed.ic.NhJZGU7ItW
      • xommegang exh views 14 1600pxx757.jpg.pagespeed.ic.YI NFeubeX
      • xommegang exh views 16 1600pxx329.jpg.pagespeed.ic.tvA3gyFwxR
      • xommegang exh views 17 1600pxx823.jpg.pagespeed.ic.Q1FmhOXiJN
      • xommegang exh views 23 1600pxx306.jpg.pagespeed.ic.9u74Qw0Zce
      • xommegang exh views 24 1600pxx365.jpg.pagespeed.ic.a1iJXGks7m
      • ommegang exh views 01 1600pxx823
      • ommegang exh views 03 1600pxx823
      • ommegang exh views 04 1600pxx823
      • ommegang exh views 07 1600pxx365
      • ommegang exh views 10 1600pxx365
      • ommegang exh views 11 1600pxx365
      • ommegang exh views 14 1600pxx757
      • ommegang exh views 14 1600pxx365
      • ommegang exh views 15 1600pxx329
      • ommegang exh views 16 1600pxx329
      • ommegang exh views 17 1600pxx823
      • ommegang exh views 19 1600pxx685
      • ommegang exh views 20 1600pxx685
      • ommegang exh views 21 1600pxx438
      • ommegang exh views 22 1600pxx438

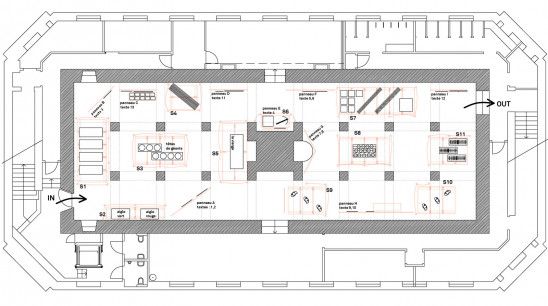
    Nature Morte / Nature Vivante

    Plus de 70 oeuvres ont été rassemblées à l’occasion de cette exposition sur le thème : Nature Morte Nature Vivante avec une grande diversité d’interprétations et supports : objets, photo, vidéo, installations... Les artistes exposés vont de FormaFantasma à Andrea Branzy en passant par Marlène Huissoud, Alexi Williams Wynn et bien d’autres encore.

    Notre projet se veut à la fois très neutre, simple et efficace ; la priorité était de mettre en valeur les œuvres et la séquence narrative que les curateurs souhaitaient mettre en place. Notre proposition, faite de larges parois en carton, offre une nouvelle circulation, un séquençage de l’exposition, une découverte progressive de toutes les œuvres. Elle complexifie la vision habituelle de l’espace du magasin aux foins et simplifie la narration de l’exposition. Notre volonté était de garder partout perceptible l'échelle et l'enveloppe physique du magasin aux foins tout en définissant des espaces autonomes.

    Les grandes cloisons en carton accentuent la verticalité du lieu, les socles bas et exagérément longs quant à eux invitent à une lecture horizontale liée à la position des œuvres placées assez bas.

    Le carton, matériau pauvre, économique et léger, a été choisi dans la réalisation de cloisons géantes de 5m x 10,12,15m. Ces dernières constituent une présence fragile à la fois imposante et invisible. Les panneaux offrent une forme de sobriété dans un lieu où la matérialité est extrêmement présente.

    La scénographie joue aussi un rôle essentiel en tant qu’intermédiaire entre l’échelle du bâtiment (45 mètres de long, + de 10m de large et de haut) et l’échelle de l’objet.

    Scénographie d’exposition : Nature Vivante Nature Morte
    Commissariat : Veerle Wenes / Ralph Collier
    Direction CID : Marie Pok / Françoise Foulon
    Scénographie : Lhoas & Lhoas architectes

      : 512 m2

      : CID Grand Hornu Rue Sainte-Louise, 82, 7301 Hornu

      : 2019

      : Tim Van de Velde

      • lhoas lhoas architects cid grand hornu nature morte nature vivante02 1600pxx758
        lhoas lhoas architects cid grand hornu nature morte nature vivante02 1600pxx758
      • lhoas lhoas architects cid grand hornu nature morte nature vivante02 1600pxx365
        lhoas lhoas architects cid grand hornu nature morte nature vivante02 1600pxx365
      • lhoas lhoas architects cid grand hornu nature morte nature vivante03 1600pxx822
        lhoas lhoas architects cid grand hornu nature morte nature vivante03 1600pxx822
      • lhoas lhoas architects cid grand hornu nature morte nature vivante05 1600pxx365
        lhoas lhoas architects cid grand hornu nature morte nature vivante05 1600pxx365
      • lhoas lhoas architects cid grand hornu nature morte nature vivante06 1600pxx365
        lhoas lhoas architects cid grand hornu nature morte nature vivante06 1600pxx365
      • lhoas lhoas architects cid grand hornu nature morte nature vivante08 1600pxx822
        lhoas lhoas architects cid grand hornu nature morte nature vivante08 1600pxx822
      • lhoas lhoas architects cid grand hornu nature morte nature vivante09 1600pxx822
        lhoas lhoas architects cid grand hornu nature morte nature vivante09 1600pxx822
      • lhoas lhoas architects cid grand hornu nature morte nature vivante11 1600pxx822
        lhoas lhoas architects cid grand hornu nature morte nature vivante11 1600pxx822
      • xlhoas lhoas architects cid grand hornu nature morte nature vivante02 1600pxx758.jpg.pagespeed.ic.QltARhZVc
        xlhoas lhoas architects cid grand hornu nature morte nature vivante02 1600pxx758.jpg.pagespeed.ic.QltARhZVc
      • xlhoas lhoas architects cid grand hornu nature morte nature vivante02 1600pxx365.jpg.pagespeed.ic.hPRmwY0ghO
        xlhoas lhoas architects cid grand hornu nature morte nature vivante02 1600pxx365.jpg.pagespeed.ic.hPRmwY0ghO
      • xlhoas lhoas architects cid grand hornu nature morte nature vivante08 1600pxx822.jpg.pagespeed.ic.LLGTmpBPjA
        xlhoas lhoas architects cid grand hornu nature morte nature vivante08 1600pxx822.jpg.pagespeed.ic.LLGTmpBPjA
      lhoas lhoas architects cid grand hornu nature morte nature vivante02 1600pxx758
      lhoas lhoas architects cid grand hornu nature morte nature vivante02 1600pxx365
      lhoas lhoas architects cid grand hornu nature morte nature vivante03 1600pxx822
      lhoas lhoas architects cid grand hornu nature morte nature vivante05 1600pxx365
      lhoas lhoas architects cid grand hornu nature morte nature vivante06 1600pxx365
      lhoas lhoas architects cid grand hornu nature morte nature vivante08 1600pxx822
      lhoas lhoas architects cid grand hornu nature morte nature vivante09 1600pxx822
      lhoas lhoas architects cid grand hornu nature morte nature vivante11 1600pxx822
      xlhoas lhoas architects cid grand hornu nature morte nature vivante02 1600pxx758.jpg.pagespeed.ic.QltARhZVc
      xlhoas lhoas architects cid grand hornu nature morte nature vivante02 1600pxx365.jpg.pagespeed.ic.hPRmwY0ghO
      xlhoas lhoas architects cid grand hornu nature morte nature vivante08 1600pxx822.jpg.pagespeed.ic.LLGTmpBPjA
        • lhoas lhoas architects cid grand hornu nature morte nature vivante02 1600pxx758
        • lhoas lhoas architects cid grand hornu nature morte nature vivante02 1600pxx365
        • lhoas lhoas architects cid grand hornu nature morte nature vivante03 1600pxx822
        • lhoas lhoas architects cid grand hornu nature morte nature vivante05 1600pxx365
        • lhoas lhoas architects cid grand hornu nature morte nature vivante06 1600pxx365
        • lhoas lhoas architects cid grand hornu nature morte nature vivante08 1600pxx822
        • lhoas lhoas architects cid grand hornu nature morte nature vivante09 1600pxx822
        • lhoas lhoas architects cid grand hornu nature morte nature vivante11 1600pxx822
        • xlhoas lhoas architects cid grand hornu nature morte nature vivante02 1600pxx758.jpg.pagespeed.ic.QltARhZVc
        • xlhoas lhoas architects cid grand hornu nature morte nature vivante02 1600pxx365.jpg.pagespeed.ic.hPRmwY0ghO
        • xlhoas lhoas architects cid grand hornu nature morte nature vivante08 1600pxx822.jpg.pagespeed.ic.LLGTmpBPjA

      Art Brussels, exposition Mementos

      Scénographie pour l’exposition Mementos, à l’occasion de la 35ème édition du salon Art Brussels.

      “Pour sa 35ème édition, Art Brussels annonce une collaboration entre le célèbre producteur d’expositions Jens Hoffmann et la renommée commissaire et critique Piper Marshall pour le projet artistique phare du salon. Appelé Mementos: Artist’s Souvenirs, Artefacts, and other Curiosities, l’exposition confronte des objets personnels et artefacts provenant des collections privées des artistes participants à Art Brussels 2017.

      Disposés au sein d’une scénographie créée par l’agence d’architecture bruxelloise Lhoas & Lhoas, les objets offrent une alternative à la manière d’envisager la collecte. Ils attachent aussi une grande importance à la valeur émotionnelle et sentimentale définies par les histoires individuelles.

      Présenter ces notions dans le contexte d’une foire d’art suggère une économie différente de l’investissement des objets d’art et révèle aussi les sentiments et l’attitude très personnelle et subjective des artistes participants.

        : 2017

        : Fabrice Schneider

        • lhoas architectes architects art brussels mementos scenography 1x365
          lhoas architectes architects art brussels mementos scenography 1x365
        • lhoas architectes architects art brussels mementos scenography 10x757
          lhoas architectes architects art brussels mementos scenography 10x757
        • lhoas architectes architects art brussels mementos scenography 10x365
          lhoas architectes architects art brussels mementos scenography 10x365
        • lhoas architectes architects art brussels mementos scenography 11x365
          lhoas architectes architects art brussels mementos scenography 11x365
        • lhoas architectes architects art brussels mementos scenography 12x365
          lhoas architectes architects art brussels mementos scenography 12x365
        • lhoas architectes architects art brussels mementos scenography 14x822
          lhoas architectes architects art brussels mementos scenography 14x822
        • lhoas architectes architects art brussels mementos scenography 17x365
          lhoas architectes architects art brussels mementos scenography 17x365
        • lhoas architectes architects art brussels mementos scenography 18x365
          lhoas architectes architects art brussels mementos scenography 18x365
        • lhoas architectes architects art brussels mementos scenography 19x775
          lhoas architectes architects art brussels mementos scenography 19x775
        • lhoas architectes architects art brussels mementos scenography 20x775
          lhoas architectes architects art brussels mementos scenography 20x775
        • lhoas architectes architects art brussels mementos scenography 22x365
          lhoas architectes architects art brussels mementos scenography 22x365
        • lhoas architectes architects art brussels mementos scenography 3x365
          lhoas architectes architects art brussels mementos scenography 3x365
        • lhoas architectes architects art brussels mementos scenography 6x365
          lhoas architectes architects art brussels mementos scenography 6x365
        • lhoas architectes architects art brussels mementos scenography 7x365
          lhoas architectes architects art brussels mementos scenography 7x365
        • lhoas architectes architects art brussels mementos scenography 8x365
          lhoas architectes architects art brussels mementos scenography 8x365
        • xlhoas architectes architects art brussels mementos scenography 10x757.jpg.pagespeed.ic.9X0GyvT gn
          xlhoas architectes architects art brussels mementos scenography 10x757.jpg.pagespeed.ic.9X0GyvT gn
        • xlhoas architectes architects art brussels mementos scenography 10x365.jpg.pagespeed.ic. dta2gF4iV
          xlhoas architectes architects art brussels mementos scenography 10x365.jpg.pagespeed.ic. dta2gF4iV
        • xlhoas architectes architects art brussels mementos scenography 11x365.jpg.pagespeed.ic.AJIp6q9neR
          xlhoas architectes architects art brussels mementos scenography 11x365.jpg.pagespeed.ic.AJIp6q9neR
        • xlhoas architectes architects art brussels mementos scenography 21x365.jpg.pagespeed.ic.1gWlHp80T4
          xlhoas architectes architects art brussels mementos scenography 21x365.jpg.pagespeed.ic.1gWlHp80T4
        • xlhoas architectes architects art brussels mementos scenography 23x369.jpg.pagespeed.ic.Z25UwJbseK
          xlhoas architectes architects art brussels mementos scenography 23x369.jpg.pagespeed.ic.Z25UwJbseK
        • xlhoas architectes architects art brussels mementos scenography 3x365.jpg.pagespeed.ic.Ti9dlVVSHY
          xlhoas architectes architects art brussels mementos scenography 3x365.jpg.pagespeed.ic.Ti9dlVVSHY
        • xlhoas architectes architects art brussels mementos scenography 6x365.jpg.pagespeed.ic.cbmIG4OcDI
          xlhoas architectes architects art brussels mementos scenography 6x365.jpg.pagespeed.ic.cbmIG4OcDI
        • xlhoas architectes architects art brussels mementos scenography 8x365.jpg.pagespeed.ic.f IAFrLTnm
          xlhoas architectes architects art brussels mementos scenography 8x365.jpg.pagespeed.ic.f IAFrLTnm
        lhoas architectes architects art brussels mementos scenography 1x365
        lhoas architectes architects art brussels mementos scenography 10x757
        lhoas architectes architects art brussels mementos scenography 10x365
        lhoas architectes architects art brussels mementos scenography 11x365
        lhoas architectes architects art brussels mementos scenography 12x365
        lhoas architectes architects art brussels mementos scenography 14x822
        lhoas architectes architects art brussels mementos scenography 17x365
        lhoas architectes architects art brussels mementos scenography 18x365
        lhoas architectes architects art brussels mementos scenography 19x775
        lhoas architectes architects art brussels mementos scenography 20x775
        lhoas architectes architects art brussels mementos scenography 22x365
        lhoas architectes architects art brussels mementos scenography 3x365
        lhoas architectes architects art brussels mementos scenography 6x365
        lhoas architectes architects art brussels mementos scenography 7x365
        lhoas architectes architects art brussels mementos scenography 8x365
        xlhoas architectes architects art brussels mementos scenography 10x757.jpg.pagespeed.ic.9X0GyvT gn
        xlhoas architectes architects art brussels mementos scenography 10x365.jpg.pagespeed.ic. dta2gF4iV
        xlhoas architectes architects art brussels mementos scenography 11x365.jpg.pagespeed.ic.AJIp6q9neR
        xlhoas architectes architects art brussels mementos scenography 21x365.jpg.pagespeed.ic.1gWlHp80T4
        xlhoas architectes architects art brussels mementos scenography 23x369.jpg.pagespeed.ic.Z25UwJbseK
        xlhoas architectes architects art brussels mementos scenography 3x365.jpg.pagespeed.ic.Ti9dlVVSHY
        xlhoas architectes architects art brussels mementos scenography 6x365.jpg.pagespeed.ic.cbmIG4OcDI
        xlhoas architectes architects art brussels mementos scenography 8x365.jpg.pagespeed.ic.f IAFrLTnm
          • lhoas architectes architects art brussels mementos scenography 1x365
          • lhoas architectes architects art brussels mementos scenography 10x757
          • lhoas architectes architects art brussels mementos scenography 10x365
          • lhoas architectes architects art brussels mementos scenography 11x365
          • lhoas architectes architects art brussels mementos scenography 12x365
          • lhoas architectes architects art brussels mementos scenography 14x822
          • lhoas architectes architects art brussels mementos scenography 17x365
          • lhoas architectes architects art brussels mementos scenography 18x365
          • lhoas architectes architects art brussels mementos scenography 19x775
          • lhoas architectes architects art brussels mementos scenography 20x775
          • lhoas architectes architects art brussels mementos scenography 22x365
          • lhoas architectes architects art brussels mementos scenography 3x365
          • lhoas architectes architects art brussels mementos scenography 6x365
          • lhoas architectes architects art brussels mementos scenography 7x365
          • lhoas architectes architects art brussels mementos scenography 8x365
          • xlhoas architectes architects art brussels mementos scenography 10x757.jpg.pagespeed.ic.9X0GyvT gn
          • xlhoas architectes architects art brussels mementos scenography 10x365.jpg.pagespeed.ic. dta2gF4iV
          • xlhoas architectes architects art brussels mementos scenography 11x365.jpg.pagespeed.ic.AJIp6q9neR
          • xlhoas architectes architects art brussels mementos scenography 21x365.jpg.pagespeed.ic.1gWlHp80T4
          • xlhoas architectes architects art brussels mementos scenography 23x369.jpg.pagespeed.ic.Z25UwJbseK
          • xlhoas architectes architects art brussels mementos scenography 3x365.jpg.pagespeed.ic.Ti9dlVVSHY
          • xlhoas architectes architects art brussels mementos scenography 6x365.jpg.pagespeed.ic.cbmIG4OcDI
          • xlhoas architectes architects art brussels mementos scenography 8x365.jpg.pagespeed.ic.f IAFrLTnm

        MAD - Tokyo Brussels Days

        Pour accompagner le MAD et Brussels Invest & Export dans le montage de la mission “Brussels Days” à Tokyo, Lhoas & Lhoas avait un mois et demi pour imaginer et produire la scénographie de l’ambassade de Belgique. Ce travail a été réalisé en collaboration avec le studio de branding Base Design.

        En phase avec l’idée directrice de “The Art of Assemblage”, la scénographie a pour but de devenir l’écho du concept de composition et de décomposition en tant que pratique créative bruxelloise.

        Les éléments archétypaux de l’atelier composent ce lieu pour les designers, constituent la bibliothèque de matériaux, de formes et d’objets, servent aussi à la présentation des travaux et font office de lieux de rencontres.

        L’hétérogénéité et la dimension modulaire des propositions sont ouvertes à la multitude des disciplines présentes (design, mode …) : petite ou grande échelle, produits finis et prototypes ou encore images. La simplicité du préfabriqué répond au besoin de production et d’installation rapides. Les espaces d’expositions offrent aussi aux participants des espaces de rencontres et de réunions.

          : 2016

          : Lydie Nesvadba

          • lhoas architectes architects mad tokyo brussels days scenography 1x1136
            lhoas architectes architects mad tokyo brussels days scenography 1x1136
          • lhoas architectes architects mad tokyo brussels days scenography 10x411
            lhoas architectes architects mad tokyo brussels days scenography 10x411
          • lhoas architectes architects mad tokyo brussels days scenography 11x411
            lhoas architectes architects mad tokyo brussels days scenography 11x411
          • lhoas architectes architects mad tokyo brussels days scenography 12x731
            lhoas architectes architects mad tokyo brussels days scenography 12x731
          • lhoas architectes architects mad tokyo brussels days scenography 14x411
            lhoas architectes architects mad tokyo brussels days scenography 14x411
          • lhoas architectes architects mad tokyo brussels days scenography 15x411
            lhoas architectes architects mad tokyo brussels days scenography 15x411
          • lhoas architectes architects mad tokyo brussels days scenography 16x411
            lhoas architectes architects mad tokyo brussels days scenography 16x411
          • lhoas architectes architects mad tokyo brussels days scenography 17x411
            lhoas architectes architects mad tokyo brussels days scenography 17x411
          • lhoas architectes architects mad tokyo brussels days scenography 19x411
            lhoas architectes architects mad tokyo brussels days scenography 19x411
          • lhoas architectes architects mad tokyo brussels days scenography 21x411
            lhoas architectes architects mad tokyo brussels days scenography 21x411
          • lhoas architectes architects mad tokyo brussels days scenography 22x731
            lhoas architectes architects mad tokyo brussels days scenography 22x731
          • lhoas architectes architects mad tokyo brussels days scenography 4x411
            lhoas architectes architects mad tokyo brussels days scenography 4x411
          • lhoas architectes architects mad tokyo brussels days scenography 5x411
            lhoas architectes architects mad tokyo brussels days scenography 5x411
          • lhoas architectes architects mad tokyo brussels days scenography 6x731
            lhoas architectes architects mad tokyo brussels days scenography 6x731
          • lhoas architectes architects mad tokyo brussels days scenography 8x411
            lhoas architectes architects mad tokyo brussels days scenography 8x411
          • lhoas architectes architects mad tokyo brussels days scenography 9x411
            lhoas architectes architects mad tokyo brussels days scenography 9x411
          • xlhoas architectes architects mad tokyo brussels days scenography 1x1136.jpg.pagespeed.ic.thd7l8jH5D
            xlhoas architectes architects mad tokyo brussels days scenography 1x1136.jpg.pagespeed.ic.thd7l8jH5D
          • xlhoas architectes architects mad tokyo brussels days scenography 1x548.jpg.pagespeed.ic.txBLdywxn7
            xlhoas architectes architects mad tokyo brussels days scenography 1x548.jpg.pagespeed.ic.txBLdywxn7
          • xlhoas architectes architects mad tokyo brussels days scenography 10x411.jpg.pagespeed.ic.M0iS6nCVDC
            xlhoas architectes architects mad tokyo brussels days scenography 10x411.jpg.pagespeed.ic.M0iS6nCVDC
          • xlhoas architectes architects mad tokyo brussels days scenography 2x411.jpg.pagespeed.ic.IieJWyVDhu
            xlhoas architectes architects mad tokyo brussels days scenography 2x411.jpg.pagespeed.ic.IieJWyVDhu
          • xlhoas architectes architects mad tokyo brussels days scenography 21x411.jpg.pagespeed.ic.17Guw0OuPO
            xlhoas architectes architects mad tokyo brussels days scenography 21x411.jpg.pagespeed.ic.17Guw0OuPO
          • xlhoas architectes architects mad tokyo brussels days scenography 4x411.jpg.pagespeed.ic.8AQ58 MhGy
            xlhoas architectes architects mad tokyo brussels days scenography 4x411.jpg.pagespeed.ic.8AQ58 MhGy
          • xlhoas architectes architects mad tokyo brussels days scenography 5x411.jpg.pagespeed.ic.exav3zHNYk
            xlhoas architectes architects mad tokyo brussels days scenography 5x411.jpg.pagespeed.ic.exav3zHNYk
          • xlhoas architectes architects mad tokyo brussels days scenography 8x411.jpg.pagespeed.ic.rydv30l D
            xlhoas architectes architects mad tokyo brussels days scenography 8x411.jpg.pagespeed.ic.rydv30l  D
          lhoas architectes architects mad tokyo brussels days scenography 1x1136
          lhoas architectes architects mad tokyo brussels days scenography 10x411
          lhoas architectes architects mad tokyo brussels days scenography 11x411
          lhoas architectes architects mad tokyo brussels days scenography 12x731
          lhoas architectes architects mad tokyo brussels days scenography 14x411
          lhoas architectes architects mad tokyo brussels days scenography 15x411
          lhoas architectes architects mad tokyo brussels days scenography 16x411
          lhoas architectes architects mad tokyo brussels days scenography 17x411
          lhoas architectes architects mad tokyo brussels days scenography 19x411
          lhoas architectes architects mad tokyo brussels days scenography 21x411
          lhoas architectes architects mad tokyo brussels days scenography 22x731
          lhoas architectes architects mad tokyo brussels days scenography 4x411
          lhoas architectes architects mad tokyo brussels days scenography 5x411
          lhoas architectes architects mad tokyo brussels days scenography 6x731
          lhoas architectes architects mad tokyo brussels days scenography 8x411
          lhoas architectes architects mad tokyo brussels days scenography 9x411
          xlhoas architectes architects mad tokyo brussels days scenography 1x1136.jpg.pagespeed.ic.thd7l8jH5D
          xlhoas architectes architects mad tokyo brussels days scenography 1x548.jpg.pagespeed.ic.txBLdywxn7
          xlhoas architectes architects mad tokyo brussels days scenography 10x411.jpg.pagespeed.ic.M0iS6nCVDC
          xlhoas architectes architects mad tokyo brussels days scenography 2x411.jpg.pagespeed.ic.IieJWyVDhu
          xlhoas architectes architects mad tokyo brussels days scenography 21x411.jpg.pagespeed.ic.17Guw0OuPO
          xlhoas architectes architects mad tokyo brussels days scenography 4x411.jpg.pagespeed.ic.8AQ58 MhGy
          xlhoas architectes architects mad tokyo brussels days scenography 5x411.jpg.pagespeed.ic.exav3zHNYk
          xlhoas architectes architects mad tokyo brussels days scenography 8x411.jpg.pagespeed.ic.rydv30l  D
            • lhoas architectes architects mad tokyo brussels days scenography 1x1136
            • lhoas architectes architects mad tokyo brussels days scenography 10x411
            • lhoas architectes architects mad tokyo brussels days scenography 11x411
            • lhoas architectes architects mad tokyo brussels days scenography 12x731
            • lhoas architectes architects mad tokyo brussels days scenography 14x411
            • lhoas architectes architects mad tokyo brussels days scenography 15x411
            • lhoas architectes architects mad tokyo brussels days scenography 16x411
            • lhoas architectes architects mad tokyo brussels days scenography 17x411
            • lhoas architectes architects mad tokyo brussels days scenography 19x411
            • lhoas architectes architects mad tokyo brussels days scenography 21x411
            • lhoas architectes architects mad tokyo brussels days scenography 22x731
            • lhoas architectes architects mad tokyo brussels days scenography 4x411
            • lhoas architectes architects mad tokyo brussels days scenography 5x411
            • lhoas architectes architects mad tokyo brussels days scenography 6x731
            • lhoas architectes architects mad tokyo brussels days scenography 8x411
            • lhoas architectes architects mad tokyo brussels days scenography 9x411
            • xlhoas architectes architects mad tokyo brussels days scenography 1x1136.jpg.pagespeed.ic.thd7l8jH5D
            • xlhoas architectes architects mad tokyo brussels days scenography 1x548.jpg.pagespeed.ic.txBLdywxn7
            • xlhoas architectes architects mad tokyo brussels days scenography 10x411.jpg.pagespeed.ic.M0iS6nCVDC
            • xlhoas architectes architects mad tokyo brussels days scenography 2x411.jpg.pagespeed.ic.IieJWyVDhu
            • xlhoas architectes architects mad tokyo brussels days scenography 21x411.jpg.pagespeed.ic.17Guw0OuPO
            • xlhoas architectes architects mad tokyo brussels days scenography 4x411.jpg.pagespeed.ic.8AQ58 MhGy
            • xlhoas architectes architects mad tokyo brussels days scenography 5x411.jpg.pagespeed.ic.exav3zHNYk
            • xlhoas architectes architects mad tokyo brussels days scenography 8x411.jpg.pagespeed.ic.rydv30l  D

          Belvue

          Suite à un concours public, Lhoas & Lhoas a été nommé pour élaborer la scénographie du prochain hôtel Belvue, au coeur de Bruxelles.
          Signalétique en collaboration avec Els Vandekerckhove de Something Els


          Construction du bâtiment : l'Escaut

            : Completed

            : 48, Quai du Hainaut, 1080, Bruxelles.

            : 2015

            • lhoas architectes architects belvue hostel hotel 10x301
              lhoas architectes architects belvue hostel hotel 10x301
            • lhoas architectes architects belvue hostel hotel 13x384
              lhoas architectes architects belvue hostel hotel 13x384
            • lhoas architectes architects belvue hostel hotel 14x387
              lhoas architectes architects belvue hostel hotel 14x387
            • lhoas architectes architects belvue hostel hotel 16x291
              lhoas architectes architects belvue hostel hotel 16x291
            • lhoas architectes architects belvue hostel hotel 2x731
              lhoas architectes architects belvue hostel hotel 2x731
            • lhoas architectes architects belvue hostel hotel 20x411
              lhoas architectes architects belvue hostel hotel 20x411
            • lhoas architectes architects belvue hostel hotel 21x743
              lhoas architectes architects belvue hostel hotel 21x743
            • lhoas architectes architects belvue hostel hotel 22x731
              lhoas architectes architects belvue hostel hotel 22x731
            • lhoas architectes architects belvue hostel hotel 23x731
              lhoas architectes architects belvue hostel hotel 23x731
            • lhoas architectes architects belvue hostel hotel 24x731
              lhoas architectes architects belvue hostel hotel 24x731
            • lhoas architectes architects belvue hostel hotel 25x408
              lhoas architectes architects belvue hostel hotel 25x408
            • lhoas architectes architects belvue hostel hotel 6x411
              lhoas architectes architects belvue hostel hotel 6x411
            • lhoas architectes architects belvue hostel hotel 9x625
              lhoas architectes architects belvue hostel hotel 9x625
            • lhoas architectes architects belvue hostel hotel 9x301
              lhoas architectes architects belvue hostel hotel 9x301
            • lhoas architectes hotel belvue hostel 33x411
              lhoas architectes hotel belvue hostel 33x411
            • lhoas architectes hotel belvue hostel 35x411
              lhoas architectes hotel belvue hostel 35x411
            • lhoas architectes hotel belvue hostel 36x411
              lhoas architectes hotel belvue hostel 36x411
            • lhoas architectes hotel belvue hostel 37x411
              lhoas architectes hotel belvue hostel 37x411
            • lhoas architectes hotel belvue hostel 38x731
              lhoas architectes hotel belvue hostel 38x731
            • lhoas architectes hotel belvue hostel 39x1138
              lhoas architectes hotel belvue hostel 39x1138
            • lhoas architectes hotel belvue hostel 40x731
              lhoas architectes hotel belvue hostel 40x731
            • xlhoas architectes architects belvue hostel hotel 10x301.jpg.pagespeed.ic.vW3jnbV2Yi
              xlhoas architectes architects belvue hostel hotel 10x301.jpg.pagespeed.ic.vW3jnbV2Yi
            • xlhoas architectes architects belvue hostel hotel 13x384.jpg.pagespeed.ic.dNp5WC70IR
              xlhoas architectes architects belvue hostel hotel 13x384.jpg.pagespeed.ic.dNp5WC70IR
            • xlhoas architectes architects belvue hostel hotel 14x387.jpg.pagespeed.ic.x6e6Sw38wm
              xlhoas architectes architects belvue hostel hotel 14x387.jpg.pagespeed.ic.x6e6Sw38wm
            • xlhoas architectes architects belvue hostel hotel 15x398.jpg.pagespeed.ic.9 5OiZv4pQ
              xlhoas architectes architects belvue hostel hotel 15x398.jpg.pagespeed.ic.9 5OiZv4pQ
            • xlhoas architectes architects belvue hostel hotel 19x736.jpg.pagespeed.ic.EKO3Me OGB
              xlhoas architectes architects belvue hostel hotel 19x736.jpg.pagespeed.ic.EKO3Me OGB
            • xlhoas architectes architects belvue hostel hotel 2x731.jpg.pagespeed.ic.sHphtQClMl
              xlhoas architectes architects belvue hostel hotel 2x731.jpg.pagespeed.ic.sHphtQClMl
            • xlhoas architectes architects belvue hostel hotel 21x743.jpg.pagespeed.ic.LCxgnGixxk
              xlhoas architectes architects belvue hostel hotel 21x743.jpg.pagespeed.ic.LCxgnGixxk
            • xlhoas architectes architects belvue hostel hotel 6x411.jpg.pagespeed.ic.QPkA2ZEv9M
              xlhoas architectes architects belvue hostel hotel 6x411.jpg.pagespeed.ic.QPkA2ZEv9M
            • xlhoas architectes architects belvue hostel hotel 9x625.jpg.pagespeed.ic.ON8L66QNOF
              xlhoas architectes architects belvue hostel hotel 9x625.jpg.pagespeed.ic.ON8L66QNOF
            • xlhoas architectes architects belvue hostel hotel 9x301.jpg.pagespeed.ic.MKZoMYkSbC
              xlhoas architectes architects belvue hostel hotel 9x301.jpg.pagespeed.ic.MKZoMYkSbC
            • xlhoas architectes hotel belvue hostel 33x411.jpg.pagespeed.ic.VwQ9tZGxKm
              xlhoas architectes hotel belvue hostel 33x411.jpg.pagespeed.ic.VwQ9tZGxKm
            • xlhoas architectes hotel belvue hostel 35x411.jpg.pagespeed.ic.Pd IPKOFYt
              xlhoas architectes hotel belvue hostel 35x411.jpg.pagespeed.ic.Pd IPKOFYt
            • xlhoas architectes hotel belvue hostel 38x731.jpg.pagespeed.ic.K0UaZVCB3r
              xlhoas architectes hotel belvue hostel 38x731.jpg.pagespeed.ic.K0UaZVCB3r
            lhoas architectes architects belvue hostel hotel 10x301
            lhoas architectes architects belvue hostel hotel 13x384
            lhoas architectes architects belvue hostel hotel 14x387
            lhoas architectes architects belvue hostel hotel 16x291
            lhoas architectes architects belvue hostel hotel 2x731
            lhoas architectes architects belvue hostel hotel 20x411
            lhoas architectes architects belvue hostel hotel 21x743
            lhoas architectes architects belvue hostel hotel 22x731
            lhoas architectes architects belvue hostel hotel 23x731
            lhoas architectes architects belvue hostel hotel 24x731
            lhoas architectes architects belvue hostel hotel 25x408
            lhoas architectes architects belvue hostel hotel 6x411
            lhoas architectes architects belvue hostel hotel 9x625
            lhoas architectes architects belvue hostel hotel 9x301
            lhoas architectes hotel belvue hostel 33x411
            lhoas architectes hotel belvue hostel 35x411
            lhoas architectes hotel belvue hostel 36x411
            lhoas architectes hotel belvue hostel 37x411
            lhoas architectes hotel belvue hostel 38x731
            lhoas architectes hotel belvue hostel 39x1138
            lhoas architectes hotel belvue hostel 40x731
            xlhoas architectes architects belvue hostel hotel 10x301.jpg.pagespeed.ic.vW3jnbV2Yi
            xlhoas architectes architects belvue hostel hotel 13x384.jpg.pagespeed.ic.dNp5WC70IR
            xlhoas architectes architects belvue hostel hotel 14x387.jpg.pagespeed.ic.x6e6Sw38wm
            xlhoas architectes architects belvue hostel hotel 15x398.jpg.pagespeed.ic.9 5OiZv4pQ
            xlhoas architectes architects belvue hostel hotel 19x736.jpg.pagespeed.ic.EKO3Me OGB
            xlhoas architectes architects belvue hostel hotel 2x731.jpg.pagespeed.ic.sHphtQClMl
            xlhoas architectes architects belvue hostel hotel 21x743.jpg.pagespeed.ic.LCxgnGixxk
            xlhoas architectes architects belvue hostel hotel 6x411.jpg.pagespeed.ic.QPkA2ZEv9M
            xlhoas architectes architects belvue hostel hotel 9x625.jpg.pagespeed.ic.ON8L66QNOF
            xlhoas architectes architects belvue hostel hotel 9x301.jpg.pagespeed.ic.MKZoMYkSbC
            xlhoas architectes hotel belvue hostel 33x411.jpg.pagespeed.ic.VwQ9tZGxKm
            xlhoas architectes hotel belvue hostel 35x411.jpg.pagespeed.ic.Pd IPKOFYt
            xlhoas architectes hotel belvue hostel 38x731.jpg.pagespeed.ic.K0UaZVCB3r
              • lhoas architectes architects belvue hostel hotel 10x301
              • lhoas architectes architects belvue hostel hotel 13x384
              • lhoas architectes architects belvue hostel hotel 14x387
              • lhoas architectes architects belvue hostel hotel 16x291
              • lhoas architectes architects belvue hostel hotel 2x731
              • lhoas architectes architects belvue hostel hotel 20x411
              • lhoas architectes architects belvue hostel hotel 21x743
              • lhoas architectes architects belvue hostel hotel 22x731
              • lhoas architectes architects belvue hostel hotel 23x731
              • lhoas architectes architects belvue hostel hotel 24x731
              • lhoas architectes architects belvue hostel hotel 25x408
              • lhoas architectes architects belvue hostel hotel 6x411
              • lhoas architectes architects belvue hostel hotel 9x625
              • lhoas architectes architects belvue hostel hotel 9x301
              • lhoas architectes hotel belvue hostel 33x411
              • lhoas architectes hotel belvue hostel 35x411
              • lhoas architectes hotel belvue hostel 36x411
              • lhoas architectes hotel belvue hostel 37x411
              • lhoas architectes hotel belvue hostel 38x731
              • lhoas architectes hotel belvue hostel 39x1138
              • lhoas architectes hotel belvue hostel 40x731
              • xlhoas architectes architects belvue hostel hotel 10x301.jpg.pagespeed.ic.vW3jnbV2Yi
              • xlhoas architectes architects belvue hostel hotel 13x384.jpg.pagespeed.ic.dNp5WC70IR
              • xlhoas architectes architects belvue hostel hotel 14x387.jpg.pagespeed.ic.x6e6Sw38wm
              • xlhoas architectes architects belvue hostel hotel 15x398.jpg.pagespeed.ic.9 5OiZv4pQ
              • xlhoas architectes architects belvue hostel hotel 19x736.jpg.pagespeed.ic.EKO3Me OGB
              • xlhoas architectes architects belvue hostel hotel 2x731.jpg.pagespeed.ic.sHphtQClMl
              • xlhoas architectes architects belvue hostel hotel 21x743.jpg.pagespeed.ic.LCxgnGixxk
              • xlhoas architectes architects belvue hostel hotel 6x411.jpg.pagespeed.ic.QPkA2ZEv9M
              • xlhoas architectes architects belvue hostel hotel 9x625.jpg.pagespeed.ic.ON8L66QNOF
              • xlhoas architectes architects belvue hostel hotel 9x301.jpg.pagespeed.ic.MKZoMYkSbC
              • xlhoas architectes hotel belvue hostel 33x411.jpg.pagespeed.ic.VwQ9tZGxKm
              • xlhoas architectes hotel belvue hostel 35x411.jpg.pagespeed.ic.Pd IPKOFYt
              • xlhoas architectes hotel belvue hostel 38x731.jpg.pagespeed.ic.K0UaZVCB3r

            Plus d'articles...

            1. Biennale d'art contemporain de Venise 2015
            2. Brussels 2040
            3. MAS - Bonaparte aan de Schelde
            4. Bambi @ Wiels Contemporary Art Center

            Page 1 sur 3

            • 1
            • 2
            • 3

            Lhoas & Lhoas architects

            info@lhoas-lhoas.com
            62/11, Chaussée de Forest 1060, Bruxelles, Belgique
            +32 (0)2 372.08.75
            Facebook
            Instagram
            © 2006 - 2026 Designed and developped by La Missive
            • Architecture
              • Habitat
              • Usage Mixte
              • Bureau
              • Commercial
              • Culture
              • Scénographie
              • Chronologie
            • Design
              • Sur mesure
              • Meuble
              • Chronologie
            • Publications
              • Expositions
              • Presse
              • Conférences
              • Chronologie
            • A propos de nous