Lhoas & Lhoas
  • Architecture
    • Habitat
    • Usage Mixte
    • Bureau
    • Commercial
    • Culture
    • Scénographie
    • Chronologie
  • Design
    • Sur mesure
    • Meuble
    • Chronologie
  • Publications
    • Expositions
    • Presse
    • Conférences
    • Chronologie
  • A propos de nous
Lhoas & Lhoas

Sélectionnez votre langue

  • FR
  • EN
  1. Vous êtes ici :  
  2. Accueil
  3. Architecture
  4. Commercial

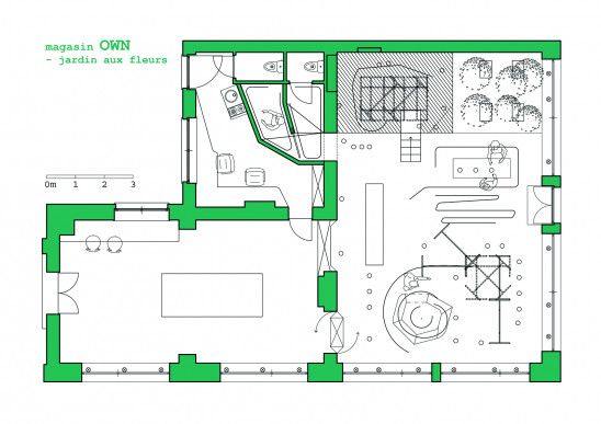
Own

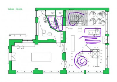
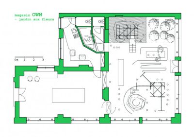
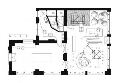
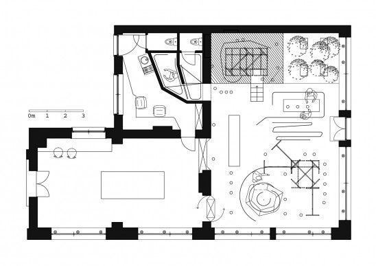
Repenser le rez-de-chaussée commercial sur le thème de la transparence...
Mettre en place une nouvelle identité pour un magasin de vêtements... Les axes de réflexion autour du projet Own ont mené à une intervention qui se veut fluide et objective.

L'absence de vitrine, ou plutôt son extension à l'extrême, amène à un espace qui s'insère de manière naturelle dans son environnement : le magasin est la vitrine, les limites entre l'espace public et l'intérieur du magasin s'estompent. Les formes et les matériaux, empruntés à l'industrie, jouent le jeu du ready-made : une mise en oeuvre architecturale les transforme en des objets pensés mais encore teintés de brut. Le sol s'exprime par un matériau pauvre, l'asphalte, pensé comme clin d’œil à la transparence du magasin sur la rue, prolongation de l'extérieur à l'intérieur. Les luminaires, diversifiés et mis en forme de façon ludique, affirment leur présence et se posent comme une alternative à l'éclairage commercial cru et indifférencié habituel.

    : 75 m2

    : Bruxelles

    : 66 000 €

    : 2004

    • lhoas architectes architects own 11x387
      lhoas architectes architects own 11x387
    • lhoas architectes architects own 12x387
      lhoas architectes architects own 12x387
    • lhoas architectes architects own 13x387
      lhoas architectes architects own 13x387
    • lhoas architectes architects own 14x387
      lhoas architectes architects own 14x387
    • lhoas architectes architects own 15x387
      lhoas architectes architects own 15x387
    • lhoas architectes architects own 16x387
      lhoas architectes architects own 16x387
    • lhoas architectes architects own 17x387
      lhoas architectes architects own 17x387
    • lhoas architectes architects own 18x387
      lhoas architectes architects own 18x387
    • lhoas architectes architects own 19x398
      lhoas architectes architects own 19x398
    • lhoas architectes architects own 2x351
      lhoas architectes architects own 2x351
    • lhoas architectes architects own 20x389
      lhoas architectes architects own 20x389
    • lhoas architectes architects own 3x426
      lhoas architectes architects own 3x426
    • lhoas architectes architects own 4x1394
      lhoas architectes architects own 4x1394
    • lhoas architectes architects own 5x765
      lhoas architectes architects own 5x765
    • lhoas architectes architects own 6x789
      lhoas architectes architects own 6x789
    • lhoas architectes architects own 7x378
      lhoas architectes architects own 7x378
    • lhoas architectes architects own 8x378
      lhoas architectes architects own 8x378
    • lhoas architectes architects own 9x378
      lhoas architectes architects own 9x378
    • xlhoas architectes architects own 19x398.jpg.pagespeed.ic.GBLPyQN28R
      xlhoas architectes architects own 19x398.jpg.pagespeed.ic.GBLPyQN28R
    • xlhoas architectes architects own 2x351.jpg.pagespeed.ic.olvZ16a5T8
      xlhoas architectes architects own 2x351.jpg.pagespeed.ic.olvZ16a5T8
    • xlhoas architectes architects own 20x389.jpg.pagespeed.ic.oPtDM16EaM
      xlhoas architectes architects own 20x389.jpg.pagespeed.ic.oPtDM16EaM
    • xlhoas architectes architects own 3x426.jpg.pagespeed.ic.G16Fmsgn0m
      xlhoas architectes architects own 3x426.jpg.pagespeed.ic.G16Fmsgn0m
    • xlhoas architectes architects own 4x1394.jpg.pagespeed.ic.UiAAHFacYy
      xlhoas architectes architects own 4x1394.jpg.pagespeed.ic.UiAAHFacYy
    • xlhoas architectes architects own 4x673.jpg.pagespeed.ic.ZccsIzNw8c
      xlhoas architectes architects own 4x673.jpg.pagespeed.ic.ZccsIzNw8c
    • xlhoas architectes architects own 5x765.jpg.pagespeed.ic.wkEhRRPmV1
      xlhoas architectes architects own 5x765.jpg.pagespeed.ic.wkEhRRPmV1
    • xlhoas architectes architects own 9x378.jpg.pagespeed.ic.VAfxWFsfkq
      xlhoas architectes architects own 9x378.jpg.pagespeed.ic.VAfxWFsfkq
    lhoas architectes architects own 11x387
    lhoas architectes architects own 12x387
    lhoas architectes architects own 13x387
    lhoas architectes architects own 14x387
    lhoas architectes architects own 15x387
    lhoas architectes architects own 16x387
    lhoas architectes architects own 17x387
    lhoas architectes architects own 18x387
    lhoas architectes architects own 19x398
    lhoas architectes architects own 2x351
    lhoas architectes architects own 20x389
    lhoas architectes architects own 3x426
    lhoas architectes architects own 4x1394
    lhoas architectes architects own 5x765
    lhoas architectes architects own 6x789
    lhoas architectes architects own 7x378
    lhoas architectes architects own 8x378
    lhoas architectes architects own 9x378
    xlhoas architectes architects own 19x398.jpg.pagespeed.ic.GBLPyQN28R
    xlhoas architectes architects own 2x351.jpg.pagespeed.ic.olvZ16a5T8
    xlhoas architectes architects own 20x389.jpg.pagespeed.ic.oPtDM16EaM
    xlhoas architectes architects own 3x426.jpg.pagespeed.ic.G16Fmsgn0m
    xlhoas architectes architects own 4x1394.jpg.pagespeed.ic.UiAAHFacYy
    xlhoas architectes architects own 4x673.jpg.pagespeed.ic.ZccsIzNw8c
    xlhoas architectes architects own 5x765.jpg.pagespeed.ic.wkEhRRPmV1
    xlhoas architectes architects own 9x378.jpg.pagespeed.ic.VAfxWFsfkq
      • lhoas architectes architects own 11x387
      • lhoas architectes architects own 12x387
      • lhoas architectes architects own 13x387
      • lhoas architectes architects own 14x387
      • lhoas architectes architects own 15x387
      • lhoas architectes architects own 16x387
      • lhoas architectes architects own 17x387
      • lhoas architectes architects own 18x387
      • lhoas architectes architects own 19x398
      • lhoas architectes architects own 2x351
      • lhoas architectes architects own 20x389
      • lhoas architectes architects own 3x426
      • lhoas architectes architects own 4x1394
      • lhoas architectes architects own 5x765
      • lhoas architectes architects own 6x789
      • lhoas architectes architects own 7x378
      • lhoas architectes architects own 8x378
      • lhoas architectes architects own 9x378
      • xlhoas architectes architects own 19x398.jpg.pagespeed.ic.GBLPyQN28R
      • xlhoas architectes architects own 2x351.jpg.pagespeed.ic.olvZ16a5T8
      • xlhoas architectes architects own 20x389.jpg.pagespeed.ic.oPtDM16EaM
      • xlhoas architectes architects own 3x426.jpg.pagespeed.ic.G16Fmsgn0m
      • xlhoas architectes architects own 4x1394.jpg.pagespeed.ic.UiAAHFacYy
      • xlhoas architectes architects own 4x673.jpg.pagespeed.ic.ZccsIzNw8c
      • xlhoas architectes architects own 5x765.jpg.pagespeed.ic.wkEhRRPmV1
      • xlhoas architectes architects own 9x378.jpg.pagespeed.ic.VAfxWFsfkq

    Galerie Vincent Colet

    Simplifier l'espace pour lui faciliter la vie commerciale. En supprimant les éléments domestiques et décoratifs (cheminées, certaines moulures), la place est faite à des interventions qui mettent en valeur la configuration très particulière, longue et étroite du magasin.
    Cacher les installations techniques. Mais aussi les mettre en valeur par des découpes qui reprennent la géométrie des lignes courbes de la façade. Le faux plafond est siège d'ambiguïtés et joue avec l'identité du bâtiment existant, la revisitant, et donnant ainsi une identité particulière au rez-de-chaussée.

     

      : 65 m2

      : 15, Rue de la Régence, 1000, Bruxelles.

      : 41 000 €

      : 2004

      • architecture la cambre horta architecture pour quelque chose triennale 2x274
        architecture la cambre horta architecture pour quelque chose triennale 2x274
      • cover 2x1456
        cover 2x1456
      • lhoas architectes architects vincent colet gallery gallerie 2x378
        lhoas architectes architects vincent colet gallery gallerie 2x378
      • lhoas architectes architects vincent colet gallery gallerie 3x702
        lhoas architectes architects vincent colet gallery gallerie 3x702
      • lhoas architectes architects vincent colet gallery gallerie 5x378
        lhoas architectes architects vincent colet gallery gallerie 5x378
      • lhoas architectes architects vincent colet gallery gallerie 6x795
        lhoas architectes architects vincent colet gallery gallerie 6x795
      • lhoas architectes architects vincent colet gallery gallerie 7x769
        lhoas architectes architects vincent colet gallery gallerie 7x769
      • xarchitecture la cambre horta architecture pour quelque chose triennale 2x274.jpg.pagespeed.ic.NnmIJOUke6
        xarchitecture la cambre horta architecture pour quelque chose triennale 2x274.jpg.pagespeed.ic.NnmIJOUke6
      • xcover 2x1456.jpg.pagespeed.ic.tXwR9uHGKj
        xcover 2x1456.jpg.pagespeed.ic.tXwR9uHGKj
      • xlhoas architectes architects vincent colet gallery gallerie 1x366.jpg.pagespeed.ic.H5b20cuGgj
        xlhoas architectes architects vincent colet gallery gallerie 1x366.jpg.pagespeed.ic.H5b20cuGgj
      • xlhoas architectes architects vincent colet gallery gallerie 2x378.jpg.pagespeed.ic.9OlVbe4sAq
        xlhoas architectes architects vincent colet gallery gallerie 2x378.jpg.pagespeed.ic.9OlVbe4sAq
      • xlhoas architectes architects vincent colet gallery gallerie 3x702.jpg.pagespeed.ic.kLZliWM4ZK
        xlhoas architectes architects vincent colet gallery gallerie 3x702.jpg.pagespeed.ic.kLZliWM4ZK
      • xlhoas architectes architects vincent colet gallery gallerie 5x378.jpg.pagespeed.ic.eDZLem0Cp2
        xlhoas architectes architects vincent colet gallery gallerie 5x378.jpg.pagespeed.ic.eDZLem0Cp2
      • xlhoas architectes architects vincent colet gallery gallerie 6x795.jpg.pagespeed.ic. dpFMM1hiE
        xlhoas architectes architects vincent colet gallery gallerie 6x795.jpg.pagespeed.ic. dpFMM1hiE
      • xlhoas architectes architects vincent colet gallery gallerie 7x769.jpg.pagespeed.ic.nDoxNAHieu
        xlhoas architectes architects vincent colet gallery gallerie 7x769.jpg.pagespeed.ic.nDoxNAHieu
      architecture la cambre horta architecture pour quelque chose triennale 2x274
      cover 2x1456
      lhoas architectes architects vincent colet gallery gallerie 2x378
      lhoas architectes architects vincent colet gallery gallerie 3x702
      lhoas architectes architects vincent colet gallery gallerie 5x378
      lhoas architectes architects vincent colet gallery gallerie 6x795
      lhoas architectes architects vincent colet gallery gallerie 7x769
      xarchitecture la cambre horta architecture pour quelque chose triennale 2x274.jpg.pagespeed.ic.NnmIJOUke6
      xcover 2x1456.jpg.pagespeed.ic.tXwR9uHGKj
      xlhoas architectes architects vincent colet gallery gallerie 1x366.jpg.pagespeed.ic.H5b20cuGgj
      xlhoas architectes architects vincent colet gallery gallerie 2x378.jpg.pagespeed.ic.9OlVbe4sAq
      xlhoas architectes architects vincent colet gallery gallerie 3x702.jpg.pagespeed.ic.kLZliWM4ZK
      xlhoas architectes architects vincent colet gallery gallerie 5x378.jpg.pagespeed.ic.eDZLem0Cp2
      xlhoas architectes architects vincent colet gallery gallerie 6x795.jpg.pagespeed.ic. dpFMM1hiE
      xlhoas architectes architects vincent colet gallery gallerie 7x769.jpg.pagespeed.ic.nDoxNAHieu
        • architecture la cambre horta architecture pour quelque chose triennale 2x274
        • cover 2x1456
        • lhoas architectes architects vincent colet gallery gallerie 2x378
        • lhoas architectes architects vincent colet gallery gallerie 3x702
        • lhoas architectes architects vincent colet gallery gallerie 5x378
        • lhoas architectes architects vincent colet gallery gallerie 6x795
        • lhoas architectes architects vincent colet gallery gallerie 7x769
        • xarchitecture la cambre horta architecture pour quelque chose triennale 2x274.jpg.pagespeed.ic.NnmIJOUke6
        • xcover 2x1456.jpg.pagespeed.ic.tXwR9uHGKj
        • xlhoas architectes architects vincent colet gallery gallerie 1x366.jpg.pagespeed.ic.H5b20cuGgj
        • xlhoas architectes architects vincent colet gallery gallerie 2x378.jpg.pagespeed.ic.9OlVbe4sAq
        • xlhoas architectes architects vincent colet gallery gallerie 3x702.jpg.pagespeed.ic.kLZliWM4ZK
        • xlhoas architectes architects vincent colet gallery gallerie 5x378.jpg.pagespeed.ic.eDZLem0Cp2
        • xlhoas architectes architects vincent colet gallery gallerie 6x795.jpg.pagespeed.ic. dpFMM1hiE
        • xlhoas architectes architects vincent colet gallery gallerie 7x769.jpg.pagespeed.ic.nDoxNAHieu

      Page 4 sur 4

      • 1
      • 2
      • 3
      • 4

      Lhoas & Lhoas architects

      info@lhoas-lhoas.com
      62/11, Chaussée de Forest 1060, Bruxelles, Belgique
      +32 (0)2 372.08.75
      Facebook
      Instagram
      © 2006 - 2026 Designed and developped by La Missive
      • Architecture
        • Habitat
        • Usage Mixte
        • Bureau
        • Commercial
        • Culture
        • Scénographie
        • Chronologie
      • Design
        • Sur mesure
        • Meuble
        • Chronologie
      • Publications
        • Expositions
        • Presse
        • Conférences
        • Chronologie
      • A propos de nous