Lhoas & Lhoas
  • Architecture
    • Habitat
    • Usage Mixte
    • Bureau
    • Commercial
    • Culture
    • Scénographie
    • Chronologie
  • Design
    • Sur mesure
    • Meuble
    • Chronologie
  • Publications
    • Expositions
    • Presse
    • Conférences
    • Chronologie
  • A propos de nous
Lhoas & Lhoas

Sélectionnez votre langue

  • FR
  • EN
  1. Vous êtes ici :  
  2. Accueil
  3. Architecture
  4. Commercial

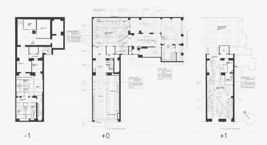
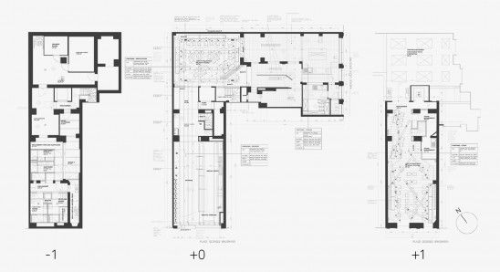
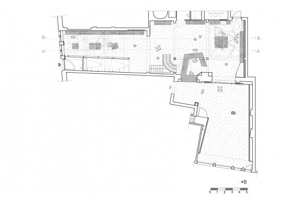
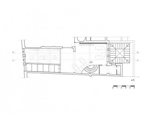
Gaudron

Transformation d'un restaurant-traiteur

"www.gaudron.be":http://www.gaudron.be/

    : Réalisé

    : 370 m2

    : 3, Place Georges Brugmann, 1050, Bruxelles

    : 175 000 €

    : 2011

    • bjm5119x365
      bjm5119x365
    • bjm5127x824
      bjm5127x824
    • bjm5139x365
      bjm5139x365
    • bjm5169x756
      bjm5169x756
    • bjm5169x365
      bjm5169x365
    • bjm5173x365
      bjm5173x365
    • bjm5175x824
      bjm5175x824
    • bjm5183x824
      bjm5183x824
    • bjm5189x824
      bjm5189x824
    • bjm5203x824
      bjm5203x824
    • gaudron lhoas ref 6x149
      gaudron lhoas ref 6x149
    • gaudron lhoas ref 8x298
      gaudron lhoas ref 8x298
    • xbjm5169x756.jpg.pagespeed.ic.x7CqRGqIn9
      xbjm5169x756.jpg.pagespeed.ic.x7CqRGqIn9
    • xbjm5169x365.jpg.pagespeed.ic.xFu3XzyxOV
      xbjm5169x365.jpg.pagespeed.ic.xFu3XzyxOV
    • xbjm5173x365.jpg.pagespeed.ic.a9hsEMs4BR
      xbjm5173x365.jpg.pagespeed.ic.a9hsEMs4BR
    • xbjm5175x824.jpg.pagespeed.ic.QXE kaoBpf
      xbjm5175x824.jpg.pagespeed.ic.QXE kaoBpf
    • xbjm5183x824.jpg.pagespeed.ic.sy6Kclp4Oo
      xbjm5183x824.jpg.pagespeed.ic.sy6Kclp4Oo
    • xgaudron lhoas ref 6x149.jpg.pagespeed.ic.H5hPADUb8U
      xgaudron lhoas ref 6x149.jpg.pagespeed.ic.H5hPADUb8U
    • xgaudron lhoas ref 7x386.jpg.pagespeed.ic.q PIujKq c
      xgaudron lhoas ref 7x386.jpg.pagespeed.ic.q PIujKq c
    • xgaudron lhoas ref 848x298.jpg.pagespeed.ic.eE KfRqm
      xgaudron lhoas ref 848x298.jpg.pagespeed.ic.eE KfRqm
    bjm5119x365
    bjm5127x824
    bjm5139x365
    bjm5169x756
    bjm5169x365
    bjm5173x365
    bjm5175x824
    bjm5183x824
    bjm5189x824
    bjm5203x824
    gaudron lhoas ref 6x149
    gaudron lhoas ref 8x298
    xbjm5169x756.jpg.pagespeed.ic.x7CqRGqIn9
    xbjm5169x365.jpg.pagespeed.ic.xFu3XzyxOV
    xbjm5173x365.jpg.pagespeed.ic.a9hsEMs4BR
    xbjm5175x824.jpg.pagespeed.ic.QXE kaoBpf
    xbjm5183x824.jpg.pagespeed.ic.sy6Kclp4Oo
    xgaudron lhoas ref 6x149.jpg.pagespeed.ic.H5hPADUb8U
    xgaudron lhoas ref 7x386.jpg.pagespeed.ic.q PIujKq c
    xgaudron lhoas ref 848x298.jpg.pagespeed.ic.eE KfRqm
      • bjm5119x365
      • bjm5127x824
      • bjm5139x365
      • bjm5169x756
      • bjm5169x365
      • bjm5173x365
      • bjm5175x824
      • bjm5183x824
      • bjm5189x824
      • bjm5203x824
      • gaudron lhoas ref 6x149
      • gaudron lhoas ref 8x298
      • xbjm5169x756.jpg.pagespeed.ic.x7CqRGqIn9
      • xbjm5169x365.jpg.pagespeed.ic.xFu3XzyxOV
      • xbjm5173x365.jpg.pagespeed.ic.a9hsEMs4BR
      • xbjm5175x824.jpg.pagespeed.ic.QXE kaoBpf
      • xbjm5183x824.jpg.pagespeed.ic.sy6Kclp4Oo
      • xgaudron lhoas ref 6x149.jpg.pagespeed.ic.H5hPADUb8U
      • xgaudron lhoas ref 7x386.jpg.pagespeed.ic.q PIujKq c
      • xgaudron lhoas ref 848x298.jpg.pagespeed.ic.eE KfRqm

    Maralex

    Développement du magasin Maralex.

    "www.maralex-kids.com":http://www.maralex-kids.com

      : 240 m2

      : 1, rue de la Pompe , 75116, Paris, France.

      : 251 000 €

      : 2011

      • lhoas architectes architects maralex retail paris 3x391
        lhoas architectes architects maralex retail paris 3x391
      • maralex00x365
        maralex00x365
      • maralex01x365
        maralex01x365
      • maralex02x365
        maralex02x365
      • maralex05x365
        maralex05x365
      • maralex06x365
        maralex06x365
      • maralex07x365
        maralex07x365
      • maralex13x822
        maralex13x822
      • maralex19x365
        maralex19x365
      • maralex21x365
        maralex21x365
      • maralex22x365
        maralex22x365
      • maralex24x365
        maralex24x365
      • maralex25x822
        maralex25x822
      • maralex28x756
        maralex28x756
      • xlhoas architectes architects maralex retail paris 1x263.jpg.pagespeed.ic.8Z8g5 fHwo
        xlhoas architectes architects maralex retail paris 1x263.jpg.pagespeed.ic.8Z8g5 fHwo
      • xlhoas architectes architects maralex retail paris 2x353.jpg.pagespeed.ic.KUlJJUi7ag
        xlhoas architectes architects maralex retail paris 2x353.jpg.pagespeed.ic.KUlJJUi7ag
      • xlhoas architectes architects maralex retail paris 3x391.jpg.pagespeed.ic.6tv06NMnXU
        xlhoas architectes architects maralex retail paris 3x391.jpg.pagespeed.ic.6tv06NMnXU
      • xmaralex00x365.jpg.pagespeed.ic.yod5AVHs1A
        xmaralex00x365.jpg.pagespeed.ic.yod5AVHs1A
      • xmaralex01x365.jpg.pagespeed.ic.L5YWvcoXmI
        xmaralex01x365.jpg.pagespeed.ic.L5YWvcoXmI
      • xmaralex02x365.jpg.pagespeed.ic. 7HmllDUqb
        xmaralex02x365.jpg.pagespeed.ic. 7HmllDUqb
      • xmaralex03 2x822.jpg.pagespeed.ic.6DaTYMxQAl
        xmaralex03 2x822.jpg.pagespeed.ic.6DaTYMxQAl
      • xmaralex05x365.jpg.pagespeed.ic.w9bDRVem5o
        xmaralex05x365.jpg.pagespeed.ic.w9bDRVem5o
      • xmaralex06x365.jpg.pagespeed.ic.W jupuI 7x
        xmaralex06x365.jpg.pagespeed.ic.W jupuI 7x
      • xmaralex07x365.jpg.pagespeed.ic.f3TXH0SO86
        xmaralex07x365.jpg.pagespeed.ic.f3TXH0SO86
      • xmaralex08x365.jpg.pagespeed.ic.kCT1YyXDzp
        xmaralex08x365.jpg.pagespeed.ic.kCT1YyXDzp
      • xmaralex13x822.jpg.pagespeed.ic.LVUGI3nC 6
        xmaralex13x822.jpg.pagespeed.ic.LVUGI3nC 6
      • xmaralex19x365.jpg.pagespeed.ic.PZtl3VZ NQ
        xmaralex19x365.jpg.pagespeed.ic.PZtl3VZ NQ
      • xmaralex21x365.jpg.pagespeed.ic.1tNplI3Xnk
        xmaralex21x365.jpg.pagespeed.ic.1tNplI3Xnk
      • xmaralex22x365.jpg.pagespeed.ic.h31Px8stwb
        xmaralex22x365.jpg.pagespeed.ic.h31Px8stwb
      • xmaralex24x365.jpg.pagespeed.ic.agWOLxkF4u
        xmaralex24x365.jpg.pagespeed.ic.agWOLxkF4u
      • xmaralex25x822.jpg.pagespeed.ic.YtHRqAEkED
        xmaralex25x822.jpg.pagespeed.ic.YtHRqAEkED
      • xmaralex28x756.jpg.pagespeed.ic.3g9gXjoTNV
        xmaralex28x756.jpg.pagespeed.ic.3g9gXjoTNV
      • xmaralex28x365.jpg.pagespeed.ic.vggls YYXL
        xmaralex28x365.jpg.pagespeed.ic.vggls YYXL
      lhoas architectes architects maralex retail paris 3x391
      maralex00x365
      maralex01x365
      maralex02x365
      maralex05x365
      maralex06x365
      maralex07x365
      maralex13x822
      maralex19x365
      maralex21x365
      maralex22x365
      maralex24x365
      maralex25x822
      maralex28x756
      xlhoas architectes architects maralex retail paris 1x263.jpg.pagespeed.ic.8Z8g5 fHwo
      xlhoas architectes architects maralex retail paris 2x353.jpg.pagespeed.ic.KUlJJUi7ag
      xlhoas architectes architects maralex retail paris 3x391.jpg.pagespeed.ic.6tv06NMnXU
      xmaralex00x365.jpg.pagespeed.ic.yod5AVHs1A
      xmaralex01x365.jpg.pagespeed.ic.L5YWvcoXmI
      xmaralex02x365.jpg.pagespeed.ic. 7HmllDUqb
      xmaralex03 2x822.jpg.pagespeed.ic.6DaTYMxQAl
      xmaralex05x365.jpg.pagespeed.ic.w9bDRVem5o
      xmaralex06x365.jpg.pagespeed.ic.W jupuI 7x
      xmaralex07x365.jpg.pagespeed.ic.f3TXH0SO86
      xmaralex08x365.jpg.pagespeed.ic.kCT1YyXDzp
      xmaralex13x822.jpg.pagespeed.ic.LVUGI3nC 6
      xmaralex19x365.jpg.pagespeed.ic.PZtl3VZ NQ
      xmaralex21x365.jpg.pagespeed.ic.1tNplI3Xnk
      xmaralex22x365.jpg.pagespeed.ic.h31Px8stwb
      xmaralex24x365.jpg.pagespeed.ic.agWOLxkF4u
      xmaralex25x822.jpg.pagespeed.ic.YtHRqAEkED
      xmaralex28x756.jpg.pagespeed.ic.3g9gXjoTNV
      xmaralex28x365.jpg.pagespeed.ic.vggls YYXL
        • lhoas architectes architects maralex retail paris 3x391
        • maralex00x365
        • maralex01x365
        • maralex02x365
        • maralex05x365
        • maralex06x365
        • maralex07x365
        • maralex13x822
        • maralex19x365
        • maralex21x365
        • maralex22x365
        • maralex24x365
        • maralex25x822
        • maralex28x756
        • xlhoas architectes architects maralex retail paris 1x263.jpg.pagespeed.ic.8Z8g5 fHwo
        • xlhoas architectes architects maralex retail paris 2x353.jpg.pagespeed.ic.KUlJJUi7ag
        • xlhoas architectes architects maralex retail paris 3x391.jpg.pagespeed.ic.6tv06NMnXU
        • xmaralex00x365.jpg.pagespeed.ic.yod5AVHs1A
        • xmaralex01x365.jpg.pagespeed.ic.L5YWvcoXmI
        • xmaralex02x365.jpg.pagespeed.ic. 7HmllDUqb
        • xmaralex03 2x822.jpg.pagespeed.ic.6DaTYMxQAl
        • xmaralex05x365.jpg.pagespeed.ic.w9bDRVem5o
        • xmaralex06x365.jpg.pagespeed.ic.W jupuI 7x
        • xmaralex07x365.jpg.pagespeed.ic.f3TXH0SO86
        • xmaralex08x365.jpg.pagespeed.ic.kCT1YyXDzp
        • xmaralex13x822.jpg.pagespeed.ic.LVUGI3nC 6
        • xmaralex19x365.jpg.pagespeed.ic.PZtl3VZ NQ
        • xmaralex21x365.jpg.pagespeed.ic.1tNplI3Xnk
        • xmaralex22x365.jpg.pagespeed.ic.h31Px8stwb
        • xmaralex24x365.jpg.pagespeed.ic.agWOLxkF4u
        • xmaralex25x822.jpg.pagespeed.ic.YtHRqAEkED
        • xmaralex28x756.jpg.pagespeed.ic.3g9gXjoTNV
        • xmaralex28x365.jpg.pagespeed.ic.vggls YYXL

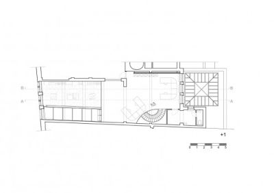
      Stadswinkel Antwerpen

      Nous avons transformé la boutique dédiée à la ville d’Anvers dans le centre historique. Une identité spatiale a été créée afin de proposer une nouvelle manière de vendre et de présenter les différents produits.

        : Réalisé

        : 370 m2

        : Grote Markt, 11, 2000, Antwerpen

        : 181 000 €

        : 2011

        • stadswinkel antwerpen lhoas chantier 11 2x411
          stadswinkel antwerpen lhoas chantier 11 2x411
        • stadswinkel antwerpen lhoas chantier 14x731
          stadswinkel antwerpen lhoas chantier 14x731
        • stadswinkel antwerpen lhoas chantier 16x411
          stadswinkel antwerpen lhoas chantier 16x411
        • stadswinkel antwerpen lhoas chantier 18x411
          stadswinkel antwerpen lhoas chantier 18x411
        • stadswinkel antwerpen lhoas chantier 21x411
          stadswinkel antwerpen lhoas chantier 21x411
        • stadswinkel antwerpen lhoas chantier 7x411
          stadswinkel antwerpen lhoas chantier 7x411
        • stadswinkel antwerpen lhoas chantier 9x731
          stadswinkel antwerpen lhoas chantier 9x731
        • stadswinkel antwerpen lhoas cover 2x852
          stadswinkel antwerpen lhoas cover 2x852
        • stadswinkel antwerpen lhoas cover ref modelx300
          stadswinkel antwerpen lhoas cover ref modelx300
        • stadswinkel antwerpen lhoas opening 4x308
          stadswinkel antwerpen lhoas opening 4x308
        • stadswinkel antwerpen lhoas plan 2x387
          stadswinkel antwerpen lhoas plan 2x387
        • stadswinkel antwerpen lhoas plan 3x387
          stadswinkel antwerpen lhoas plan 3x387
        • stadswinkel antwerpen lhoas plan 4x387
          stadswinkel antwerpen lhoas plan 4x387
        • xstadswinkel antwerpen lhoas chantier 3x411.jpg.pagespeed.ic.QqbKb5HPK7
          xstadswinkel antwerpen lhoas chantier 3x411.jpg.pagespeed.ic.QqbKb5HPK7
        • xstadswinkel antwerpen lhoas cover 2x852.jpg.pagespeed.ic.90RwbIQm c
          xstadswinkel antwerpen lhoas cover 2x852.jpg.pagespeed.ic.90RwbIQm c
        stadswinkel antwerpen lhoas chantier 11 2x411
        stadswinkel antwerpen lhoas chantier 14x731
        stadswinkel antwerpen lhoas chantier 16x411
        stadswinkel antwerpen lhoas chantier 18x411
        stadswinkel antwerpen lhoas chantier 21x411
        stadswinkel antwerpen lhoas chantier 7x411
        stadswinkel antwerpen lhoas chantier 9x731
        stadswinkel antwerpen lhoas cover 2x852
        stadswinkel antwerpen lhoas cover ref modelx300
        stadswinkel antwerpen lhoas opening 4x308
        stadswinkel antwerpen lhoas plan 2x387
        stadswinkel antwerpen lhoas plan 3x387
        stadswinkel antwerpen lhoas plan 4x387
        xstadswinkel antwerpen lhoas chantier 3x411.jpg.pagespeed.ic.QqbKb5HPK7
        xstadswinkel antwerpen lhoas cover 2x852.jpg.pagespeed.ic.90RwbIQm c
          • stadswinkel antwerpen lhoas chantier 11 2x411
          • stadswinkel antwerpen lhoas chantier 14x731
          • stadswinkel antwerpen lhoas chantier 16x411
          • stadswinkel antwerpen lhoas chantier 18x411
          • stadswinkel antwerpen lhoas chantier 21x411
          • stadswinkel antwerpen lhoas chantier 7x411
          • stadswinkel antwerpen lhoas chantier 9x731
          • stadswinkel antwerpen lhoas cover 2x852
          • stadswinkel antwerpen lhoas cover ref modelx300
          • stadswinkel antwerpen lhoas opening 4x308
          • stadswinkel antwerpen lhoas plan 2x387
          • stadswinkel antwerpen lhoas plan 3x387
          • stadswinkel antwerpen lhoas plan 4x387
          • xstadswinkel antwerpen lhoas chantier 3x411.jpg.pagespeed.ic.QqbKb5HPK7
          • xstadswinkel antwerpen lhoas cover 2x852.jpg.pagespeed.ic.90RwbIQm c

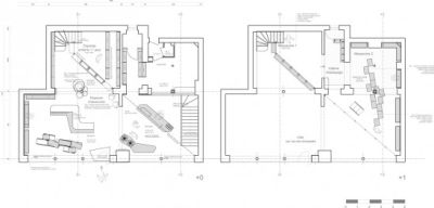
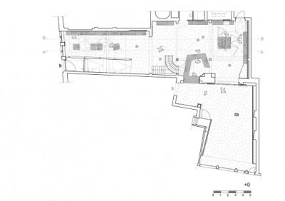
        Candide librairie

        Le principal enjeu de ce projet était de ne pas dénaturer cette librairie à laquelle les habitants du quartier étaient très attachés. Il fallait faire évoluer l'espace vers quelque chose de plus fonctionnel et aéré sans trahir l'atmosphère du lieu.
        La transformation a donc été pensée par petites touches. L'ensemble s'apréhende comme une somme d'interventions ponctuelles, l'espace a été décloisonné, une mezzanine relie l'étage et le rez-de-chaussée. Le volume de la librairie a été complètement dépouillé révélant l'intérêt de certains éléments anciens qui ont été conservés.
        Le mobilier sur mesure a été pensé en bois naturel, travaillé de manière très simple et en fines feuilles de métal laqué évoquant celles du papier. De cette palette de prises de position naît un ensemble unitaire bien que contrasté, désordonné mais contrôlé, brut et soigné.

         

          : Réalisé

          : 210 m2

          : 261 000 €

          : 2010

          : 354 photographers

          • lhoas architectes architects candide librairie library maxime delvaux 10x822
            lhoas architectes architects candide librairie library maxime delvaux 10x822
          • lhoas architectes architects candide librairie library maxime delvaux 11x365
            lhoas architectes architects candide librairie library maxime delvaux 11x365
          • lhoas architectes architects candide librairie library maxime delvaux 12x365
            lhoas architectes architects candide librairie library maxime delvaux 12x365
          • lhoas architectes architects candide librairie library maxime delvaux 13x365
            lhoas architectes architects candide librairie library maxime delvaux 13x365
          • lhoas architectes architects candide librairie library maxime delvaux 14x361
            lhoas architectes architects candide librairie library maxime delvaux 14x361
          • lhoas architectes architects candide librairie library maxime delvaux 15x365
            lhoas architectes architects candide librairie library maxime delvaux 15x365
          • lhoas architectes architects candide librairie library maxime delvaux 16x365
            lhoas architectes architects candide librairie library maxime delvaux 16x365
          • lhoas architectes architects candide librairie library maxime delvaux 17x800
            lhoas architectes architects candide librairie library maxime delvaux 17x800
          • lhoas architectes architects candide librairie library maxime delvaux 18x825
            lhoas architectes architects candide librairie library maxime delvaux 18x825
          • lhoas architectes architects candide librairie library maxime delvaux 19x365
            lhoas architectes architects candide librairie library maxime delvaux 19x365
          • lhoas architectes architects candide librairie library maxime delvaux 2x822
            lhoas architectes architects candide librairie library maxime delvaux 2x822
          • lhoas architectes architects candide librairie library maxime delvaux 20x1739
            lhoas architectes architects candide librairie library maxime delvaux 20x1739
          • lhoas architectes architects candide librairie library maxime delvaux 20x839
            lhoas architectes architects candide librairie library maxime delvaux 20x839
          • lhoas architectes architects candide librairie library maxime delvaux 21x365
            lhoas architectes architects candide librairie library maxime delvaux 21x365
          • lhoas architectes architects candide librairie library maxime delvaux 3x365
            lhoas architectes architects candide librairie library maxime delvaux 3x365
          • lhoas architectes architects candide librairie library maxime delvaux 4x822
            lhoas architectes architects candide librairie library maxime delvaux 4x822
          • lhoas architectes architects candide librairie library maxime delvaux 5x365
            lhoas architectes architects candide librairie library maxime delvaux 5x365
          • lhoas architectes architects candide librairie library maxime delvaux 6x822
            lhoas architectes architects candide librairie library maxime delvaux 6x822
          • lhoas architectes architects candide librairie library maxime delvaux 7x822
            lhoas architectes architects candide librairie library maxime delvaux 7x822
          • lhoas architectes architects candide librairie library maxime delvaux 8x365
            lhoas architectes architects candide librairie library maxime delvaux 8x365
          • lhoas architectes architects candide librairie library maxime delvaux 9x822
            lhoas architectes architects candide librairie library maxime delvaux 9x822
          • xlhoas architectes architects candide librairie library maxime delvaux 0x387.jpg.pagespeed.ic.iiImsKnxDg
            xlhoas architectes architects candide librairie library maxime delvaux 0x387.jpg.pagespeed.ic.iiImsKnxDg
          • xlhoas architectes architects candide librairie library maxime delvaux 1x822.jpg.pagespeed.ic.kakB4UP qY
            xlhoas architectes architects candide librairie library maxime delvaux 1x822.jpg.pagespeed.ic.kakB4UP qY
          • xlhoas architectes architects candide librairie library maxime delvaux 2x822.jpg.pagespeed.ic.hkHwyxmU1K
            xlhoas architectes architects candide librairie library maxime delvaux 2x822.jpg.pagespeed.ic.hkHwyxmU1K
          • xlhoas architectes architects candide librairie library maxime delvaux 20x1739.jpg.pagespeed.ic.kGWqA7Nu0e
            xlhoas architectes architects candide librairie library maxime delvaux 20x1739.jpg.pagespeed.ic.kGWqA7Nu0e
          • xlhoas architectes architects candide librairie library maxime delvaux 22x233.jpg.pagespeed.ic. IXjbmMQem
            xlhoas architectes architects candide librairie library maxime delvaux 22x233.jpg.pagespeed.ic. IXjbmMQem
          • xlhoas architectes architects candide librairie library maxime delvaux 23x309.jpg.pagespeed.ic.6KwRvCOaBL
            xlhoas architectes architects candide librairie library maxime delvaux 23x309.jpg.pagespeed.ic.6KwRvCOaBL
          lhoas architectes architects candide librairie library maxime delvaux 10x822
          lhoas architectes architects candide librairie library maxime delvaux 11x365
          lhoas architectes architects candide librairie library maxime delvaux 12x365
          lhoas architectes architects candide librairie library maxime delvaux 13x365
          lhoas architectes architects candide librairie library maxime delvaux 14x361
          lhoas architectes architects candide librairie library maxime delvaux 15x365
          lhoas architectes architects candide librairie library maxime delvaux 16x365
          lhoas architectes architects candide librairie library maxime delvaux 17x800
          lhoas architectes architects candide librairie library maxime delvaux 18x825
          lhoas architectes architects candide librairie library maxime delvaux 19x365
          lhoas architectes architects candide librairie library maxime delvaux 2x822
          lhoas architectes architects candide librairie library maxime delvaux 20x1739
          lhoas architectes architects candide librairie library maxime delvaux 20x839
          lhoas architectes architects candide librairie library maxime delvaux 21x365
          lhoas architectes architects candide librairie library maxime delvaux 3x365
          lhoas architectes architects candide librairie library maxime delvaux 4x822
          lhoas architectes architects candide librairie library maxime delvaux 5x365
          lhoas architectes architects candide librairie library maxime delvaux 6x822
          lhoas architectes architects candide librairie library maxime delvaux 7x822
          lhoas architectes architects candide librairie library maxime delvaux 8x365
          lhoas architectes architects candide librairie library maxime delvaux 9x822
          xlhoas architectes architects candide librairie library maxime delvaux 0x387.jpg.pagespeed.ic.iiImsKnxDg
          xlhoas architectes architects candide librairie library maxime delvaux 1x822.jpg.pagespeed.ic.kakB4UP qY
          xlhoas architectes architects candide librairie library maxime delvaux 2x822.jpg.pagespeed.ic.hkHwyxmU1K
          xlhoas architectes architects candide librairie library maxime delvaux 20x1739.jpg.pagespeed.ic.kGWqA7Nu0e
          xlhoas architectes architects candide librairie library maxime delvaux 22x233.jpg.pagespeed.ic. IXjbmMQem
          xlhoas architectes architects candide librairie library maxime delvaux 23x309.jpg.pagespeed.ic.6KwRvCOaBL
            • lhoas architectes architects candide librairie library maxime delvaux 10x822
            • lhoas architectes architects candide librairie library maxime delvaux 11x365
            • lhoas architectes architects candide librairie library maxime delvaux 12x365
            • lhoas architectes architects candide librairie library maxime delvaux 13x365
            • lhoas architectes architects candide librairie library maxime delvaux 14x361
            • lhoas architectes architects candide librairie library maxime delvaux 15x365
            • lhoas architectes architects candide librairie library maxime delvaux 16x365
            • lhoas architectes architects candide librairie library maxime delvaux 17x800
            • lhoas architectes architects candide librairie library maxime delvaux 18x825
            • lhoas architectes architects candide librairie library maxime delvaux 19x365
            • lhoas architectes architects candide librairie library maxime delvaux 2x822
            • lhoas architectes architects candide librairie library maxime delvaux 20x1739
            • lhoas architectes architects candide librairie library maxime delvaux 20x839
            • lhoas architectes architects candide librairie library maxime delvaux 21x365
            • lhoas architectes architects candide librairie library maxime delvaux 3x365
            • lhoas architectes architects candide librairie library maxime delvaux 4x822
            • lhoas architectes architects candide librairie library maxime delvaux 5x365
            • lhoas architectes architects candide librairie library maxime delvaux 6x822
            • lhoas architectes architects candide librairie library maxime delvaux 7x822
            • lhoas architectes architects candide librairie library maxime delvaux 8x365
            • lhoas architectes architects candide librairie library maxime delvaux 9x822
            • xlhoas architectes architects candide librairie library maxime delvaux 0x387.jpg.pagespeed.ic.iiImsKnxDg
            • xlhoas architectes architects candide librairie library maxime delvaux 1x822.jpg.pagespeed.ic.kakB4UP qY
            • xlhoas architectes architects candide librairie library maxime delvaux 2x822.jpg.pagespeed.ic.hkHwyxmU1K
            • xlhoas architectes architects candide librairie library maxime delvaux 20x1739.jpg.pagespeed.ic.kGWqA7Nu0e
            • xlhoas architectes architects candide librairie library maxime delvaux 22x233.jpg.pagespeed.ic. IXjbmMQem
            • xlhoas architectes architects candide librairie library maxime delvaux 23x309.jpg.pagespeed.ic.6KwRvCOaBL

          Bellerose Namur

          Développement du magasin Bellerose à Namur.

          Les murs mis à nu, dépouillés révèlent une superposition de couches et d'éléments décoratifs témoins des transformations successives du magasin. Sur ces parois brutes est superposé notre intervention. Un système de structures et de boîtes en bois présentent les vêtements avec beaucoup de simplicité. Des détails très simples et très propres qui s'effacent presque derrière la richesses des étoffes présentées.

          Les éléments de mobilier, comme les miroirs et les cabines, sont mobiles. De simples structures tubulaires en métal plié sur roulettes se baladent dans le magasin en fonction des besoins.

          "www.bellerose.be":http://www.bellerose.be/

            : Réalisé

            : 110 m2

            : 33, Rue Saint-Jacques, 5000, Namur.

            : 2008

            • lhoas architectes architects bellerose namur retail 10x821
              lhoas architectes architects bellerose namur retail 10x821
            • lhoas architectes architects bellerose namur retail 11x821
              lhoas architectes architects bellerose namur retail 11x821
            • lhoas architectes architects bellerose namur retail 12x826
              lhoas architectes architects bellerose namur retail 12x826
            • lhoas architectes architects bellerose namur retail 2x363
              lhoas architectes architects bellerose namur retail 2x363
            • lhoas architectes architects bellerose namur retail 3x808
              lhoas architectes architects bellerose namur retail 3x808
            • lhoas architectes architects bellerose namur retail 4x831
              lhoas architectes architects bellerose namur retail 4x831
            • lhoas architectes architects bellerose namur retail 5x365
              lhoas architectes architects bellerose namur retail 5x365
            • lhoas architectes architects bellerose namur retail 6x821
              lhoas architectes architects bellerose namur retail 6x821
            • lhoas architectes architects bellerose namur retail 7x821
              lhoas architectes architects bellerose namur retail 7x821
            • lhoas architectes architects bellerose namur retail 8x352
              lhoas architectes architects bellerose namur retail 8x352
            • lhoas architectes architects bellerose namur retail 9x349
              lhoas architectes architects bellerose namur retail 9x349
            • lydie 8225x1200
              lydie 8225x1200
            • lydie 8225x655
              lydie 8225x655
            • xlhoas architectes architects bellerose namur retail 2x363.jpg.pagespeed.ic.9uKwyyyJBa
              xlhoas architectes architects bellerose namur retail 2x363.jpg.pagespeed.ic.9uKwyyyJBa
            • xlydie 8225x1200.jpg.pagespeed.ic.Z7lnDhcnLa
              xlydie 8225x1200.jpg.pagespeed.ic.Z7lnDhcnLa
            • xlydie 8225x655.jpg.pagespeed.ic.ZEfcEZQIg1
              xlydie 8225x655.jpg.pagespeed.ic.ZEfcEZQIg1
            lhoas architectes architects bellerose namur retail 10x821
            lhoas architectes architects bellerose namur retail 11x821
            lhoas architectes architects bellerose namur retail 12x826
            lhoas architectes architects bellerose namur retail 2x363
            lhoas architectes architects bellerose namur retail 3x808
            lhoas architectes architects bellerose namur retail 4x831
            lhoas architectes architects bellerose namur retail 5x365
            lhoas architectes architects bellerose namur retail 6x821
            lhoas architectes architects bellerose namur retail 7x821
            lhoas architectes architects bellerose namur retail 8x352
            lhoas architectes architects bellerose namur retail 9x349
            lydie 8225x1200
            lydie 8225x655
            xlhoas architectes architects bellerose namur retail 2x363.jpg.pagespeed.ic.9uKwyyyJBa
            xlydie 8225x1200.jpg.pagespeed.ic.Z7lnDhcnLa
            xlydie 8225x655.jpg.pagespeed.ic.ZEfcEZQIg1
              • lhoas architectes architects bellerose namur retail 10x821
              • lhoas architectes architects bellerose namur retail 11x821
              • lhoas architectes architects bellerose namur retail 12x826
              • lhoas architectes architects bellerose namur retail 2x363
              • lhoas architectes architects bellerose namur retail 3x808
              • lhoas architectes architects bellerose namur retail 4x831
              • lhoas architectes architects bellerose namur retail 5x365
              • lhoas architectes architects bellerose namur retail 6x821
              • lhoas architectes architects bellerose namur retail 7x821
              • lhoas architectes architects bellerose namur retail 8x352
              • lhoas architectes architects bellerose namur retail 9x349
              • lydie 8225x1200
              • lydie 8225x655
              • xlhoas architectes architects bellerose namur retail 2x363.jpg.pagespeed.ic.9uKwyyyJBa
              • xlydie 8225x1200.jpg.pagespeed.ic.Z7lnDhcnLa
              • xlydie 8225x655.jpg.pagespeed.ic.ZEfcEZQIg1

            Plus d'articles...

            1. Own
            2. Galerie Vincent Colet

            Page 3 sur 4

            • 1
            • 2
            • 3
            • 4

            Lhoas & Lhoas architects

            info@lhoas-lhoas.com
            62/11, Chaussée de Forest 1060, Bruxelles, Belgique
            +32 (0)2 372.08.75
            Facebook
            Instagram
            © 2006 - 2026 Designed and developped by La Missive
            • Architecture
              • Habitat
              • Usage Mixte
              • Bureau
              • Commercial
              • Culture
              • Scénographie
              • Chronologie
            • Design
              • Sur mesure
              • Meuble
              • Chronologie
            • Publications
              • Expositions
              • Presse
              • Conférences
              • Chronologie
            • A propos de nous