Immeuble Vanhaerents

Rénovation/Construction de 13 logements + commerces

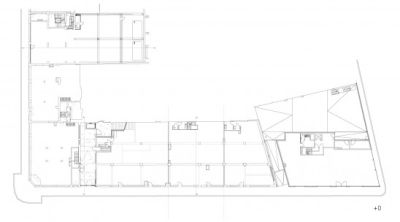
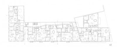
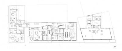
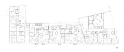
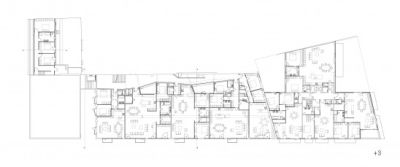
Projet d'une quarantaine de logements pour le compte d'un promoteur immobilier. Au sein d'un ensemble de 3 immeubles existants aux caractéristiques très différentes, l'ensemble se déploie le long de 3 rues (Fabriques/Senne/Anneessens). Les immeubles existants présentaient des caractéristiques hétéroclites tant au point de vue de leur gabarit, de leurs fonctions, de leur typologie et de leur style. Les logements qui y sont intégrés respectent les qualités existantes – structure, spatialité, vues, lumière, enchaînements, hiérarchies, standing -. Le projet proposait de rehausser l'immeuble d'angle existant, bâtiment néoclassique, de 2 niveaux afin de rétablir l'ordre urbain. Cette rehausse consiste en un volume sombre, rappel du nouvel immeuble qui se trouve à l'angle opposé du complexe, et de la rehausse du bâtiment central. En effet toutes les nouvelles parties sont caractérisées par la couleur noire afin d'être clairement identifiées. Une série d'éléments (balcons, volumes, immeubles ...) greffés/rapportés de tailles, de couleur et d'échelles différentes animent/complètent/rythment/unifient cette portion d’îlot hétéroclite. Le nouvel immeuble d'angle est l'articulation de 2 rues aux statuts assez différents (Fabriques et Anneessens) de même que l'entrée de la Fondation d'art privée voisine. Il propose un ensemble articulé/désarticulé qui forme la rotule entre ces divers ordres. Il souligne l'alignement d'un côté et pas de l'autre. Il respecte le gabarit de ce quartier mais en proposant une architecture résolument contemporaine.

Surface : 9.520 m² (logements) + 500 m² (commerces)