Lhoas & Lhoas
  • Architecture
    • Habitat
    • Usage Mixte
    • Bureau
    • Commercial
    • Culture
    • Scénographie
    • Chronologie
  • Design
    • Sur mesure
    • Meuble
    • Chronologie
  • Publications
    • Expositions
    • Presse
    • Conférences
    • Chronologie
  • A propos de nous
Lhoas & Lhoas

Sélectionnez votre langue

  • FR
  • EN
  1. Vous êtes ici :  
  2. Accueil
  3. Architecture
  4. Scénographie

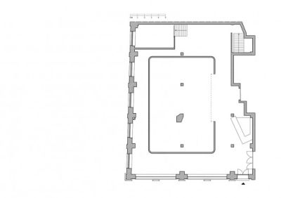
Galerie Erna Hecey

Comment transformer un rez-de-chaussée industriel en une galerie d'art contemporain avec des moyens limités ?

Le projet s'incarne ici dans l'insertion, délicate et brute à la fois, d'objets autonomes dans un espace de type industriel « réduit » à ses fondamentaux structurels, fonctionnels et techniques. Ces objets, ces volumes, sont destinés à traiter le syndrome du White Cube : jusqu'où la neutralité architecturale (qui n'existe pas) ne fait-elle pas ombre à la faculté des œuvres d'art à exister dans un lieu? Cet aspect est à la fois renforcé et effacé par la continuité mur:mur, mur:plafond, de même que par la taille du volume principal. Trop grand, son autonomie en tant qu'objet est contrainte par son échelle. En outre, les volumes tiennent compte de la spécificité du lieu et sont composés, articulés pour offrir de multiples niveaux de lecture de l'espace, de la lumière, des textures, du bâtiment existant, du rapport intérieur/extérieur, de l'exposition d'oeuvre d'art ... dans un rapport ambigu qui détourne les 2 modèles « convenus » de ce type de projet : le loft industriel peint en blanc et le cube d'exposition « idéal ».

    : Réalisé

    : 340 m2

    : 1c, Rue des Fabriques, Bruxelles.

    : 60 000 €

    : 2005

    • lhoas architectes architects erna hecey galery gallerie 2x387
      lhoas architectes architects erna hecey galery gallerie 2x387
    • lhoas architectes architects erna hecey galery gallerie 3x375
      lhoas architectes architects erna hecey galery gallerie 3x375
    • lhoas architectes architects erna hecey galery gallerie 4x895
      lhoas architectes architects erna hecey galery gallerie 4x895
    • lhoas architectes architects erna hecey galery gallerie 4x432
      lhoas architectes architects erna hecey galery gallerie 4x432
    • lhoas architectes architects erna hecey galery gallerie 5x414
      lhoas architectes architects erna hecey galery gallerie 5x414
    • lhoas architectes architects erna hecey galery gallerie 6x363
      lhoas architectes architects erna hecey galery gallerie 6x363
    • lhoas architectes architects erna hecey galery gallerie 7x363
      lhoas architectes architects erna hecey galery gallerie 7x363
    • xlhoas architectes architects erna hecey galery gallerie 1x411.jpg.pagespeed.ic.KMmsZpe Ex
      xlhoas architectes architects erna hecey galery gallerie 1x411.jpg.pagespeed.ic.KMmsZpe Ex
    • xlhoas architectes architects erna hecey galery gallerie 2x387.jpg.pagespeed.ic.CU86S9 QnW
      xlhoas architectes architects erna hecey galery gallerie 2x387.jpg.pagespeed.ic.CU86S9 QnW
    • xlhoas architectes architects erna hecey galery gallerie 3x375.jpg.pagespeed.ic.QRU4hJ j9A
      xlhoas architectes architects erna hecey galery gallerie 3x375.jpg.pagespeed.ic.QRU4hJ j9A
    • xlhoas architectes architects erna hecey galery gallerie 4x895.jpg.pagespeed.ic.yneeeRrKau
      xlhoas architectes architects erna hecey galery gallerie 4x895.jpg.pagespeed.ic.yneeeRrKau
    lhoas architectes architects erna hecey galery gallerie 2x387
    lhoas architectes architects erna hecey galery gallerie 3x375
    lhoas architectes architects erna hecey galery gallerie 4x895
    lhoas architectes architects erna hecey galery gallerie 4x432
    lhoas architectes architects erna hecey galery gallerie 5x414
    lhoas architectes architects erna hecey galery gallerie 6x363
    lhoas architectes architects erna hecey galery gallerie 7x363
    xlhoas architectes architects erna hecey galery gallerie 1x411.jpg.pagespeed.ic.KMmsZpe Ex
    xlhoas architectes architects erna hecey galery gallerie 2x387.jpg.pagespeed.ic.CU86S9 QnW
    xlhoas architectes architects erna hecey galery gallerie 3x375.jpg.pagespeed.ic.QRU4hJ j9A
    xlhoas architectes architects erna hecey galery gallerie 4x895.jpg.pagespeed.ic.yneeeRrKau
      • lhoas architectes architects erna hecey galery gallerie 2x387
      • lhoas architectes architects erna hecey galery gallerie 3x375
      • lhoas architectes architects erna hecey galery gallerie 4x895
      • lhoas architectes architects erna hecey galery gallerie 4x432
      • lhoas architectes architects erna hecey galery gallerie 5x414
      • lhoas architectes architects erna hecey galery gallerie 6x363
      • lhoas architectes architects erna hecey galery gallerie 7x363
      • xlhoas architectes architects erna hecey galery gallerie 1x411.jpg.pagespeed.ic.KMmsZpe Ex
      • xlhoas architectes architects erna hecey galery gallerie 2x387.jpg.pagespeed.ic.CU86S9 QnW
      • xlhoas architectes architects erna hecey galery gallerie 3x375.jpg.pagespeed.ic.QRU4hJ j9A
      • xlhoas architectes architects erna hecey galery gallerie 4x895.jpg.pagespeed.ic.yneeeRrKau

    Stand La Cambre

    Réalisation d'un stand pour la faculté d'architecture "La Cambre" pour les journées portes ouvertes.

      : 2000

      • lhoas architectes architects la cambre stand 1x851
        lhoas architectes architects la cambre stand 1x851
      • lhoas architectes architects la cambre stand 1x410
        lhoas architectes architects la cambre stand 1x410
      • lhoas architectes architects la cambre stand 2x412
        lhoas architectes architects la cambre stand 2x412
      • lhoas architectes architects la cambre stand 3x414
        lhoas architectes architects la cambre stand 3x414
      • lhoas architectes architects la cambre stand 4x356
        lhoas architectes architects la cambre stand 4x356
      • lhoas architectes architects la cambre stand 5x561
        lhoas architectes architects la cambre stand 5x561
      • xlhoas architectes architects la cambre stand 1x851.jpg.pagespeed.ic.aiBtpZwq8
        xlhoas architectes architects la cambre stand 1x851.jpg.pagespeed.ic.aiBtpZwq8
      • xlhoas architectes architects la cambre stand 1x410.jpg.pagespeed.ic.erzmaJUr2N
        xlhoas architectes architects la cambre stand 1x410.jpg.pagespeed.ic.erzmaJUr2N
      lhoas architectes architects la cambre stand 1x851
      lhoas architectes architects la cambre stand 1x410
      lhoas architectes architects la cambre stand 2x412
      lhoas architectes architects la cambre stand 3x414
      lhoas architectes architects la cambre stand 4x356
      lhoas architectes architects la cambre stand 5x561
      xlhoas architectes architects la cambre stand 1x851.jpg.pagespeed.ic.aiBtpZwq8
      xlhoas architectes architects la cambre stand 1x410.jpg.pagespeed.ic.erzmaJUr2N
        • lhoas architectes architects la cambre stand 1x851
        • lhoas architectes architects la cambre stand 1x410
        • lhoas architectes architects la cambre stand 2x412
        • lhoas architectes architects la cambre stand 3x414
        • lhoas architectes architects la cambre stand 4x356
        • lhoas architectes architects la cambre stand 5x561
        • xlhoas architectes architects la cambre stand 1x851.jpg.pagespeed.ic.aiBtpZwq8
        • xlhoas architectes architects la cambre stand 1x410.jpg.pagespeed.ic.erzmaJUr2N

      Page 3 sur 3

      • 1
      • 2
      • 3

      Lhoas & Lhoas architects

      info@lhoas-lhoas.com
      62/11, Chaussée de Forest 1060, Bruxelles, Belgique
      +32 (0)2 372.08.75
      Facebook
      Instagram
      © 2006 - 2026 Designed and developped by La Missive
      • Architecture
        • Habitat
        • Usage Mixte
        • Bureau
        • Commercial
        • Culture
        • Scénographie
        • Chronologie
      • Design
        • Sur mesure
        • Meuble
        • Chronologie
      • Publications
        • Expositions
        • Presse
        • Conférences
        • Chronologie
      • A propos de nous