Lhoas & Lhoas
  • Architecture
    • Habitat
    • Usage Mixte
    • Bureau
    • Commercial
    • Culture
    • Scénographie
    • Chronologie
  • Design
    • Sur mesure
    • Meuble
    • Chronologie
  • Publications
    • Expositions
    • Presse
    • Conférences
    • Chronologie
  • A propos de nous
Lhoas & Lhoas

Sélectionnez votre langue

  • FR
  • EN
  1. Vous êtes ici :  
  2. Accueil
  3. Architecture
  4. Commercial
  5. Maru

Maru

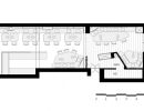
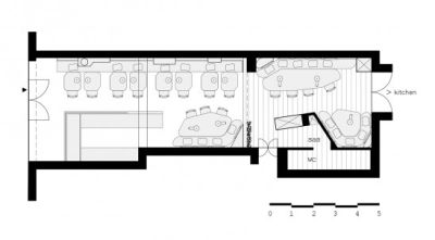
Construction d'un restaurant coréen

Surface : 70 m²
Localisation : 510, Chaussée de Waterloo, 1050, Bruxelles.

www.facebook.com/maru

    : Réalisé

    : 70 m2

    : 510, Chaussée de Waterloo, 1050, Bruxelles.

    : 2012

    • lhoas architectes architects maru corean kitchen restaurant furniture 10x821
      lhoas architectes architects maru corean kitchen restaurant furniture 10x821
    • lhoas architectes architects maru corean kitchen restaurant furniture 13x758
      lhoas architectes architects maru corean kitchen restaurant furniture 13x758
    • lhoas architectes architects maru corean kitchen restaurant furniture 14x366
      lhoas architectes architects maru corean kitchen restaurant furniture 14x366
    • lhoas architectes architects maru corean kitchen restaurant furniture 5x366
      lhoas architectes architects maru corean kitchen restaurant furniture 5x366
    • lhoas architectes architects maru corean kitchen restaurant furniture 6x366
      lhoas architectes architects maru corean kitchen restaurant furniture 6x366
    • lhoas architectes architects maru corean kitchen restaurant furniture 7x821
      lhoas architectes architects maru corean kitchen restaurant furniture 7x821
    • lhoas architectes architects maru corean kitchen restaurant furniture 8x366
      lhoas architectes architects maru corean kitchen restaurant furniture 8x366
    • lhoas architectes architects maru corean kitchen restaurant furniture 9x821
      lhoas architectes architects maru corean kitchen restaurant furniture 9x821
    • xlhoas architectes architects maru corean kitchen restaurant furniture 1x411.jpg.pagespeed.ic.pLBtNmM285
      xlhoas architectes architects maru corean kitchen restaurant furniture 1x411.jpg.pagespeed.ic.pLBtNmM285
    • xlhoas architectes architects maru corean kitchen restaurant furniture 12x303.jpg.pagespeed.ic.63cTi4b4ut
      xlhoas architectes architects maru corean kitchen restaurant furniture 12x303.jpg.pagespeed.ic.63cTi4b4ut
    • xlhoas architectes architects maru corean kitchen restaurant furniture 13x758.jpg.pagespeed.ic.6Y97ugr6sm
      xlhoas architectes architects maru corean kitchen restaurant furniture 13x758.jpg.pagespeed.ic.6Y97ugr6sm
    • xlhoas architectes architects maru corean kitchen restaurant furniture 13x366.jpg.pagespeed.ic.xoA WqUn0l
      xlhoas architectes architects maru corean kitchen restaurant furniture 13x366.jpg.pagespeed.ic.xoA WqUn0l
    • xlhoas architectes architects maru corean kitchen restaurant furniture 4x366.jpg.pagespeed.ic.elPC7F XF2
      xlhoas architectes architects maru corean kitchen restaurant furniture 4x366.jpg.pagespeed.ic.elPC7F XF2
    lhoas architectes architects maru corean kitchen restaurant furniture 10x821
    lhoas architectes architects maru corean kitchen restaurant furniture 13x758
    lhoas architectes architects maru corean kitchen restaurant furniture 14x366
    lhoas architectes architects maru corean kitchen restaurant furniture 5x366
    lhoas architectes architects maru corean kitchen restaurant furniture 6x366
    lhoas architectes architects maru corean kitchen restaurant furniture 7x821
    lhoas architectes architects maru corean kitchen restaurant furniture 8x366
    lhoas architectes architects maru corean kitchen restaurant furniture 9x821
    xlhoas architectes architects maru corean kitchen restaurant furniture 1x411.jpg.pagespeed.ic.pLBtNmM285
    xlhoas architectes architects maru corean kitchen restaurant furniture 12x303.jpg.pagespeed.ic.63cTi4b4ut
    xlhoas architectes architects maru corean kitchen restaurant furniture 13x758.jpg.pagespeed.ic.6Y97ugr6sm
    xlhoas architectes architects maru corean kitchen restaurant furniture 13x366.jpg.pagespeed.ic.xoA WqUn0l
    xlhoas architectes architects maru corean kitchen restaurant furniture 4x366.jpg.pagespeed.ic.elPC7F XF2
      • lhoas architectes architects maru corean kitchen restaurant furniture 10x821
      • lhoas architectes architects maru corean kitchen restaurant furniture 13x758
      • lhoas architectes architects maru corean kitchen restaurant furniture 14x366
      • lhoas architectes architects maru corean kitchen restaurant furniture 5x366
      • lhoas architectes architects maru corean kitchen restaurant furniture 6x366
      • lhoas architectes architects maru corean kitchen restaurant furniture 7x821
      • lhoas architectes architects maru corean kitchen restaurant furniture 8x366
      • lhoas architectes architects maru corean kitchen restaurant furniture 9x821
      • xlhoas architectes architects maru corean kitchen restaurant furniture 1x411.jpg.pagespeed.ic.pLBtNmM285
      • xlhoas architectes architects maru corean kitchen restaurant furniture 12x303.jpg.pagespeed.ic.63cTi4b4ut
      • xlhoas architectes architects maru corean kitchen restaurant furniture 13x758.jpg.pagespeed.ic.6Y97ugr6sm
      • xlhoas architectes architects maru corean kitchen restaurant furniture 13x366.jpg.pagespeed.ic.xoA WqUn0l
      • xlhoas architectes architects maru corean kitchen restaurant furniture 4x366.jpg.pagespeed.ic.elPC7F XF2

    Lhoas & Lhoas architects

    info@lhoas-lhoas.com
    62/11, Chaussée de Forest 1060, Bruxelles, Belgique
    +32 (0)2 372.08.75
    Facebook
    Instagram
    © 2006 - 2026 Designed and developped by La Missive
    • Architecture
      • Habitat
      • Usage Mixte
      • Bureau
      • Commercial
      • Culture
      • Scénographie
      • Chronologie
    • Design
      • Sur mesure
      • Meuble
      • Chronologie
    • Publications
      • Expositions
      • Presse
      • Conférences
      • Chronologie
    • A propos de nous