PS

La rénovation du siège du parti socialiste est un projet global, un projet d'intégration de l'architecture, du design et de l'image graphique. Il est un aboutissement de l'étroite collaboration entre BASEdesign (image graphique) et Lhoas & Lhoas architectes (architecture + aménagements, mobilier).

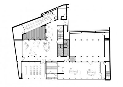
La rénovation de ce bâtiment de 1962 de M. Brunfaut a été d'abord un travail de nettoyage des espaces, de retour à la structure d'origine, de réouverture, de simplification et de modernisation: enlèvement de nombreux murs intérieurs, reconstruction du couloir central parallèle à la façade distribuant deux rangées de bureaux (à l'avant et à l'arrière) à tous les étages, mise à niveau technique de tous les bureaux (chauffage, climatisation, ventilation, isolation thermique, électricité, éclairage, informatique, isolation acoustique).

L'intervention est assez légère, totalement respectueuse de la structure du bâtiment et de ses "principes" et le transforme pourtant de manière très radicale. L’édifice est composé d’une structure en béton mais la façade, elle, est tout en acier. L'ambiguïté de cette dernière est préservée. Tous les étages qui comportent des bureaux sont assez similaires. Le rez-de-chaussée est quant à lui ouvert sur la rue. Il comprend la réception, la salle de presse et la bibliothèque. Ces deux dernières sont dans des boîtes en verre colorées, pour ainsi créer des effets rétiniens très forts. la bibliothèque qui semble de prime abord très rouge devient vite neutre, après s'être plus ou moins acclimaté au rouge de la salle de presse ou de la bibliothèque, le hall d'entrée paraît vert fluorescent, depuis le sas, la bibliothèque semble orange, depuis le hall, des pans de murs jaune voisinent avec des reflets rouge/rose. La nuit, le dispositif s'inverse radicalement, l'intérieur devient parfaitement blanc et les couleurs se projettent dans la rue.

Le mobilier est aussi un élément très important de ce projet, il se trouve à l'intersection du graphisme et du design. Les grands logos placés dans l'espace deviennent des meubles, des cloisons d'une échelle incertaine: un peu surdimensionnés pour des logos ils prennent un aspect ludique, étrange.